Large development plot with planning permission for a 7,664 sqft family home..
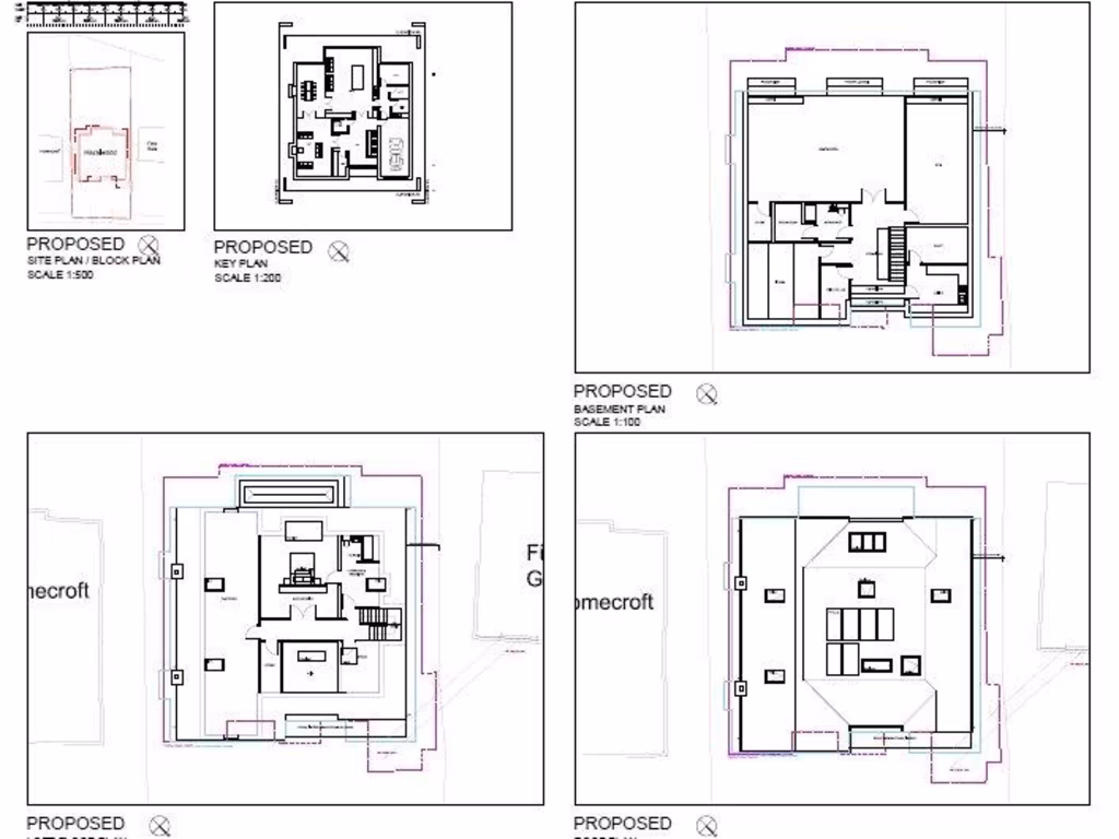
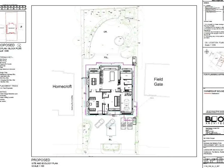
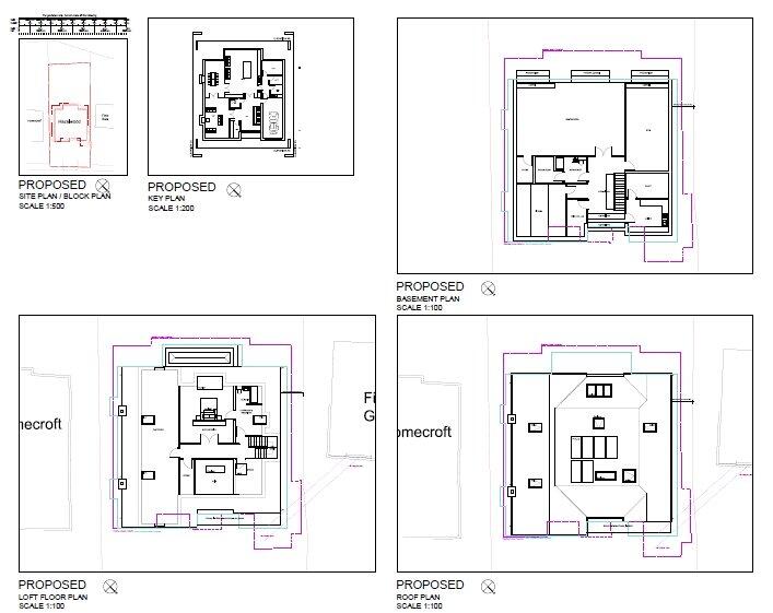
Planning permission granted for 5-bed, basement, loft, integral garage (App 24/1468/FUL)
A rare development plot in one of Radlett’s premier roads, offered with full planning permission (App 24/1468/FUL) for a circa 712m2 (7,664 sqft) detached five‑bedroom house including habitable basement, loft space and integral garage. The site benefits from excellent transport links: Radlett Thameslink (direct to Kings Cross St Pancras ~20 minutes), easy access to the M1, M25 and A1(M), and good proximity to Heathrow and Luton airports.
The surrounding area is very affluent, family-oriented and well served by highly regarded independent and state schools, notable golf and leisure facilities, and low local crime. The existing plot is large with a landscaped frontage and private driveway; planning assumes a high‑spec modern build with underfloor heating and double glazing already present or typical of contemporary construction.
Key value drivers are the granted planning permission, premier location and strong local market fundamentals (affluent catchment, excellent rail links). Practical considerations include slow broadband provision in the immediate area and higher council tax expectations. Buyers should note the planning incorporates a habitable basement — confirm ground conditions and party wall/neighbouring consent as required.
This opportunity suits a developer or private buyer seeking a substantial, contemporary family house in a top Radlett location. The permission and plot scale reduce early-stage risk, but a buyer must allow for build costs, connection upgrades, and necessary pre‑start surveys before construction.
Plot for sale in Loom Lane, Radlett, WD7 — £2,250,000 • 5 bed • 5 bath • 5563 ft²
Plot for sale in The Avenue, Radlett, WD7 — £3,500,000 • 1 bed • 1 bath • 13765 ft²
5 bedroom detached house for sale in Loom Lane, Radlett, Hertfordshire, WD7 — £2,250,000 • 5 bed • 5 bath • 5500 ft²
Plot for sale in Watford Road, Radlett, Hertfordshire, WD7 — £3,900,000 • 1 bed • 1 bath • 2014 ft²
3 bedroom detached bungalow for sale in Goodyers Avenue, Radlett, WD7 — £1,000,000 • 3 bed • 2 bath • 1295 ft²
5 bedroom detached house for sale in The Warren, Radlett, Hertfordshire, WD7 — £3,000,000 • 5 bed • 3 bath • 2400 ft²


























