One-third acre Radlett plot with approved plans for a 5,563 sqft family home.
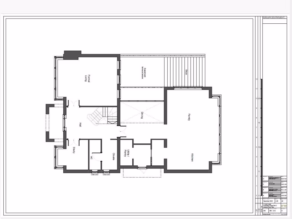
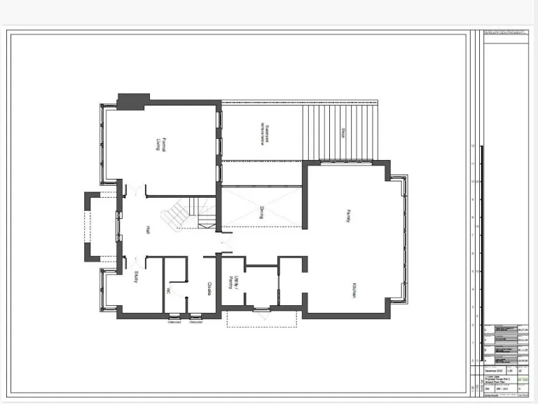
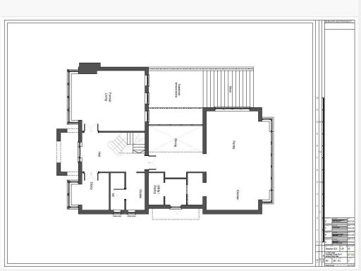
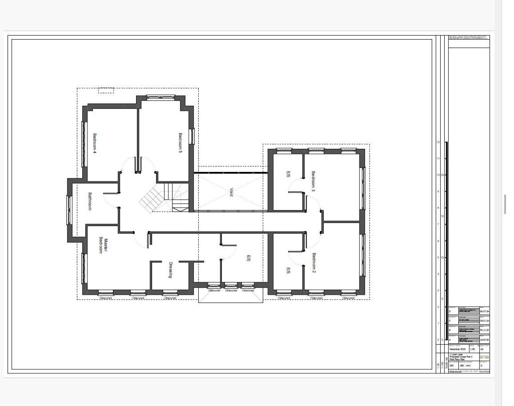
Full planning permission for 5,563 sq ft over four floors
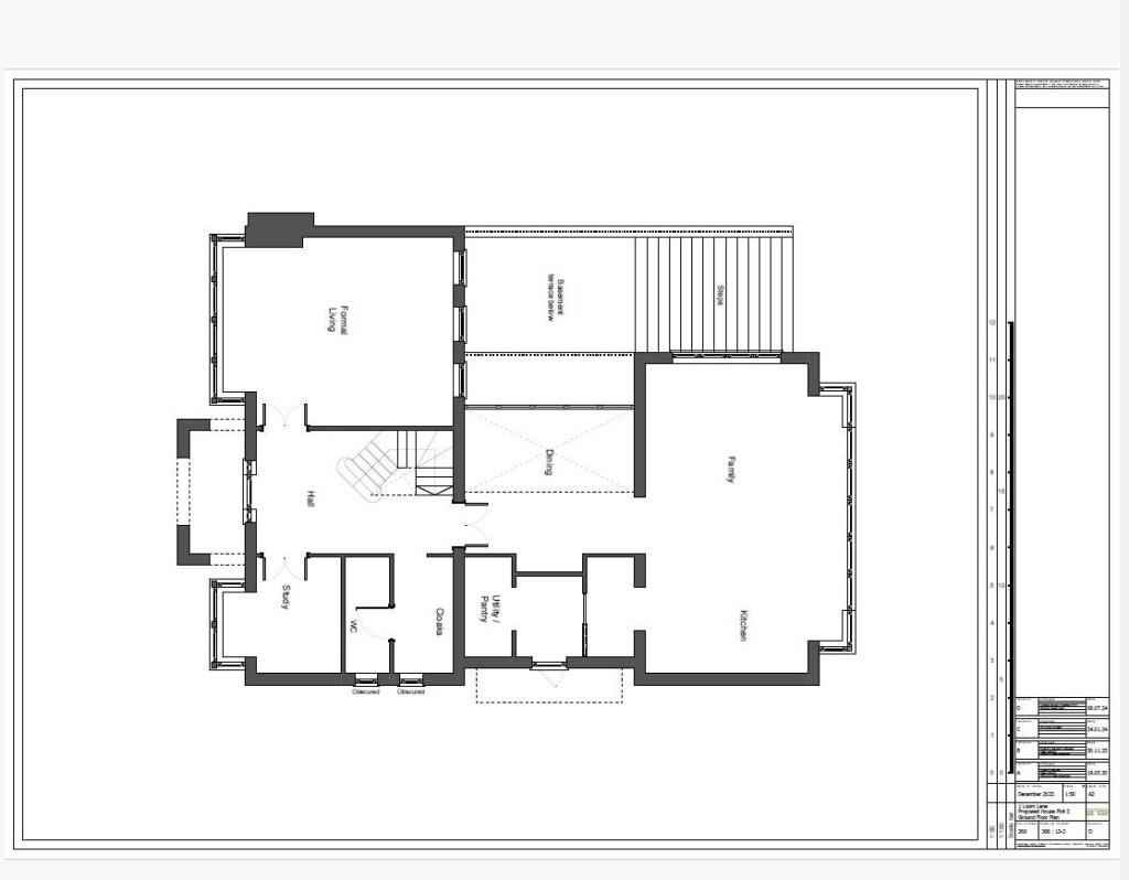
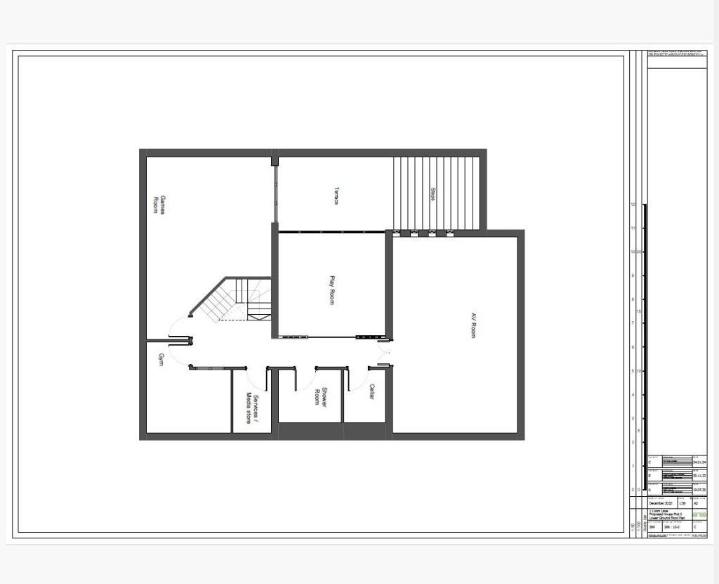
Set on approximately one third of an acre on Loom Lane, this substantial freehold plot has full planning permission for a 5,563 sq ft detached residence arranged over four floors, with a separate garage and extensive landscaped grounds. The site sits in an affluent, low-crime area of Radlett and benefits from mature tree screening, good privacy and fast broadband — attractive for family owners or buy-to-let repositioning.
Full planning permission is already granted for the principal accommodation, reducing delivery risk for a purchaser who wishes to build to the approved scheme. The vendor is pursuing additional permissions for sole use of the driveway and potential dormer windows to the loft; these remain subject to final local-authority approval and are not guaranteed. Images provided are CGI and illustrative only.
Practical points to note: this is a large development plot requiring an experienced developer or homeowner-builder to manage construction and any further planning applications. The plot presents clear upside for someone who wants a near-complete planning package in a premium Radlett location, while buyers seeking a ready-built house should note there is no existing dwelling to occupy. Nearby highly regarded state and independent schools and strong local amenities add to long-term desirability.
5 bedroom detached house for sale in Loom Lane, Radlett, Hertfordshire, WD7 — £2,250,000 • 5 bed • 5 bath • 5500 ft²
Plot for sale in The Warren, Radlett, Hertfordshire, WD7 — £1,950,000 • 1 bed • 1 bath • 7664 ft²
5 bedroom detached house for sale in Loom Lane, Radlett, Hertfordshire, WD7 — £2,650,000 • 5 bed • 3 bath • 5913 ft²
Plot for sale in The Avenue, Radlett, WD7 — £3,500,000 • 1 bed • 1 bath • 13765 ft²
3 bedroom detached bungalow for sale in Goodyers Avenue, Radlett, WD7 — £1,000,000 • 3 bed • 2 bath • 1295 ft²
6 bedroom detached house for sale in Loom Lane, Radlett, Hertfordshire, WD7 — £3,999,000 • 6 bed • 6 bath • 3400 ft²










































