Operator-ready plot with planning consent for short-stay and shared-housing income in Bishopston.
- Full planning consent for HMO and C1 aparthotel (Application No. 22/01385/F)
- Potential gross rent c. £156,000 pa (based on 4-bed HMO + 8-bed aparthotel)
- Freehold sale with vacant possession, prominent Gloucester Road frontage
- Demolition of existing buildings and full rebuild required
- Asbestos not inspected — buyer to investigate and manage removal
- Electric storage heating (higher running costs than gas alternatives)
- Good transport links, fast broadband, extensive local amenities
- Alternative schemes possible but require new consents and budgets
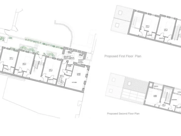
A rare freehold development plot on Gloucester Road with full planning consent for a combined 4-bedroom HMO and a 7–8 bed aparthotel. The consent (Application No. 22/01385/F, decision 6 January 2023) allows demolition and construction of a single residential block with associated external space, cycle and refuse storage — suited to an operator or investor targeting short-stay and shared-housing income.
The location is a major selling point: prominent high-street frontage in Bishopston with excellent transport links, fast broadband and a wide range of local amenities. A rental appraisal supplied on an 8-bed aparthotel and 4-bed HMO basis indicates potential gross income around £156,000 pa (assumes £1,250pcm per aparthotel room at c.80% occupancy and £750pcm per HMO room).
Practical considerations are straightforward: vacant possession and freehold title make delivery simpler, but the scheme requires demolition and full construction — budget for build costs, professional fees and site works. The site has electric storage heating and double glazing; asbestos has not been tested and must be investigated in line with Control of Asbestos Regulations.
This is a city-centre, operator-ready opportunity for investors or small developers. There is potential to alter layouts subject to consents, but any alternative scheme will require fresh approvals and a revised business plan to reflect VAT, management and operating costs.
14 bedroom house for sale in 14 BED + 8 BATH HMO | £126k pa | BS5 — £435,000 • 14 bed • 8 bath • 3218 ft²
High street retail property for sale in 335 Gloucester Road, Horfield, Bristol, BS7 8PE, BS7 — POA • 1 bed • 1 bath • 14198 ft²
Commercial property for sale in Investment + Development | Bishopston, BS7 — £635,000 • 5 bed • 7 bath • 3590 ft²
9 bedroom end of terrace house for sale in Gloucester Road, Horfield, Bristol, BS7 — £695,000 • 9 bed • 1 bath • 2573 ft²
Commercial property for sale in 14 BED + 8 BATH HMO | £126k pa | BS5 — £435,000 • 14 bed • 8 bath • 3218 ft²
5 bedroom flat for sale in Investment + Development | Bishopston, BS7 — £635,000 • 5 bed • 7 bath • 3590 ft²














































