High‑street location with immediate yield and clear redevelopment upside.
4 x tenanted flats producing c. £53,400 pa
Vacant retail unit with strong Gloucester Road trading position
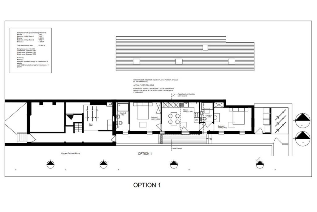
Rear single‑storey building with scope for 2 x 2‑bed conversions (STC)
Central void with no natural light requires design solution
Potential gross income c. £100k+ pa if fully let/refurbished (est.)
Sold at auction; buyer’s premium £1,800 inc VAT on exchange
Extended 8‑week completion; legal pack download advised
Small rear yard/plot; limited external amenity space
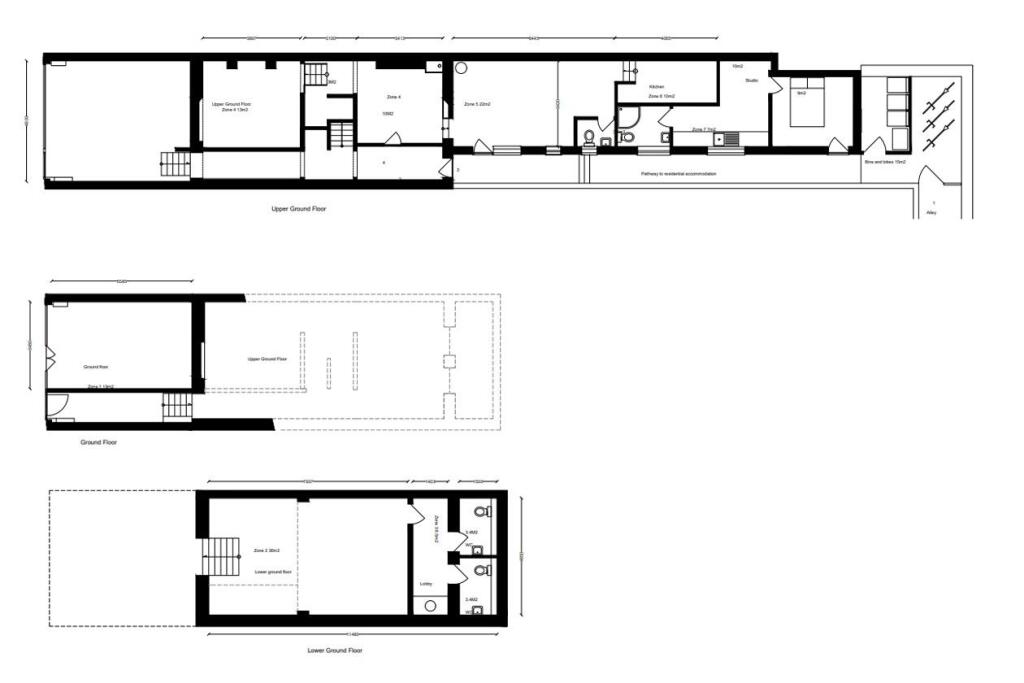
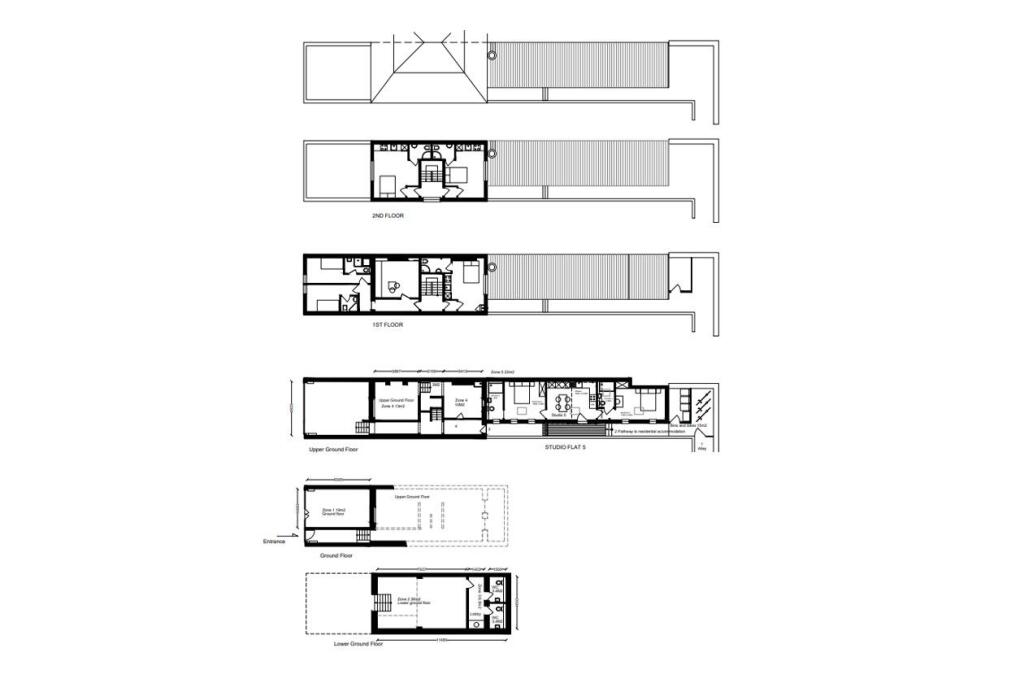
A substantial freehold mixed‑use terrace on Gloucester Road offering immediate rental income from four flats and a vacant ground‑floor retail unit with strong high‑street footfall. The upper floors produce c.£53,400 pa from ASTs; local appraisals suggest wider rental uplift if refurbished to professional market standards. There is clear scope to increase income by letting the retail unit or converting it to residential, subject to consents.
The rear single‑storey building provides practical development potential — planners and developers have cited feasibility for either two 2‑bed units or a single larger dwelling (STC). Internally there is a large central void with no natural light which could be incorporated into existing or new accommodation, but this will require design work and building‑regulation attention.
Key transactional points: the lot is offered for sale by live online auction (weds 19 Nov 2025) with an extended eight‑week completion period. Bidders should note a buyer’s premium is payable on exchange; full legal and service information is in the legal pack and should be reviewed before bidding. The property will suit investors seeking an income plus short‑term upside from development, or a developer comfortable securing planning and carrying out refurbishment.
5 bedroom flat for sale in Investment + Development | Bishopston, BS7 — £635,000 • 5 bed • 7 bath • 3590 ft²
5 bedroom terraced house for sale in Freehold Mixed Use | £56K Pa, BS6 — £475,000 • 5 bed • 4 bath • 2184 ft²
Commercial property for sale in Freehold Mixed Use | £56K Pa, BS6 — £475,000 • 5 bed • 4 bath • 2184 ft²
Commercial property for sale in BLOCK OF 12 x FLATS | BS5 — £1,200,000 • 19 bed • 12 bath • 10646 ft²
2 bedroom house for sale in MIXED USE | £21,540 pa | SHIREHAMPTON, BS11 — £150,000 • 2 bed • 2 bath • 1445 ft²
Commercial property for sale in MIXED USE | £21,540 pa | SHIREHAMPTON, BS11 — £150,000 • 2 bed • 2 bath • 1445 ft²


















































































































































































































































































