Consent for two large contemporary family homes in semi‑rural Barnstaple.
Planning consent for two 2-storey homes, each 238 m2 (2,561 sq ft)
Plots offered together £330,000 or separately £165,000 each
0.44 acre site with private gardens and off-street parking
Semi-rural high-ground location with pastoral valley views
Mains services nearby; foul runs to on-site pumping station
Section 106 contribution £10,722 payable by purchaser
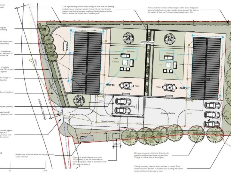
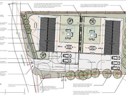
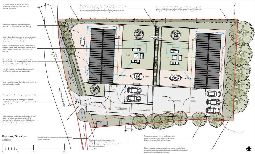
Site slopes east; mature hedgerows and trees may affect build
Within healthy walking distance of town, college and rail
A rare 0.44-acre development plot on the semi-rural outskirts of Barnstaple with full reserved matters consent for two high-spec detached homes. Each dwelling benefits from planning approved elevations in stone and timber, grey aluminium windows, slate roofs and an internal area of 238 m2 (approx. 2,561 sq ft), laid out for open-plan living, home office/bed 5 and four bedrooms with three en-suites. The site sits on higher ground with pleasant pastoral valley views yet remains within a healthy walk of Petroc college, the town centre and railway station.
This opportunity suits a developer or investor wanting near-complete planning certainty. Mains services are nearby; foul drainage is designed to connect via an on-site pumping station to the public sewer (temporary cesspool option removed). The plots are offered together for £330,000 or individually at £165,000 each; purchasers should budget for build costs, landscaping and on-site works.
Material points to note: the planning consent carries a Section 106 contribution of £10,722 payable by the purchaser. The site is greenfield with established hedgerows and some mature trees; a modest slope and ecological/landscaping considerations are likely during construction. All planning documents are available from North Devon Council under reference 76439 (and 73334) and should be reviewed prior to offer.
For buyers seeking quality modern family homes in an accessible North Devon location, this plot combines countryside outlooks with convenient town links and strong market appeal for well-specified detached houses. The consented designs aim at a mid‑to‑high specification finish and private gardens and parking for each dwelling.
Land for sale in Lake, Tawstock, Barnstaple, EX31 — £165,000 • 4 bed • 4 bath • 19166 ft²
Land for sale in Tawstock, Barnstaple, EX31 — £450,000 • 1 bed • 1 bath • 27878 ft²
Land for sale in West Hill, West Down, EX34 — £395,000 • 1 bed • 1 bath • 1543 ft²
Land for sale in Newland, Landkey, Barnstaple, EX32 — £425,000 • 1 bed • 1 bath • 3730 ft²
Land for sale in Newland, Landkey, Barnstaple, EX32 — £425,000 • 4 bed • 1 bath • 3730 ft²
Land for sale in Saunton Road, Braunton, EX33 — £195,000 • 3 bed • 1 bath • 1561 ft²


























































