Two high‑spec homes approved on a generous semi‑rural plot near Barnstaple.
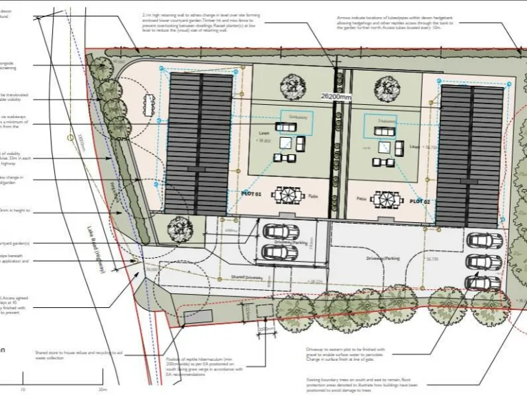
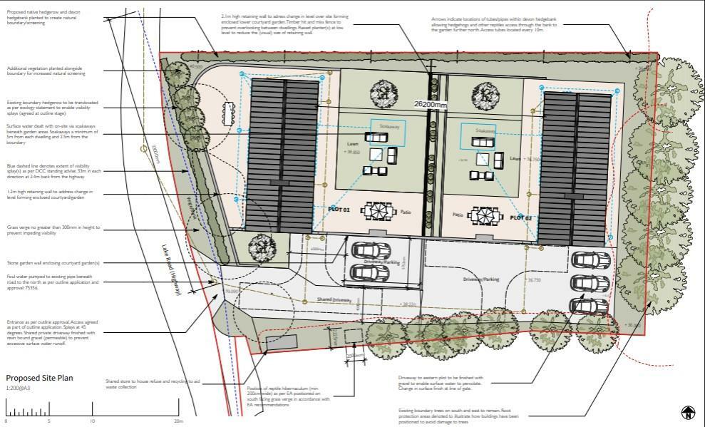
Full planning consent for two detached 4‑bed homes (238 sqm each)
A rare freehold building site on 0.44 acres with full planning consent for two detached, contemporary two‑storey homes. Each approved dwelling measures 238 sqm (approx. 2,561 sq ft) with flexible ground‑floor accommodation, four bedrooms upstairs, three en‑suites, and private gardens — ideal for families seeking generous space or investors delivering high‑spec new homes.
The site sits on high ground in a pleasant semi‑rural setting on the outskirts of Barnstaple, offering pastoral valley views while remaining within a healthy walk of Petroc College, the town centre and rail links. Local beaches, Exmoor and regional road connections are all within easy driving distance, making the location attractive for lifestyle buyers and holiday lettings alike.
Services are available nearby and the approved drainage strategy links foul flows via an on‑site pumping station to the public sewer. Purchasers should note a Section 106 contribution of £10,722 tied to the consent and that on‑site works and connections remain the buyer’s responsibility. The drawings and reserved matters (appearance, landscaping, layout and scale) are approved — purchasers will need to progress construction and statutory connections.
Offered at £165,000 per plot or £330,000 for the pair, the site represents a clear planning risk‑reduced development opportunity in a popular North Devon location. The plots are well screened by established hedgerows and trees, providing privacy and attractive boundaries for future gardens.
Land for sale in Lake, Tawstock, Barnstaple, EX31 — £330,000 • 1 bed • 1 bath • 19166 ft²
Land for sale in Tawstock, Barnstaple, EX31 — £450,000 • 1 bed • 1 bath • 27878 ft²
Land for sale in Newland, Landkey, Barnstaple, EX32 — £425,000 • 1 bed • 1 bath • 3730 ft²
Land for sale in West Hill, West Down, EX34 — £395,000 • 1 bed • 1 bath • 1543 ft²
Land for sale in Saunton Road, Braunton, EX33 — £275,000 • 3 bed • 1 bath • 1561 ft²
Land for sale in Saunton Road, Braunton, EX33 — £195,000 • 3 bed • 1 bath • 1561 ft²


























































