EX31 3JE - Land for sale in Tawstock, Barnstaple, EX31

View on Property Piper

Land for sale in Tawstock, Barnstaple, EX31

Summary - ROLLESTON VIEW, BARNSTAPLE, TAWSTOCK EX31 3JE

1 bed 1 bath Land

0.64-acre freehold with consent for three detached homes and attractive countryside views..
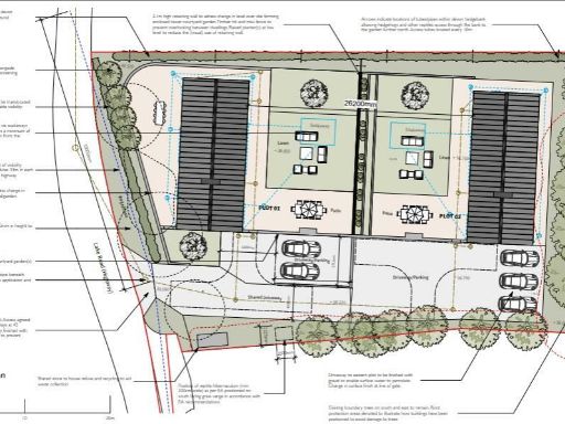
0.64-acre freehold plot with full consent for three detached dwellings
Planning consent ref. 78995 granted 23/12/2024 for demolition and new build
Section 106 liability c. £9,000 payable by purchaser
Mains water/electric nearby but connections cross retained land
Sewage treatment plant sited on retained land; possible easement/manhole
Quiet country lane location with extensive rural views, high ground
Demolition of existing barns and new boundaries required before build
Very slow broadband may need upgrading for modern occupiers
This freehold redevelopment parcel of approximately 0.64 acres lies off a quiet country lane in Tawstock, offering planning consent (ref. 78995, granted 23/12/2024) to demolish existing barns and build three detached open-market dwellings: a 4-bed house, a 3-bed bungalow and a 3-bed house. The site sits on high ground with far-reaching rural views and generous garden plots for each unit, attractive to builders or small developers seeking a low-density rural scheme close to Barnstaple.

Practical matters are straightforward but material. The consent requires a Section 106 contribution of about £9,000. Services (mains water and electricity) are available nearby but likely require crossing retained land to connect; the seller proposes to cooperate with the purchaser on this. A communal sewage treatment plant has been allowed and will be sited on retained land, and there may be an easement/manhole and shared drainage arrangement adjacent to the neighbouring property (Fairview) that the purchaser must accept and accommodate in the new boundaries.

Benefits include excellent mobile signal, easy road access to Barnstaple (c.15 minutes) and the wider North Devon road network, and attractive proximity to coast and national parks. Notable constraints are the need to demolish existing structures and implement the new boundaries and drainage arrangements, plus very slow broadband speeds which may affect residents unless improved locally. Overall this is a clear, permitted new-build opportunity for a buyer comfortable managing the modest S106, service connections and boundary/drainage adjustments.

Property Details

Brochure Descriptions

Image Descriptions

Floorplan Description

Textual Property Features

Target Audience

AI Tags

Detected Visual Features

Nearby Schools

Nearest Bars And Restaurants

,,,,}

Nearest General Shops

,,}

Nearest Grocery shops

,,}

Nearest Supermarkets

,,}

Nearest Religious buildings

,,}

Nearest Medical buildings

,,,}

Nearest Leisure Facilities

,,,,}

Nearest Tourist attractions

,,}

Nearest Train stations

,,,,}

Nearest Bus stations and stops

,,,,}

Nearest Hotels

,,}

Tags

Local Market Stats

AirBnB Data

Similar Properties

Meta

High Res Images

Compatible Images

Low res Images

Thumbnails

Raw Images

High Res Floorplan Images

Compatible Floorplan Images

Low res Floorplan Images

FloorplanImages Thumbnail

Raw Floorplan Images