**Standout Features:**
- **Plot Size:** Generous 0.49 acres (approximately 1,950 sq m) of prime land
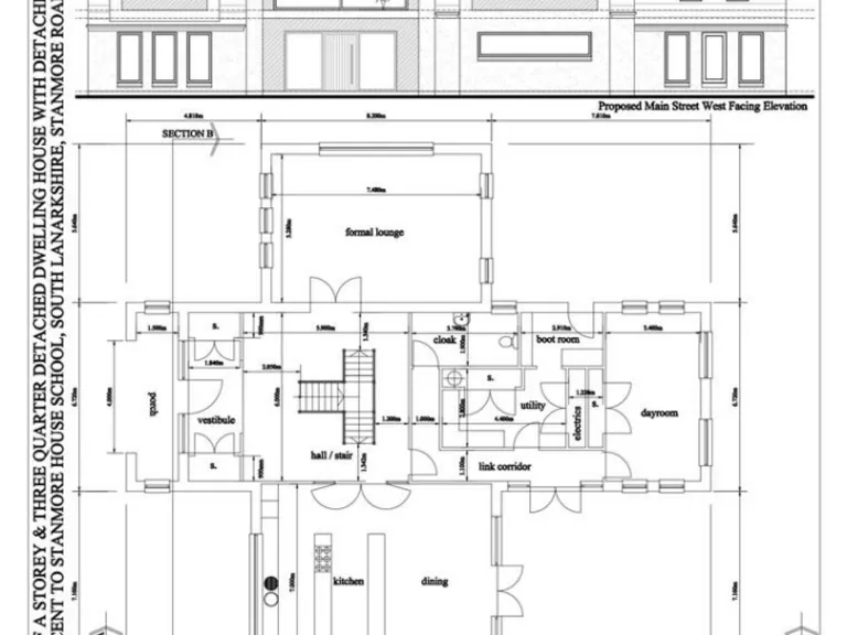
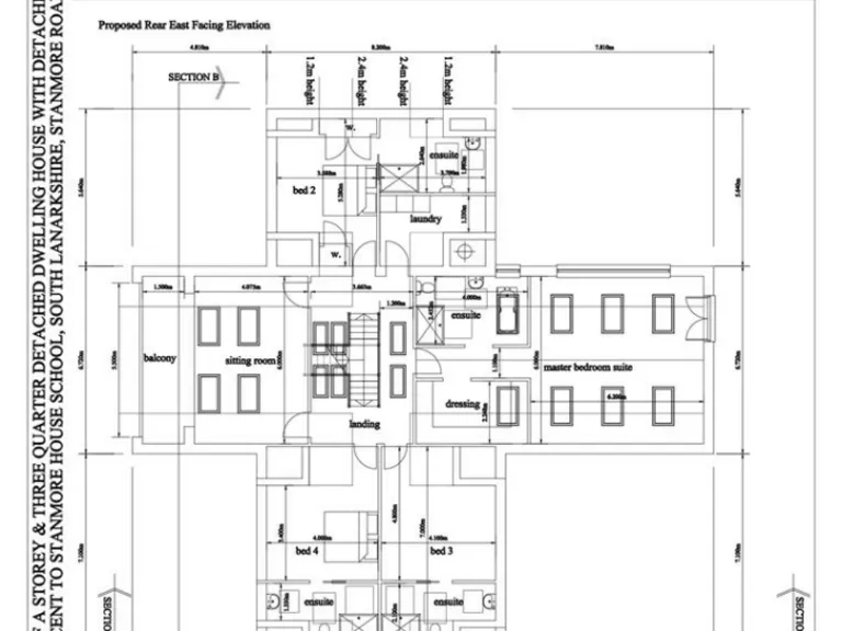
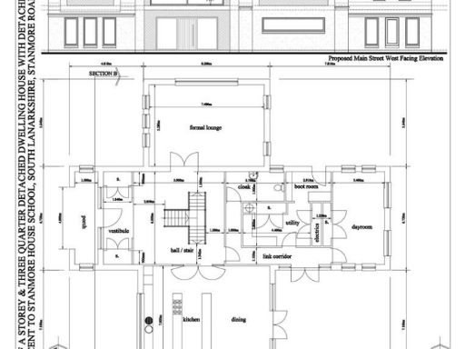
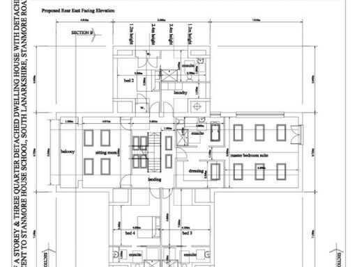
- **Planning Approval:** Granted for a 4,456 sq ft, 3-storey detached villa with potential for customization
- **Double Detached Garage:** Includes plans for a spacious garage with flexible accommodation above
- **Rural Location:** Peaceful, tree-lined setting with countryside views
- **Proximity:** Short drive to Lanark town center and convenient access to amenities and reputable schools
**Summary:**
This exceptional plot of land on Stanmore Road in Lanark presents a unique opportunity for development in a serene, rural environment. With planning permission already in place for an expansive 4,456 sq ft, three-storey detached villa, this location is ideal for families or investors looking to build a dream home surrounded by nature. The double detached garage adds significant value, offering additional storage or accommodation options. Enjoy breathtaking views over adjacent woodland and farmland, while still benefiting from the amenities of Lanark just a short drive away.
This property also allows for future flexibility—the building plans can be amended to suit personal preferences, ensuring your vision for the home can be realized. While the area offers an idyllic lifestyle, potential buyers should be mindful of the local area's deprivation status, emphasizing the importance of considering future amenities and services. With fast broadband and excellent mobile signals, this plot is perfect for those who value connectivity within a tranquil setting. Don’t miss out on this rare opportunity to create a personalized retreat in the heart of Lanarkshire!
Plot for sale in Stanmore Road, Lanark, ML11 — £99,000 • 1 bed • 1 bath • 2906 ft²
Plot for sale in Stanmore Road, Lanark, ML11 — £99,000 • 1 bed • 1 bath • 2905 ft²
Plot for sale in Stanmore Road, Lanark, ML11 — £99,000 • 1 bed • 1 bath • 2905 ft²
Plot for sale in Stanmore Road, Lanark, ML11 — £99,000 • 1 bed • 1 bath • 2905 ft²
Plot for sale in Cleghorn Drive, Lanark, ML11 — £185,000 • 5 bed • 4 bath • 3767 ft²
Land for sale in Yieldshields Road, Carluke, ML8 — £144,995 • 1 bed • 1 bath • 13754 ft²














































