**Standout Features:**
- Expansive 64 acres (25.90 ha) of Grade 2 pasture land
- Immaculately renovated main residence with five bedrooms and modern finishes
- Two additional residential properties: a refurbished farmhouse and a cottage with an annex
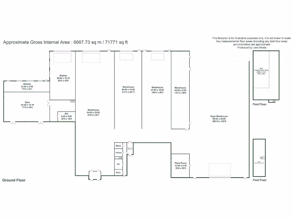
- Over 70,000 sq. ft of high-spec commercial buildings with multifunctional potential
- Significant solar panel installation (333 kWh capacity) providing potential income
- Extensive outdoor space with a large concreted yard (over 2.3 acres)
**Summary:**
Discover a unique mixed-use estate set in an idyllic rural setting, perfect for investors, entrepreneurs, or families seeking a multifunctional space. This remarkable property features a stunning five-bedroom primary residence that combines elegance and modern comfort with a grand entry and high-quality finishes. In addition to the main home, you will find a newly refurbished farmhouse and a well-appointed cottage with an attached one-bedroom annex, generating a lucrative combined rental income of £42,000 per annum.
Encompassing over 70,000 sq. ft of commercial buildings, this site boasts exceptional specifications featuring insulated roofs, full rewiring, and security enhancements. The buildings offer endless possibilities for businesses or event hosting, while the expansive concrete yard provides ample room for operations or outdoor events.
Set against breathtaking views of rolling green fields, this property invites you to envision your future here. With significant investments already made, and the potential for further development subject to planning consents, the possibilities are limitless. Don't miss out on the chance to own this extraordinary estate where rural charm meets modern opportunity. Act fast, as options like this are rare!
Shop for sale in Lancaster Road, Out Rawcliffe, Preston, Lancashire, PR3 — £6,950,000 • 9 bed • 9 bath • 7906 ft²
5 bedroom detached house for sale in Chapel Lane, Out Rawcliffe, Preston, Lancashire, PR3 — £795,000 • 5 bed • 1 bath • 1967 ft²
6 bedroom detached house for sale in Bodkin Lane, Out Rawcliffe, Preston, Lancashire, PR3 — £800,000 • 6 bed • 3 bath • 4506 ft²
7 bedroom detached house for sale in New Lane Pace, Banks, Southport, PR9 — £1,200,000 • 7 bed • 4 bath • 13205 ft²
Farm for sale in Throstle Nest Farm, Church Lane, PR3 0LA, PR3 — £2,900,000 • 5 bed • 1 bath • 2292 ft²
2 bedroom detached house for sale in Park Lane, Winmarleigh, Preston, Lancashire, PR3 — £800,000 • 2 bed • 2 bath • 3332 ft²






































































































































