PR9 8EZ - 7 bedroom detached house for sale in New Lane Pace, Banks,…

View on Property Piper

7 bedroom detached house for sale in New Lane Pace, Banks, Southport, PR9

Summary - Brookfield Farm, New Lane Pace, Banks PR9 8EZ

7 bed 4 bath Detached

**Standout Features:**

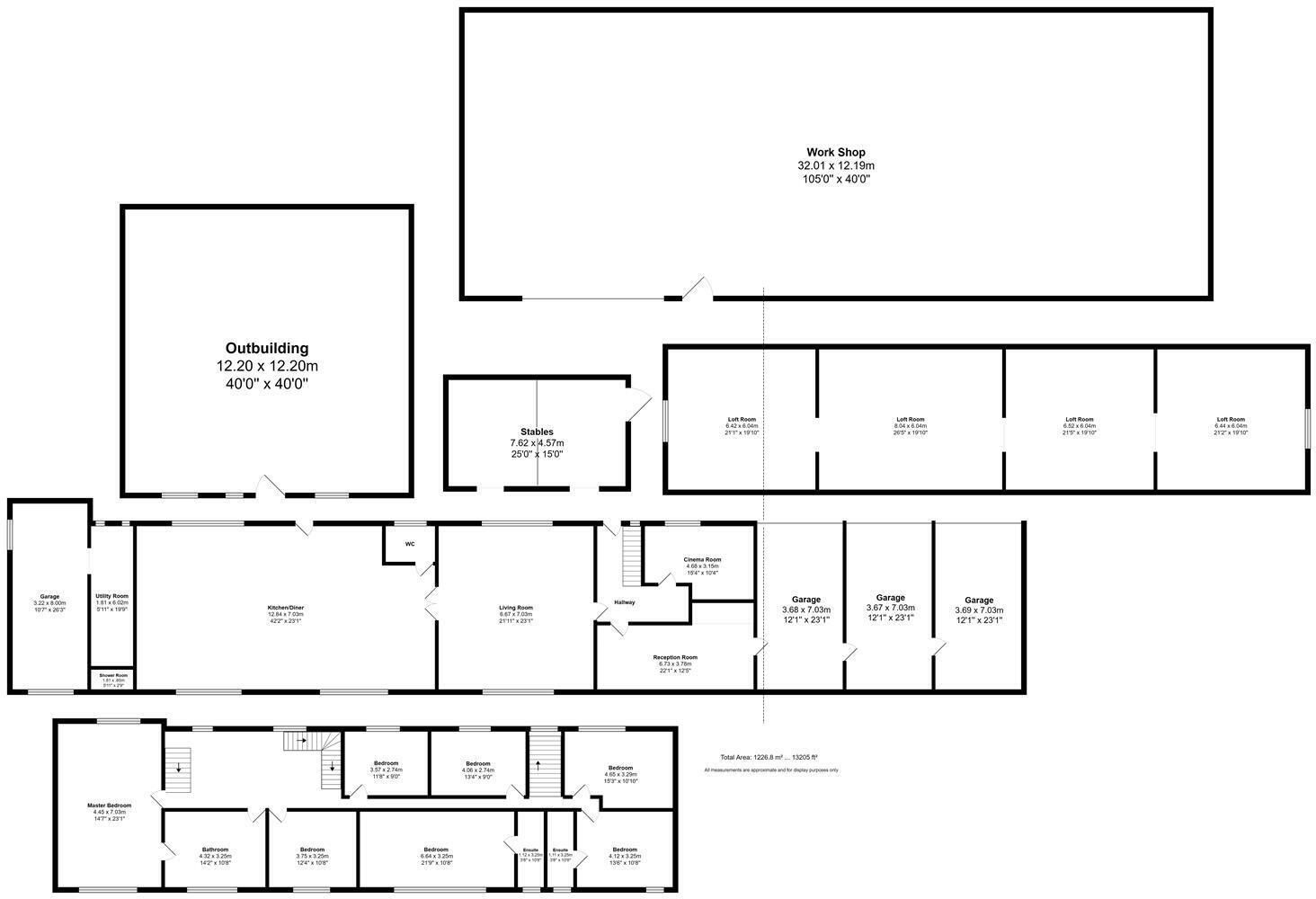
- Seven double bedrooms in a spacious detached farmhouse
- Approximately 4.75 acres of land, including a large garden and open fields
- 105ft x 40ft business premises on-site with unrestricted business use planning permission
- Detached outbuilding with potential for conversion into a four-bedroom bungalow (subject to planning)
- Energy-efficient upgrades including air sourced heating and solar panels
- Detached stables included
- Chain free sale

**Summary:**
Discover this extraordinary opportunity to own a seven-bedroom detached farmhouse nestled on an impressive 4.75-acre plot, ideal for families or investors looking to seize a unique residential and commercial venture. The main residence offers ample living space with a welcoming entrance hallway, a bright open-plan kitchen diner, and multiple living areas, complemented by seven generously sized bedrooms and modern bathrooms.

Beyond the farmhouse, the property features a substantial business premises and a versatile outbuilding ripe for conversion into a four-bedroom bungalow, presenting endless possibilities for additional income or guest accommodation. This property also benefits from eco-friendly enhancements, including air sourced heating and a solar panel array, ensuring energy efficiency.

Set in a rural locale with low crime rates and access to excellent local schools, this property harmonizes country living with modern comforts while providing vast outdoor spaces, including detached stables for equestrian enthusiasts. With NO CHAIN and planning permissions already in place, opportunities like this are rare, so act swiftly to avoid disappointment!

Property Details

Brochure Descriptions

Image Descriptions

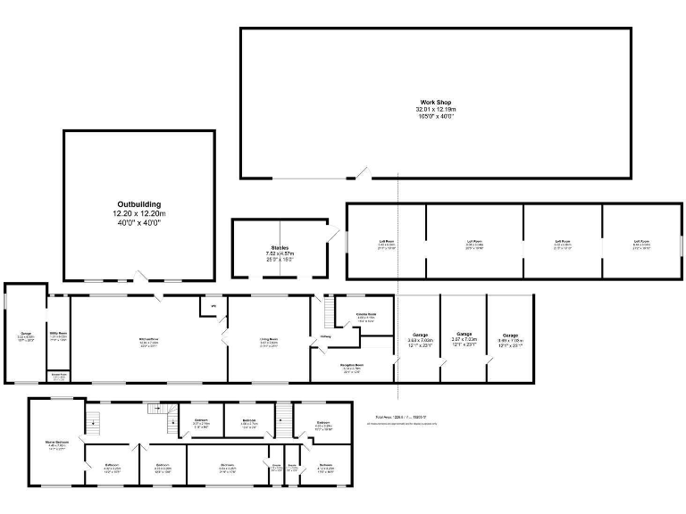
Floorplan Description

Rooms

Textual Property Features

Detected Visual Features

EPC Details

Nearby Schools

Nearest Bars And Restaurants

,,,,}

Nearest General Shops

,,}

Nearest Grocery shops

,,}

Nearest Supermarkets

,,}

Nearest Religious buildings

,,}

Nearest Medical buildings

,,,}

Nearest Leisure Facilities

,,,,}

Nearest Tourist attractions

,,}

Nearest Train stations

,,,,}

Nearest Bus stations and stops

,,,,}

Nearest Hotels

,,}

Tags

Local Market Stats

Similar Properties

Meta

High Res Images

Compatible Images

Low res Images

Thumbnails

Raw Images

High Res Floorplan Images

Compatible Floorplan Images

Low res Floorplan Images

FloorplanImages Thumbnail

Raw Floorplan Images