**Key Features:**
- Expansive 64 acres (25.9 ha) of Grade 2 pasture land.
- High-spec five-bedroom main residence, plus two additional residential properties (farmhouse and cottage) with a total of 9 bedrooms.
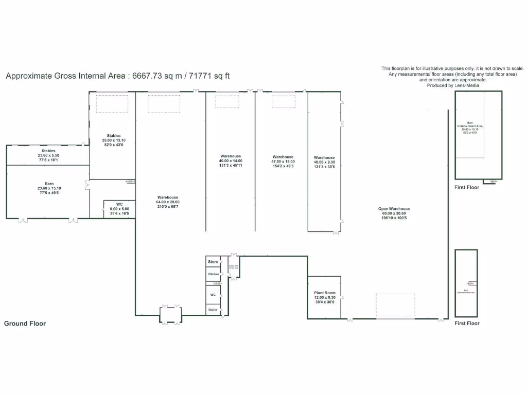
- Over 70,000 sq. ft. of refurbished commercial buildings, ideal for various business uses.
- Recently installed solar panel system with approx. 333 kWh capacity.
- Extensive outdoor space, including a newly-laid 2.3-acre concrete yard.
- Excellent rental income potential of £42,000 per annum from existing tenants.
This remarkable mixed-use property presents an exceptional investment opportunity in a serene, rural setting. The main residence, Shire Lodge, is a beautifully designed five-bedroom home characterized by high-end finishes and spacious interiors, including an open-plan living kitchen and luxurious en-suite facilities. Alongside, the recently refurbished farmhouse and cottage offer additional residential options or potential rentals, all enclosed within scenic grounds.
Commercially, this property stands out with its substantial portfolio of over 70,000 sq. ft. of high-spec buildings ready for diverse uses, ranging from event venues to agricultural businesses. There is also an opportunity for further development or alternative uses, subject to planning permissions. The property benefits from modern amenities, including an impressive solar power system that enhances sustainability and long-term income potential.
Future buyers should note the considerable size of the lot that provides ample room for expansion, play areas, or agricultural use. While this property embodies comfort and security, it also has fantastic potential for growth and creativity, making it particularly appealing for investors or families looking for a rare combination of residential and commercial space.
With a competitive price of £6,950,000, opportunities like this are rarely available long, so don’t miss out on your chance to take ownership of this exclusive, multifaceted estate.
9 bedroom detached house for sale in Lancaster Road, Out Rawcliffe, Preston, Lancashire, PR3 — £6,950,000 • 9 bed • 9 bath • 7906 ft²
5 bedroom detached house for sale in Chapel Lane, Out Rawcliffe, Preston, Lancashire, PR3 — £795,000 • 5 bed • 1 bath • 1967 ft²
6 bedroom detached house for sale in Bodkin Lane, Out Rawcliffe, Preston, Lancashire, PR3 — £800,000 • 6 bed • 3 bath • 4506 ft²
7 bedroom detached house for sale in New Lane Pace, Banks, Southport, PR9 — £1,200,000 • 7 bed • 4 bath • 13205 ft²
Farm for sale in Throstle Nest Farm, Church Lane, PR3 0LA, PR3 — £2,900,000 • 5 bed • 1 bath • 2292 ft²
5 bedroom detached house for sale in Whin Lane, Out Rawcliffe, Preston, PR3 — £600,000 • 5 bed • 2 bath






































































































































