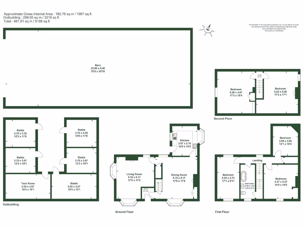
**Standout Features:**
- Detached Victorian farmhouse with 5 bedrooms
- Set on a massive 19.43 acres (7.86 hectares)
- Planning consent for a 2-storey extension and stable block
- Scenic countryside views towards Bowland Fells
- Range of stables and former agricultural buildings
- Character features including high ceilings, exposed beams, and original fireplaces
- Located along a quiet country lane, close to amenities and schools
Renovators and land enthusiasts will find this charming five-bedroom farmhouse an exceptional opportunity for development and investment. Nestled on a sprawling 19.43 acres, this property not only offers stunning views of the picturesque Bowland Fells but is also equipped for equestrian pursuits with stables and several outbuildings. The home boasts an array of character features reminiscent of Victorian architecture, including high ceilings, exposed solid pitch pine floorboards, and beautiful cast iron fireplaces.
While the farmhouse is rich in character, it requires some modern updates, particularly in the kitchen and bathrooms, allowing you to tailor the home to your taste. There is considerable potential for renovation, with granted planning consents for a two-storey extension and the addition of a U-shaped stable block. The expansive grounds are ideal for smallholding or agricultural use, providing ample space for livestock or gardening activities, with an amenity pond adding to the outdoor charm.
Set conveniently close to the villages of Great Eccleston and Hambleton, you’ll enjoy an affluent lifestyle with quality schooling and essential amenities nearby. Don’t miss the chance to create your dream rural retreat—properties like this, with such extensive land and potential, seldom come to market. Act quickly!
6 bedroom detached house for sale in Bodkin Lane, Out Rawcliffe, Preston, Lancashire, PR3 — £800,000 • 6 bed • 3 bath • 4506 ft²
3 bedroom detached house for sale in Crook Gate Lane, Out Rawcliffe, Preston, Lancashire, PR3 — £725,000 • 3 bed • 1 bath • 1825 ft²
5 bedroom farm house for sale in Trigg Lane, Heapey, PR6 — £1,250,000 • 5 bed • 3 bath • 2781 ft²
9 bedroom detached house for sale in Lancaster Road, Out Rawcliffe, Preston, Lancashire, PR3 — £6,950,000 • 9 bed • 9 bath • 7906 ft²
5 bedroom detached house for sale in Whin Lane, Out Rawcliffe, Preston, PR3 — £600,000 • 5 bed • 2 bath
3 bedroom detached house for sale in Greenacres, Dawbers Lane, Euxton PR7 6EF, PR7 — £800,000 • 3 bed • 2 bath • 1871 ft²






























































