**Standout Features:**
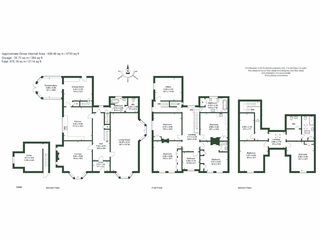
- Impressive Victorian detached residence extending over 4,500 sq ft.
- Set on 8.9 acres of lush land, ensuring exceptional privacy and picturesque views.
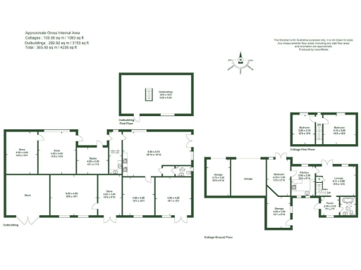
- Includes a two-bedroom annex/cottage, ideal for multi-generational living or as supplemental rental space.
- A range of outbuildings and ample parking opportunities.
- Stunning period features, such as high ceilings, original tiled floors, and extensive gardens with mature trees.
**Concerns:**
- Property is in need of full renovation, offering a blank canvas for further development subject to consent.
- Current heating is via electric storage heaters, and the main fuel is electricity (not community).
- Broadband speeds are reported as very slow, which may affect connectivity for some buyers.
**Summary:**
Discover the potential of this impressive Victorian residence, poised on 8.9 acres of serene countryside, offering both space and seclusion. With over 4,500 sq ft, the main house showcases original features and high ceilings that reflect its charm. A two-bedroom annex provides versatility, perfect for extended family arrangements or rental income. Envision transforming this property into your dream home or a profitable development project—subject to necessary consents. While the property requires substantial renovation, its expansive grounds and additional outbuildings present limitless possibilities for planning and personalization. This unique offering is ideal for families or investors looking to create a countryside retreat with agricultural prospects. Don't miss the opportunity to shape this landmark property—act quickly, as best and final offers are due by 12 noon on May 28th!
5 bedroom detached house for sale in Whin Lane, Out Rawcliffe, Preston, PR3 — £600,000 • 5 bed • 2 bath
5 bedroom detached house for sale in Chapel Lane, Out Rawcliffe, Preston, Lancashire, PR3 — £795,000 • 5 bed • 1 bath • 1967 ft²
9 bedroom detached house for sale in Lancaster Road, Out Rawcliffe, Preston, Lancashire, PR3 — £6,950,000 • 9 bed • 9 bath • 7906 ft²
3 bedroom house for sale in Weavers Fold Farm, Weavers Folds Bretherton PR26 9AP, PR26 — £550,000 • 3 bed • 1 bath • 1340 ft²
4 bedroom detached house for sale in Ulnes Walton Lane, Leyland, Lancashire, PR26 — £700,000 • 4 bed • 2 bath • 4238 ft²
6 bedroom detached house for sale in Off Inglewhite Road, Goosnargh, Preston, Lancashire, PR3 — £795,000 • 6 bed • 3 bath • 2560 ft²






























































































