**Standout Features:**
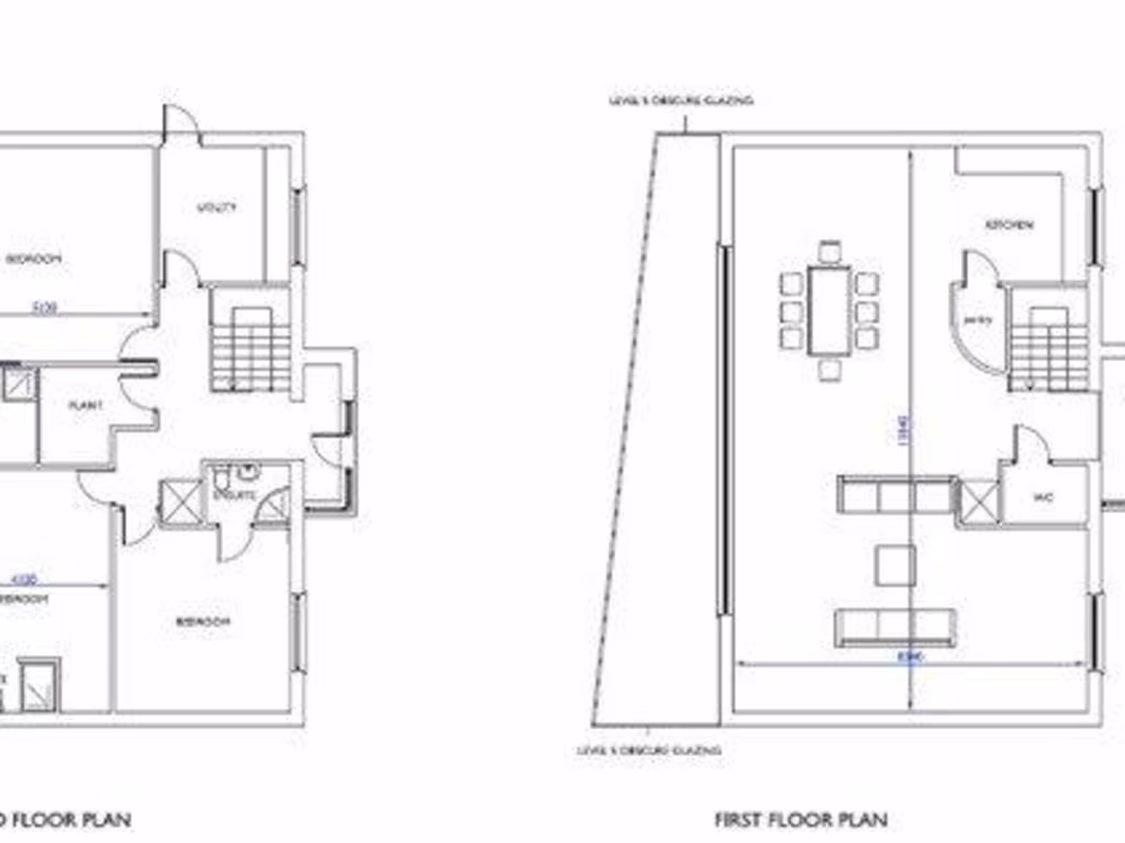
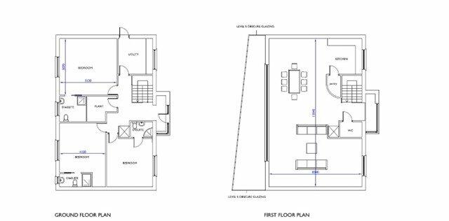
- **Planning Permission Approved:** Demolition of the existing bungalow to construct a modern 3-bedroom detached home and garage (Application Number: FPL/2023/191).
- **Expansive Plot:** Almost 0.5 acre of land providing plenty of room for development and landscaping.
- **Prime Rural Location:** Located just ½ mile from Newborough village center in a serene environment, surrounded by fields and scenic views towards the Menai Strait and Eryri Mountain Range.
- **Chain-Free Sale:** No onward chain ensures a smooth buying process.
- **Access to Amenities:** Close proximity to local village amenities, including a convenience store, pub, café, and primary school.
**Concise Summary:**
Discover an exceptional development opportunity in the picturesque semi-rural area of Penlon, on the outskirts of Newborough. This expansive plot, boasting almost 0.5 acres, comes with full planning permission for the demolition of the existing bungalow and the construction of a contemporary 3-bedroom dwelling, alongside a detached garage. Imagine crafting your dream home in an Area of Outstanding Natural Beauty, with stunning views of the Menai Strait and surrounding mountains.
While the land is a blank canvas ready for your vision, it is nestled amidst an idyllic landscape, close to sandy beaches and popular local attractions like the Marran Grass restaurant. This property offers both tranquility and accessibility, making it a prime choice for families, investors, or those seeking a peaceful retreat. Don’t miss this rare chance—properties with such potential in this desirable location won’t last long!
Land for sale in Dinas Dinlle, Caernarfon, Gwynedd, LL54 — £240,000 • 1 bed • 1 bath • 8800 ft²
Land for sale in Rhythallt Terrace, Llanrug, Caernarfon, Gwynedd, LL55 — £85,000 • 1 bed • 1 bath • 2500 ft²
Land for sale in Nebo, Caernarfon, Gwynedd, LL54 — £130,000 • 1 bed • 1 bath
3 bedroom detached house for sale in Newborough, Llanfairpwll, Sir Ynys Mon, LL61 — £549,950 • 3 bed • 2 bath • 1183 ft²
3 bedroom detached house for sale in Tyddyn, Newborough, Anglesey, LL61 — £575,000 • 3 bed • 2 bath
5 bedroom house for sale in Llangaffo, Gaerwen, Isle of Anglesey, LL60 — £415,000 • 5 bed • 4 bath • 2740 ft²










































