Spacious, flexible five-bedroom home with far-reaching mountain views and renewable upgrades.
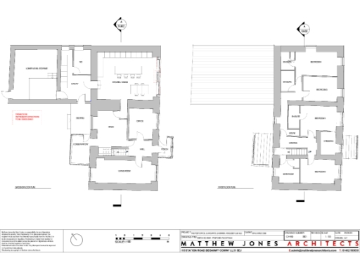
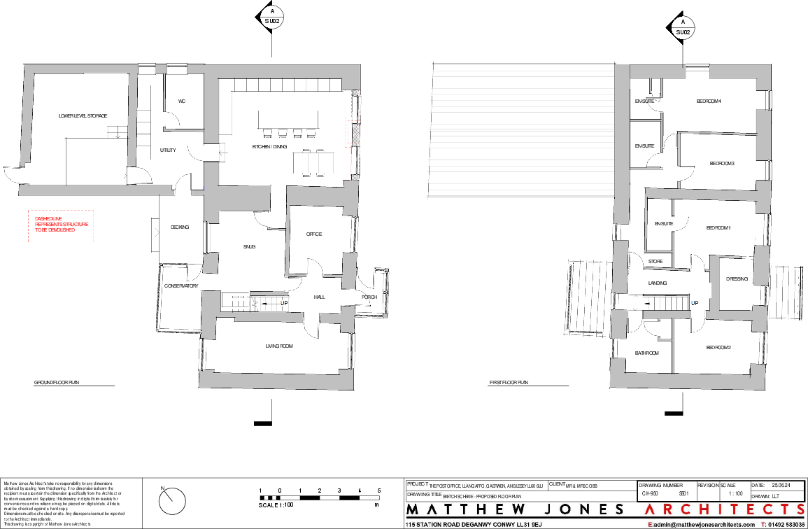
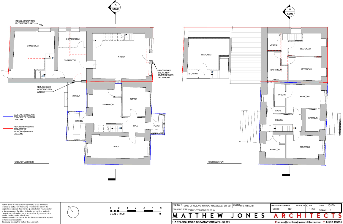
- Planning permission granted to convert shop and accommodation to residential use
- Five bedrooms, multiple en-suites; adaptable as one home or two dwellings
- Large plot with farmland views towards Eryri (Snowdonia)
- Energy upgrades: photovoltaic cells, air source heat pump, improved insulation
- Off-street parking, EV charging point, decking, patio and summer-house hardstanding
- Main fuel recorded as oil boiler despite air source heat pump installation
- Property dated 1930–1949; historic fabric may need survey and possible work
- Local area shows high deprivation; essential services several miles away
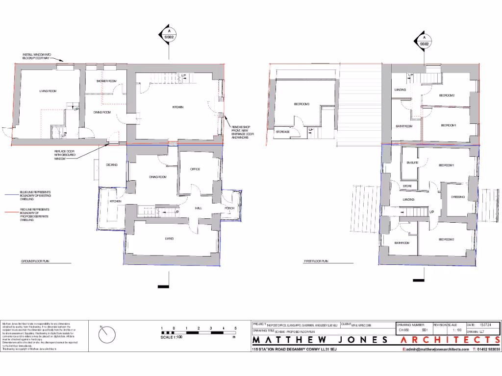
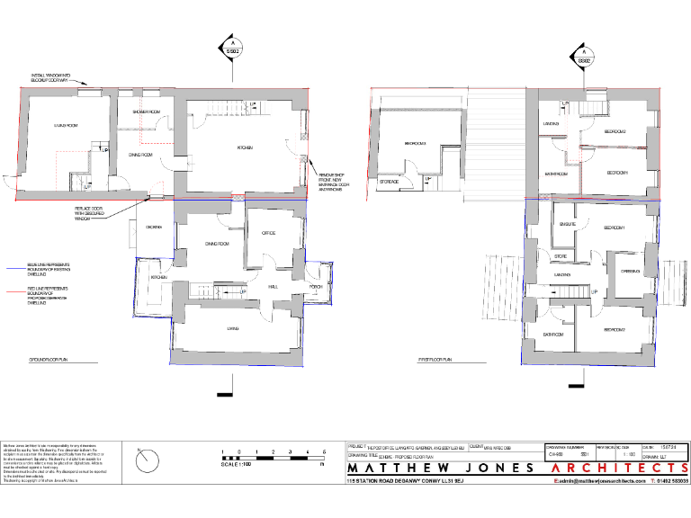
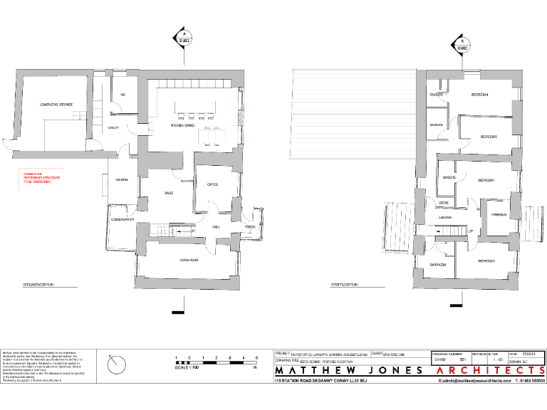
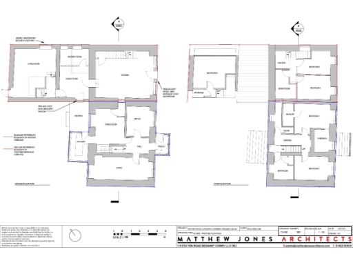
Former village shop with attached owners’ accommodation, now approved for full residential change of use, offers flexible living on a large plot with far-reaching views towards Eryri. The property is arranged over multiple floors and provides five bedrooms, four bathrooms (including en-suites), generous reception rooms and a substantial former trading area — lending itself to a single large family home, two separate dwellings or an annexe arrangement. Recent energy upgrades include photovoltaic panels, an air source heat pump and improved insulation, contributing to an EPC C rating and lower running costs compared with a typical property of this age.
Outside, a lawned garden, timber decking, paved patio and raised hardstanding create practical outdoor space; there is off-street parking, an electric car charging point and double gates to a side road. The plot is large and semi-rural, with open farmland views, scope for further external landscaping and potential for small-scale ancillary development subject to consents.
Buyers should note material considerations: the building dates from the 1930s–1940s and is semi‑detached, with main heating listed as an oil boiler despite the presence of an air source heat pump. Some wall construction is recorded as cavity with no insulation (assumed) despite recent insulation improvements — confirm details with surveys. The area records high deprivation indexes; local services are limited to village amenities, with larger towns and schools several miles away. This is a strong opportunity for a family wanting space and views, an investor seeking conversion potential, or someone planning a B&B, but a full structural and services inspection is recommended before purchase.
Equestrian facility for sale in Bodwina Bellaf, Gwalchmai, Anglesey, LL65 4RN, LL65 — £1,550,000 • 5 bed • 1 bath • 16631 ft²
5 bedroom detached house for sale in Penrallt Road, Trearddur Bay, Holyhead, Isle of Anglesey, LL65 — £625,000 • 5 bed • 4 bath • 2430 ft²
5 bedroom house for sale in Llangaffo, Gaerwen, Isle of Anglesey, LL60 — £415,000 • 5 bed • 4 bath • 2740 ft²
3 bedroom detached house for sale in Brynteg, LL78 — £390,000 • 3 bed • 2 bath • 1338 ft²
4 bedroom detached house for sale in Brynteg, LL78, Isle of Anglesey, LL78 — £480,000 • 4 bed • 1 bath • 1188 ft²
5 bedroom detached house for sale in Holyhead Road, Llangefni, Anglesey, LL77 — £425,000 • 5 bed • 2 bath • 1777 ft²


































































































































