**Standout Features:**
- **Prime Location:** Situated in the sought-after village of Llanrug, close to the Snowdonia National Park and commuting routes to Bangor and Caernarfon.
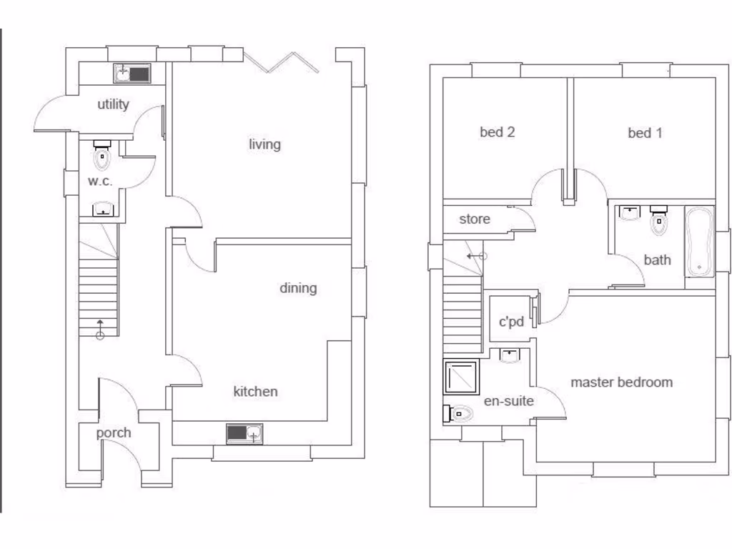
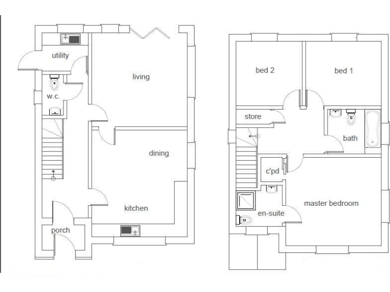
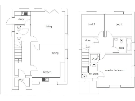
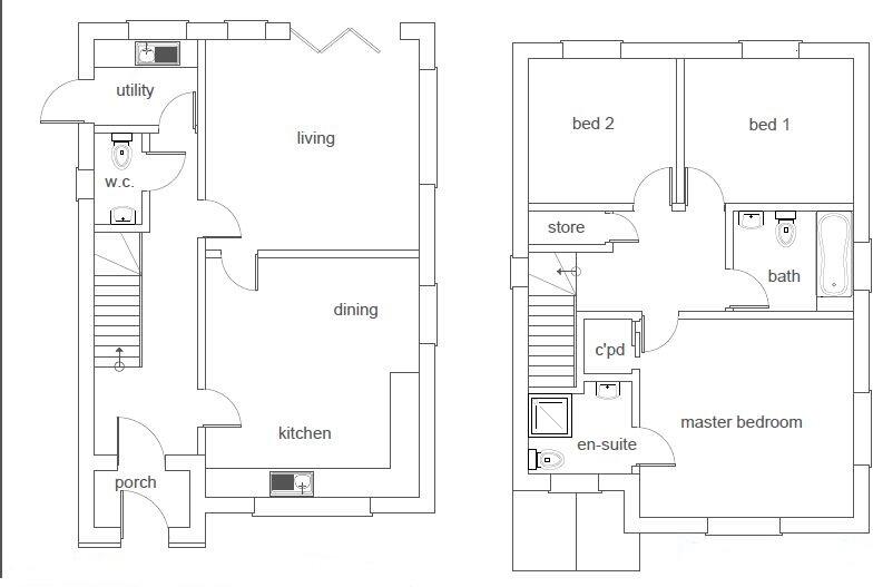
- **Development Potential:** Full planning approval (Application Number: 23/0048/23/LL) for a modern two-storey, 3-bedroom dwelling, offering flexibility for future buyers.
- **Land Size:** Generous plot of 2,500 sq ft; ideal for creating a personal oasis or rental investment.
- **Garden Space:** Includes a spacious, mostly grassed rear garden—perfect for landscaping dreams.
- **Chain Free:** No onward chain simplifies the purchasing process.
**Concerns:**
- **Property Condition:** The plot is in its raw state and currently requires development to realize its potential.
- **Rural Setting:** As a rural area, amenities may have a limited selection compared to urban settings.
This exceptional residential land in Llanrug presents a rare opportunity for investors or families looking to establish a home tailored to their needs. With approved planning for a stylish three-bedroom dwelling, you can envision your dream layout—complete with a generous garden perfect for family gatherings or personal retreats. The attractive village location, combined with easy access to local conveniences and outdoor adventures in the neighboring Snowdonia National Park, adds to its allure. Act fast, as opportunities like this don’t last long in such a desirable area—secure your future today!
Land for sale in Minffordd Estate, Llanrug, GWYNEDD, LL55 — £50,000 • 2 bed • 3 bath
Land for sale in Land At Station Road, Station Road, Llanrug, Caernarfon, LL55 — £75,000 • 1 bed • 1 bath
Land for sale in Newborough, Llanfairpwll, Isle of Anglesey, LL61 — £270,000 • 1 bed • 1 bath • 21780 ft²
Land for sale in Dinas Dinlle, Caernarfon, Gwynedd, LL54 — £240,000 • 1 bed • 1 bath • 8800 ft²
Land for sale in Approx 3.2 Acres, Llanrug, Gwynedd, LL55 — £26,000 • 1 bed • 1 bath
Land for sale in Llandwrog, Caernarfon, Gwynedd, LL54 — £20,000 • 1 bed • 1 bath • 3800 ft²






































