**Standout Features:**
- Spacious detached farmhouse with 3 bedrooms and 2 bathrooms
- Large plot featuring approximately 17.5 acres of land
- Breathtaking sea and mountain views
- Proximity to Llanddwyn Beach and Newborough Forest
- Traditional stone construction complemented by substantial outbuildings
- Expansive garden and countryside views
**Notable Concerns:**
- Location in a rural area may affect amenities and services
- Council tax is above average
**Summary:**
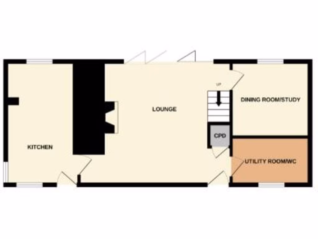
Discover the charm of rural life in this stunning detached farmhouse located in the picturesque village of Newborough. With three spacious bedrooms, two bathrooms, and approximately 17.5 acres of tranquil land, this property offers endless possibilities for families or investors seeking a slice of countryside paradise. Enjoy contemporary features such as a modern living room that boasts bi-fold doors opening to breathtaking country views, while still maintaining the traditional stone charm of the property.
Whether you seek to create a peaceful family retreat or pursue agricultural ventures, this home provides an exceptional opportunity to relish in expansive outdoor space. The property is within a stone's throw of stunning beaches and scenic forests, perfect for outdoor enthusiasts. Although situated in a rural setting with average mobile and broadband connectivity, the incredible location near coastal attractions makes it a worthwhile investment. Seize this unique opportunity to own a quintessential countryside farmhouse—properties like this don’t come along often!
3 bedroom detached house for sale in Newborough, Llanfairpwll, Sir Ynys Mon, LL61 — £549,950 • 3 bed • 2 bath • 1183 ft²
4 bedroom detached house for sale in Rhosgadfan, Caernarfon, Gwynedd, LL54 — £450,000 • 4 bed • 2 bath • 1693 ft²
4 bedroom detached house for sale in Rhostrehwfa, Llangefni, Anglesey, LL77 — £655,000 • 4 bed • 1 bath • 2465 ft²
3 bedroom detached house for sale in Mynydd Bodafon, Llannerch-Y-Medd, Anglesey, LL71 — £575,000 • 3 bed • 1 bath • 1884 ft²
4 bedroom detached house for sale in Llangoed, Beaumaris, Anglesey, LL58 — £685,000 • 4 bed • 2 bath • 2017 ft²
9 bedroom detached house for sale in Bryn Farm & Erw'r Wennol, Caergeiliog, Anglesey, LL65 — £995,000 • 9 bed • 3 bath














































































































































































































































