**Standout Features:**
- Approximately half an acre of land
- Plans for a modern, contemporary cottage-style home
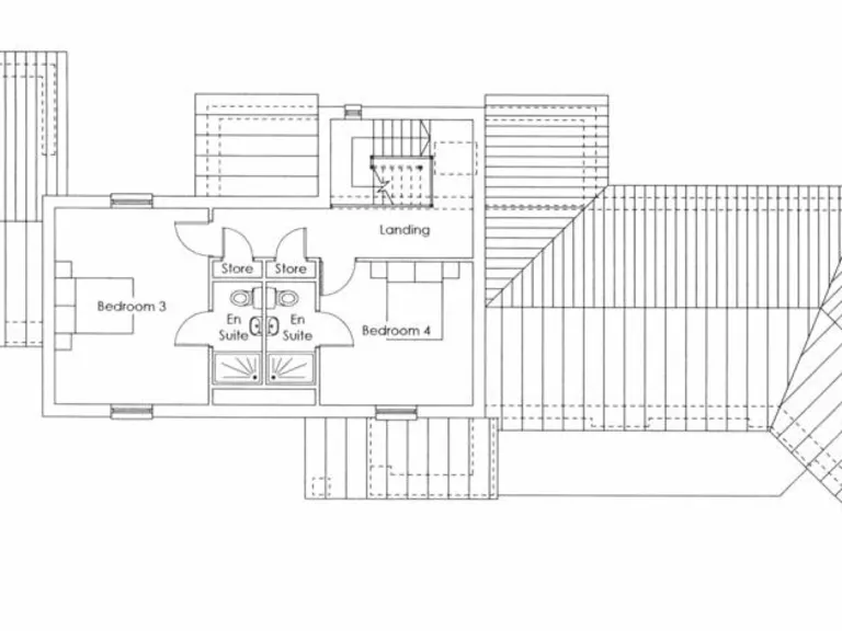
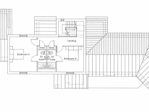
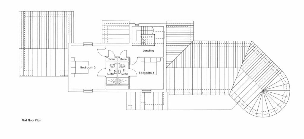
- Potential for a spacious layout with multiple bedrooms and en-suite facilities
- Stunning panoramic views of surrounding countryside
- Located in a tranquil rural setting, perfect for nature lovers
- Excellent mobile signal and fast broadband speeds
**Concerns:**
- The area experiences higher crime rates
- The locale is classified as very deprived, which may affect investment value
- Council tax information is currently unknown
**Summary Description:**
Seize the opportunity to build your dream home in the serene countryside of Nebo, Caernarfon. This flexible half-acre plot promises enchanting views across open fields and lush greenery. Imagine a modern cottage-style residence that could feature multiple bedrooms and en-suite facilities, catering to the needs of families or those seeking a peaceful retreat. The proposed layout includes a spacious kitchen/diner seamlessly connecting to outdoor living spaces, ideal for entertaining or enjoying a quiet moment amidst nature.
While it's essential to note the area's higher crime rates and socioeconomic challenges, the extraordinary potential for a personalized living space combined with rural charm makes this an enticing investment for anyone wishing to escape the hustle and bustle of city life. Act swiftly—opportunities like this are rarely available for long!
Detached house for sale in Plot At Lon Ednyfed, Criccieth, Gwynedd, LL52 — £195,000 • 1 bed • 1 bath
2 bedroom cottage for sale in Nebo, Nebo nr Caernarfon, Gwynedd, LL54 — £350,000 • 2 bed • 1 bath • 883 ft²
4 bedroom detached house for sale in Nebo, Caernarfon, Gwynedd, LL54 — £475,000 • 4 bed • 2 bath • 1773 ft²
2 bedroom detached bungalow for sale in Nebo, Caernarfon, LL54 — £352,000 • 2 bed • 2 bath • 883 ft²
3 bedroom detached house for sale in Nebo, Caernarfon, Gwynedd, LL54 — £449,000 • 3 bed • 2 bath • 1666 ft²
Land for sale in Upper Morannedd, Criccieth, Gwynedd, LL52 — £168,000 • 1 bed • 1 bath • 388 ft²


























