Bright three-bedroom penthouse with private garage and communal gardens.
Triple-aspect lounge with balcony and harbour/South Downs views
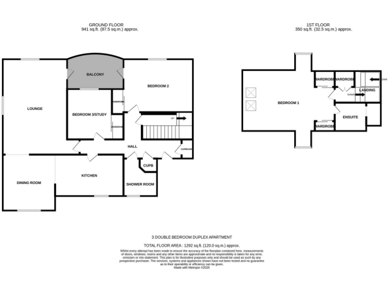
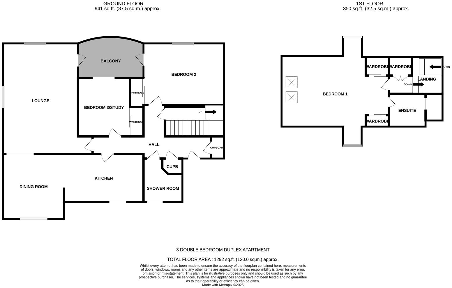
Set within the private Henley Park development, this three-bedroom duplex apartment offers bright, triple-aspect living with harbour and South Downs views. The semi open-plan lounge, dining and fitted kitchen with integrated Neff appliances creates a flexible family hub while a small balcony extends the living space for morning coffee or evening sunsets.
The principal bedroom occupies the top floor and benefits from built-in wardrobes and an en-suite bathroom; two further double bedrooms include fitted storage and balcony access. The property is presented in excellent condition throughout and ready to move into, with gas central heating, double glazing and an EPC of C.
Practical advantages include a long lease (over a thousand years), private residents’ landscaped gardens, garage and allocated parking, and one-pet-per-flat permitted by the lease (prior consent required for more). Service charges and additional reserve/harbour contributions apply and are noted below, and the home sits in a generally affluent, low-crime neighbourhood with good primary and secondary schools close by.
Note the duplex layout requires use of internal stairs, which may not suit those with mobility needs. Annual service charge and reserve fund contributions, plus a sea defence/harbour charge, are payable; council tax band E is above average. No ground rent is charged.
3 bedroom penthouse for sale in Christchurch Place, Eastbourne, BN23 — £390,000 • 3 bed • 2 bath • 1292 ft²
3 bedroom apartment for sale in Chatham Green, Eastbourne, BN23 — £450,000 • 3 bed • 2 bath • 1631 ft²
3 bedroom apartment for sale in Macquarie Quay, Eastbourne, East Sussex, BN23 — £489,000 • 3 bed • 3 bath • 914 ft²
3 bedroom flat for sale in St. Lawrence Mews, Eastbourne, East Sussex, BN23 — £500,000 • 3 bed • 3 bath • 1319 ft²
2 bedroom flat for sale in Admiralty Way, Eastbourne, BN23 — £280,000 • 2 bed • 2 bath • 695 ft²
3 bedroom penthouse for sale in Phoenix Drive, BN23 — £349,950 • 3 bed • 2 bath • 1556 ft²


















































































































