Spacious waterside apartment with garage, private balcony and landscaped communal gardens.
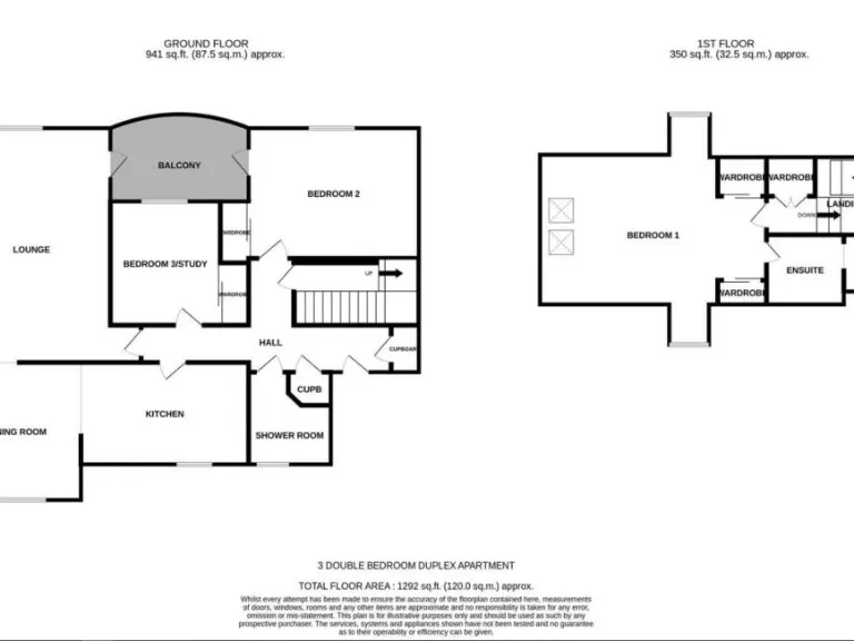
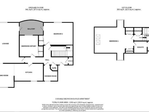
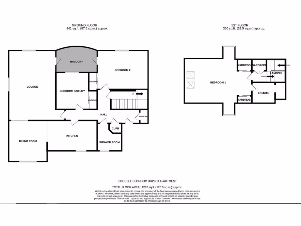
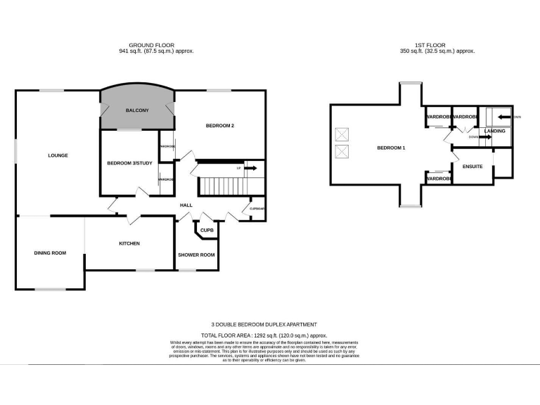
Chain-free three-bedroom duplex penthouse
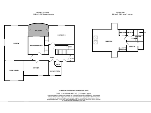
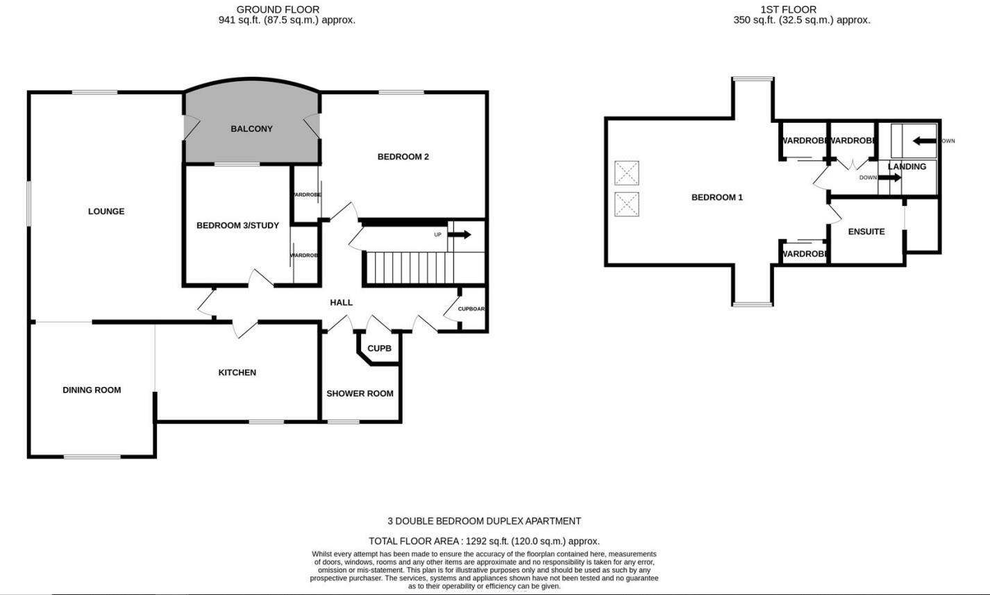
Set on the top two floors of the exclusive Henley Park development, this chain-free three-bedroom duplex penthouse offers bright, low‑maintenance coastal living with superb harbour views. The principal suite occupies a triple aspect and includes an en‑suite bath and shower, while the open-plan living, dining and fitted kitchen with integrated appliances suits relaxed entertaining and everyday life. A sun balcony captures marina views; large windows and neutral decor maximise light and space throughout.
Practical benefits include gas central heating, double glazing, an EPC rating of C, extensive communal landscaped gardens and a private garage. The property is offered with a very long lease (1,087 years remaining) and is located close to schools, local amenities and waterfront facilities — a comfortable option for downsizers or buyers seeking a peaceful waterside base.
Buyers should note this is a leasehold apartment within a managed development; communal areas are shared and there will be service/management arrangements and associated costs. The duplex layout involves internal stairs between floors, and council tax is above average. Overall, the home combines generous proportions, coastal outlooks and a secure, well-maintained setting.
3 bedroom apartment for sale in Christchurch Place, Eastbourne, BN23 — £390,000 • 3 bed • 2 bath • 1292 ft²
3 bedroom penthouse for sale in Midway Quay, Eastbourne, BN23 — £725,000 • 3 bed • 2 bath • 3169 ft²
3 bedroom flat for sale in St. Lawrence Mews, Eastbourne, East Sussex, BN23 — £500,000 • 3 bed • 3 bath • 1319 ft²
2 bedroom flat for sale in Golden Gateway, Eastbourne, BN23 5PT, BN23 — £239,950 • 2 bed • 2 bath • 818 ft²
3 bedroom town house for sale in Phoenix Drive, Eastbourne, BN23 — £370,000 • 3 bed • 2 bath • 1049 ft²
4 bedroom flat for sale in St. Lawrence Mews, Eastbourne, BN23 — £500,000 • 4 bed • 3 bath • 1401 ft²


























































































































































































