Long private garden and off-street parking close to Becontree station.
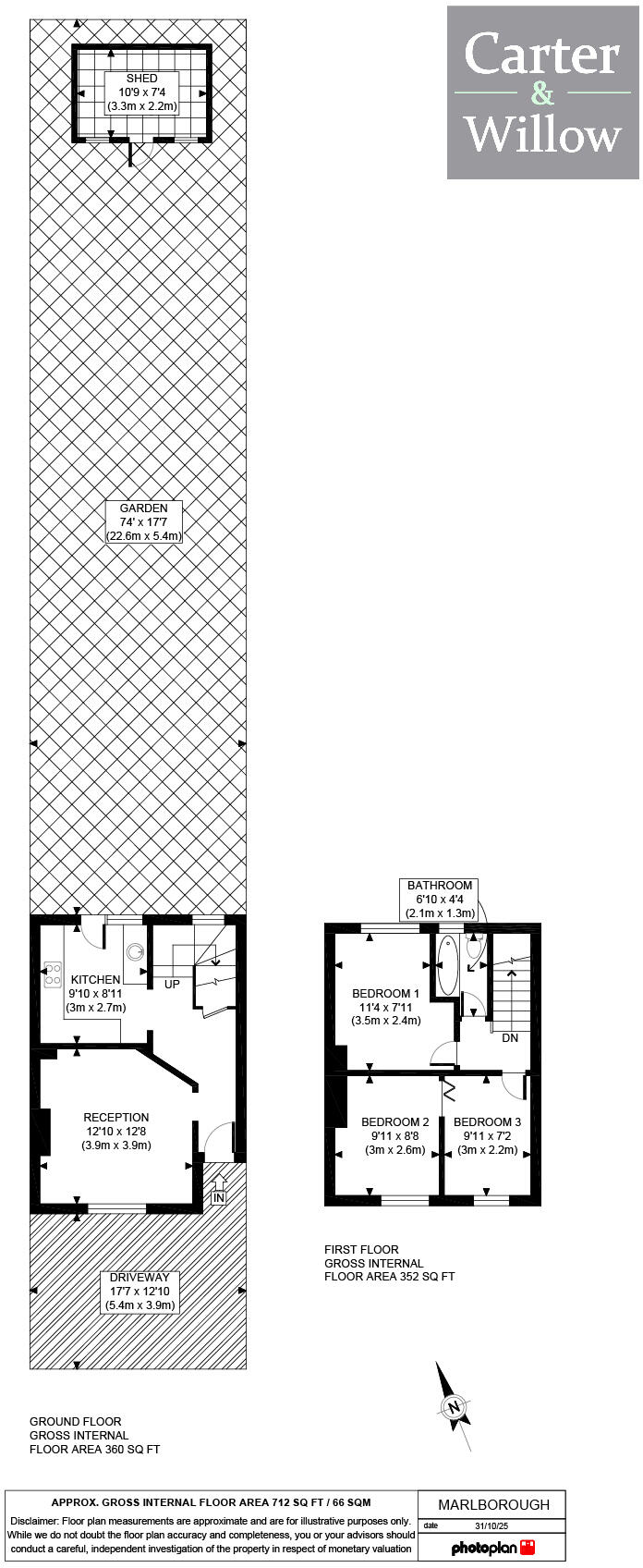
- Approx 74' x 17'7 private rear garden, rare for this size
- Off-street driveway approx 17'7 x 12'10
- 3 bedrooms; circa 712 sq ft (compact family layout)
- Close to Becontree District Line station for commuters
- Modern-style fitted kitchen; 12'10 x 12'8 reception room
- EPC rating D; cavity walls likely uninsulated (energy upgrades advised)
- Mid-20th-century build with exterior wear; needs some modernisation
- Freehold tenure; single bathroom may limit large families
A bright three-bedroom terraced house on Marlborough Road that will suit young families and commuters. The home offers a generous private rear garden of approximately 74 x 17'7 — rare for this size — plus off-street parking for convenient arrivals and outdoor space for children and pets.
Internally the property measures about 712 sq ft and includes a modern-style fitted kitchen, a 12'10 x 12'8 reception room and a first-floor bathroom. It was originally built as a two-bedroom and still offers sensible scope to reconfigure or improve the layout to better suit growing family needs.
Practical features include gas central heating, double glazing and freehold tenure. The location is a strong commuter draw: Becontree District Line station is close by for direct city access, and several well-rated primary and secondary schools are within easy reach.
Buyers should note the house is an older mid-20th-century build with external wear and limited wall insulation (cavity as built). EPC rated D and some external and internal modernisation or energy upgrades may be required to improve comfort and running costs. The plot is small overall despite the long garden, and living space is compact compared with newer family homes.
2 bedroom terraced house for sale in Langley Crescent, Dagenham, RM9 — £375,000 • 2 bed • 1 bath • 799 ft²
3 bedroom terraced house for sale in Fitzstephen Road, Dagenham, RM8 — £425,000 • 3 bed • 1 bath • 762 ft²
3 bedroom end of terrace house for sale in Woodward Road, Dagenham , RM9 — £450,000 • 3 bed • 1 bath • 979 ft²
2 bedroom end of terrace house for sale in Babington Road, Dagenham RM8 — £340,000 • 2 bed • 1 bath • 688 ft²
3 bedroom terraced house for sale in Lindisfarne Road, Dagenham, RM8 — £390,000 • 3 bed • 1 bath • 741 ft²
3 bedroom end of terrace house for sale in Rowney Gardens, Dagenham, RM9 — £450,000 • 3 bed • 1 bath • 958 ft²






















































