Affordable two-bedroom with large garden, ideal for commuters and families.
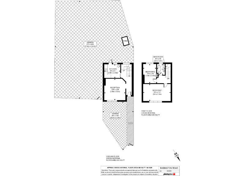
End-terrace freehold with long rear garden, approx 45' x 40'\n(Note: escape sequence for newline not required in schema but must be a single string)
This two-bedroom end-terrace on Babington Road offers practical space and a long private garden, suited to young families or commuters seeking value near Becontree Station. The layout is traditional — reception room, separate kitchen and first-floor bathroom — and the house sits on an average-sized plot with a decent rear garden of approximately 45' x 40'. Local schools include an Outstanding primary and several Good secondaries, which will appeal to parents.
The property has real scope for improvement: the interior is dated and the rear garden and fencing need maintenance. Records describe double glazing and an EPC rating of D, but reported heating information is inconsistent — the sales text states gas central heating while property records indicate no fixed central heating system (electric heaters assumed). Buyers should verify the actual heating and services before committing.
Constructed in the mid-20th century with solid brick walls and no fitted cavity insulation, the house is typical of its era and will benefit from modernization and energy-efficiency works. For investors or owner-occupiers it presents straightforward refurbishment potential and rental or resale upside in a commuter area, but factor in likely improvement costs for heating, insulation and general updating.
Overall, the home is a practical, affordable freehold opportunity in a well-connected, family-oriented neighbourhood. It will suit someone happy to carry out renovation and energy improvements to unlock long-term comfort and value.
2 bedroom end of terrace house for sale in Babington Road, Dagenham, RM8 — £375,000 • 2 bed • 1 bath • 614 ft²
2 bedroom terraced house for sale in Hedgemans Road, Dagenham, RM9 — £375,000 • 2 bed • 1 bath • 1163 ft²
3 bedroom end of terrace house for sale in Woodward Road, Dagenham , RM9 — £450,000 • 3 bed • 1 bath • 979 ft²
2 bedroom end of terrace house for sale in Shortcrofts Road, Dagenham, RM9 — £415,000 • 2 bed • 1 bath • 781 ft²
2 bedroom terraced house for sale in Gale Street, Dagenham, RM9 — £375,000 • 2 bed • 1 bath • 769 ft²
2 bedroom terraced house for sale in Brewood Road, Dagenham, RM8 — £400,000 • 2 bed • 1 bath • 746 ft²






















































































