Freehold three-bed near Elizabeth line, ideal for updates and commuter living.
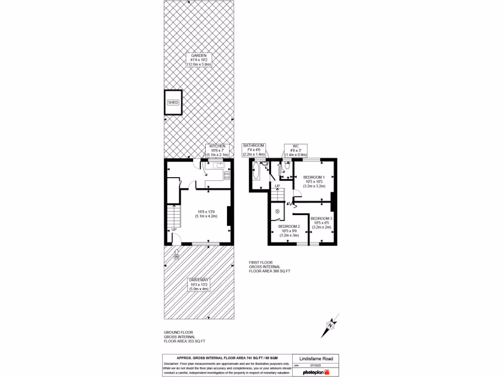
Chain free three-bedroom mid‑terraced freehold property
Large 41'4" x 19'2" private rear garden, good outdoor space
Off-street driveway approx 19'3" x 13'2" for parking
Close to Chadwell Heath Elizabeth line station, strong commuter link
Approx 741 sq ft; rooms compact for three-bed family use
EPC D; likely limited cavity wall insulation — retrofit may be needed
Back exterior and garden require maintenance and cosmetic work
Single bathroom plus separate W/C; only one full bathroom
This chain-free mid‑century terrace is a practical commuter home a short distance from Chadwell Heath Elizabeth line station. The layout includes a large reception, separate kitchen/diner, three bedrooms and a long private garden — useful for growing families or buyers seeking outside space in the city.
The property benefits from a driveway for off‑street parking, gas central heating and double glazing. At about 741 sq ft and with an EPC D, it offers straightforward living and rental potential for investors or first‑time buyers who want easy access to central London.
There are some clear maintenance and upgrade considerations: the house dates from the 1950s–60s and likely lacks modern cavity insulation, external pipework appears untidy, and the rear garden and back exterior need attention. The single bathroom plus separate W/C and compact room sizes mean layout limits compared with larger family homes.
Priced to reflect its condition, this freehold terrace suits buyers seeking a commuter base or a property to update for added value. Local schools have good Ofsted ratings, and there is fast broadband and excellent mobile signal, though the wider area records higher deprivation statistics to be aware of.
3 bedroom terraced house for sale in Hickman Road, Chadwell Heath, RM6 — £500,000 • 3 bed • 1 bath • 876 ft²
3 bedroom end of terrace house for sale in Ager Avenue, Dagenham, RM8 — £475,000 • 3 bed • 1 bath • 778 ft²
3 bedroom terraced house for sale in Ilchester Road, Dagenham, RM8 — £400,000 • 3 bed • 1 bath • 983 ft²
3 bedroom end of terrace house for sale in Ivyhouse Road, Dagenham, RM9 — £475,000 • 3 bed • 1 bath • 1275 ft²
3 bedroom terraced house for sale in Saville Road, Romford, Essex, RM6 — £500,000 • 3 bed • 1 bath • 1088 ft²
3 bedroom terraced house for sale in Railway Street, Romford, Essex, RM6 — £375,000 • 3 bed • 1 bath • 797 ft²


























































