Large garden and driveway near Becontree station ideal for growing families.
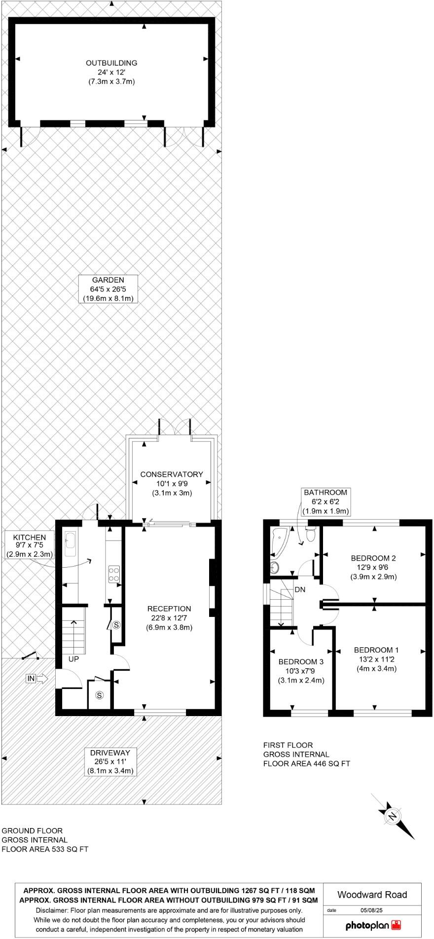
Freehold 3-bedroom end-of-terrace, approx 979 sq ft
This freehold end-of-terrace offers practical family living across nearly 980 sq ft, with a long private garden and generous driveway. The bright through lounge, separate kitchen and conservatory provide flexible living and clear scope to personalise. The 24' x 12' outbuilding is useful for storage, workshop or home office.
Placed a short walk from Becontree (District line) station, the house suits commuting families who value local good schools and quick city access. The property benefits from gas central heating, double glazing and an EPC C rating, making it reasonably efficient for its age.
Buyers should note the house dates from the 1930s and has cavity walls with no added insulation assumed; upgrading insulation could reduce running costs. There is a single first-floor bathroom for three bedrooms and an area-wide profile of higher deprivation, which may influence long-term local investment priorities.
Overall, this is a practical, well-proportioned family home with immediate outdoor space and parking — ideal for buyers wanting a ready-to-live-in house with straightforward improvement potential.
3 bedroom terraced house for sale in Denny Gardens, Dagenham, RM9 — £375,000 • 3 bed • 1 bath • 758 ft²
3 bedroom end of terrace house for sale in Ivyhouse Road, Dagenham, RM9 — £475,000 • 3 bed • 1 bath • 1275 ft²
3 bedroom end of terrace house for sale in Rowney Gardens, Dagenham, RM9 — £450,000 • 3 bed • 1 bath • 958 ft²
3 bedroom terraced house for sale in Ilchester Road, Dagenham, RM8 — £400,000 • 3 bed • 1 bath • 983 ft²
2 bedroom terraced house for sale in Gale Street, Dagenham, RM9 — £375,000 • 2 bed • 1 bath • 769 ft²
4 bedroom end of terrace house for sale in Chaplin Road, Dagenham, RM9 — £600,000 • 4 bed • 2 bath • 1952 ft²






























































