Five-unit conversion opportunity on a substantial rural plot near Market Rasen.
Prior approval granted for change of use to five dwellings under Class Q
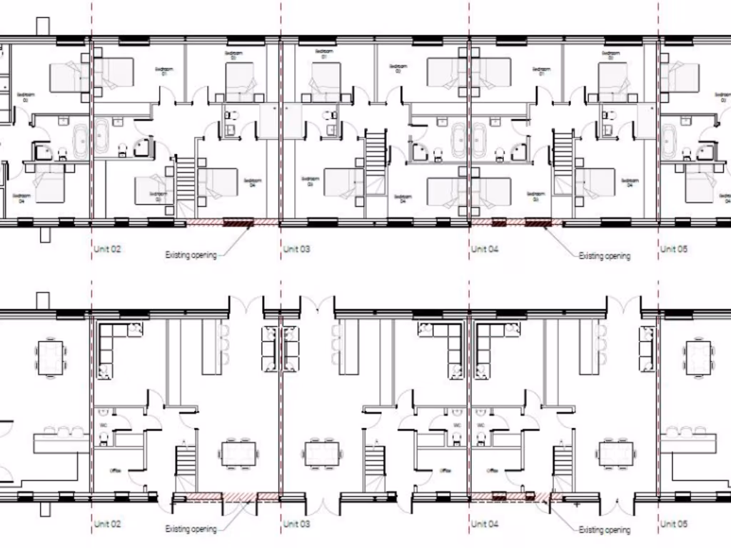
A substantial steel-framed agricultural barn on a very large rural plot, offered with prior approval to create five dwellings under Class Q. The site sits in a quiet hamlet setting near Market Rasen with good road links via the A46; the conversion proposal shows each unit arranged as family-sized accommodation with private gardens and parking.
Key strengths are the building’s colossal internal volume, high eaves, wide vehicle access and extensive hardstanding — all useful for conversion efficiency and construction logistics. The planning decision (WL/2024/01013) is granted and must be implemented within three years of the prior approval date, giving a clear development route for a small rural residential scheme.
Practical considerations: mains water and electricity were previously present but are currently disconnected and must be reconnected; services and utility locations should be verified before purchase. Broadband is very slow and the site is in a remote hamlet with average mobile signal, which may affect marketability to some buyers.
This is a straightforward proposition for developers or investors who can manage off-grid utility reconnections, rights-of-way obligations and implement the approved scheme within the statutory timescale. The freehold, large plot and off-street parking add versatility if an alternative development or retained ownership model is preferred.
5 bedroom barn conversion for sale in Market Rasen, Lincolnshire, LN8 — £200,000 • 5 bed • 4 bath
6 bedroom barn conversion for sale in Castlethorpe Barns, Castlethorpe, Brigg, Lincolnshire, DN20 9LG, DN20 — £275,000 • 6 bed • 1 bath
Commercial development for sale in Vale Farm House, Kirmington Vale, Barnetby, Lincolnshire, DN38 6AF, DN38 — £450,000 • 1 bed • 1 bath
Land for sale in Vale Farm House, Kirmington Vale, Barnetby, Lincolnshire, DN38 6AF, DN38 — £450,000 • 1 bed • 1 bath
3 bedroom barn conversion for sale in The Barns, Westlaby, Snelland, LN3 — £425,000 • 3 bed • 2 bath • 2093 ft²
4 bedroom barn conversion for sale in Gallamore Lane, Middle Rasen, LN8 — £220,000 • 4 bed • 1 bath • 2773 ft²














































