WF2 6QB - Land for sale in Hill Top, Newmillerdam, Wakefield, West Yo…

View on Property Piper

Land for sale in Hill Top, Newmillerdam, Wakefield, West Yorkshire, WF2

Summary - 10, HILL TOP, WAKEFIELD, NEWMILLERDAM WF2 6QB

1 bed 1 bath Land

**Standout Features:**
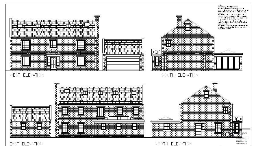
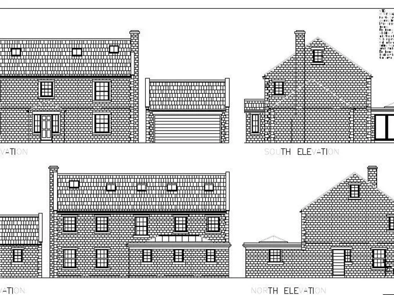
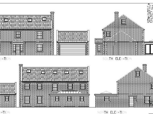
- **Planning Permission Approved** for one detached dwelling and detached garage (Application Number 22/00353/FUL) as of July 7, 2023.
- **Generous Plot Size** with potential for multi-level accommodation in a stone finish.
- **Desirable Location** near Newmillerdam country park, offering scenic walks and cycling paths.
- **Quiet Cul-de-Sac Setting** within an affluent suburb, surrounded by established residential houses.
- **Excellent Mobile Signal** and average broadband speeds.
- **Proximity to Quality Schools**, including several with Outstanding ratings.

**Summary:**
Unlock your architectural vision with this vacant plot of land, perfectly poised for residential redevelopment. With planning permission already awarded for a stunning three-level detached dwelling and garage, this is an exciting opportunity for developers or individuals looking to create their dream home in a serene, semi-rural area. The property is nestled in an affluent neighborhood, directly adjacent to picturesque Newmillerdam, ideal for family activities and leisurely strolls.

While the plot is currently overgrown, it features inviting potential as a blank canvas ready for transformation. Benefit from a cul-de-sac location that promotes tranquility, coupled with easy access to local amenities such as pubs, cafes, and excellent schools. This development opportunity won’t last long—act quickly to secure your chance to build and enjoy your dream!

Property Details

Brochure Descriptions

Image Descriptions

Textual Property Features

Detected Visual Features

Nearby Schools

Nearest Bars And Restaurants

,,,,}

Nearest General Shops

,,}

Nearest Grocery shops

,,}

Nearest Supermarkets

,,}

Nearest Religious buildings

,,}

Nearest Medical buildings

,,,}

Nearest Airports

}

Nearest Leisure Facilities

,,,,}

Nearest Tourist attractions

,,}

Nearest Train stations

,,,,}

Nearest Bus stations and stops

,,,,}

Nearest Hotels

,,}

Tags

Local Market Stats

Similar Properties

Meta

High Res Images

Compatible Images

Low res Images

Thumbnails

Raw Images