Substantial renovation opportunity for experienced buyers or developers.
Vacant freehold mid-terrace Victorian house with small foregarden
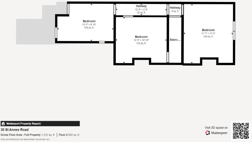
Three bedrooms, two receptions, kitchen, bathroom; approx 1,862 sq ft overall
Double glazing and gas central heating present but age/condition unknown
Requires full renovation throughout; likely insulation and service upgrades
Located in a very deprived area with above-average crime statistics
For sale by auction on 10 Dec 2025; fees and legal pack conditions apply
Sold vacant on completion; buyers exchange unconditionally at auction fall of gavel
Close to several primary and secondary schools; urban amenities and bus links
A vacant three-bedroom mid-terraced Victorian house offered for sale by public auction. The property sits behind a small foregarden and includes two reception rooms, a kitchen, bathroom/WC and small rear garden. It benefits from double glazing and a gas-fired central heating system but requires full refurbishment throughout.
This lot suits experienced investors or builders seeking a low-entry-price project in a major conurbation. With 1,862 sq ft overall and period bay windows, the house offers scope to reconfigure or modernise for rental or resale, subject to planning and building surveys. Energy Performance is rated D; insulating solid brick walls and updating services will be necessary to improve efficiency.
Buyers should note the property is sold freehold at auction with vacant possession on completion. It lies in a very deprived area with above-average crime and will be sold as seen; the legal pack and any additional costs must be reviewed prior to bidding. Viewings are scheduled and the sale is live-streamed—pre-auction offers may be considered.
3 bedroom terraced house for sale in 24 Pinson Road, Willenhall, WV13 2PW, WV13 — £115,000 • 3 bed • 1 bath • 991 ft²
2 bedroom terraced house for sale in 87 Fraser Street, Bilston, WV14 7PB, WV14 — £19,000 • 2 bed • 1 bath • 880 ft²
3 bedroom terraced house for sale in 357 Harden Road, Walsall, West Midlands, WS3 1RR, WS3 — £95,000 • 3 bed • 1 bath • 808 ft²
3 bedroom terraced house for sale in 57 Holden Crescent, Walsall, WS3 1QQ, WS3 — £110,000 • 3 bed • 1 bath • 804 ft²
4 bedroom terraced house for sale in 132 Fenton Street, Brierley Hill, DY5 3HJ, DY5 — £25,000 • 4 bed • 1 bath • 1381 ft²
3 bedroom end of terrace house for sale in 26 Durham Avenue, Willenhall, WV13 1JH, WV13 — £59,000 • 3 bed • 1 bath














































