Auction lot with redevelopment upside near schools and transport links.
Freehold vacant mid-terraced three-bedroom property
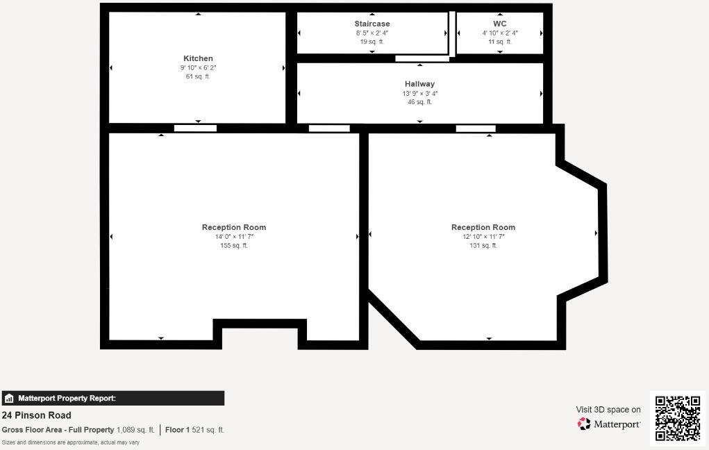
A three-bedroom mid-terraced freehold offered vacant at public auction. The property sits behind a small foregarden and includes two reception rooms, kitchen, downstairs WC, three first-floor bedrooms and a bathroom. Built c.1930–49 with solid brick walls and external insulation, it already has gas central heating, double glazing and an EPC rating of C.
The house is in clearly poor condition: boarded windows, internal damp, floor and wall damage and general neglect noted. It will require a comprehensive refurbishment — cosmetic and likely structural attention — before it is habitable to modern standards. Buyers should expect to factor repair costs and any specialist surveys into their budgets.
This lot suits a cash buyer, developer or investor looking for a renovation project in a major conurbation. The 1,089 sq ft footprint and mid-terrace parcel are compact, with a small rear garden offering straightforward improvement potential. Nearby schools and local amenities are within reach, but the location is in a very deprived area with very high crime rates, which may affect rental demand and resale values.
Sale is by auction with vacant possession on completion. Prospective purchasers must review the legal pack and allow for the buyer’s administration fee and any additional costs in the special conditions. Viewings are scheduled but properties may lack utilities and inspections should be done with caution.
3 bedroom terraced house for sale in 30 St. Annes Road, Willenhall, WV13 1ED, WV13 — £60,000 • 3 bed • 1 bath • 1862 ft²
2 bedroom terraced house for sale in 87 Fraser Street, Bilston, WV14 7PB, WV14 — £19,000 • 2 bed • 1 bath • 880 ft²
3 bedroom terraced house for sale in 357 Harden Road, Walsall, West Midlands, WS3 1RR, WS3 — £95,000 • 3 bed • 1 bath • 808 ft²
3 bedroom terraced house for sale in 57 Holden Crescent, Walsall, WS3 1QQ, WS3 — £110,000 • 3 bed • 1 bath • 804 ft²
2 bedroom semi-detached house for sale in 142 Clarence Road, Bilston, WV14 6PG, WV14 — £49,000 • 2 bed • 1 bath • 747 ft²
3 bedroom semi-detached house for sale in 20 Harrowby Place, Willenhall, WV13 2RA, WV13 — £145,500 • 3 bed • 1 bath






















































































