CV9 2BA - 3 bedroom detached house for sale in Taverners Lane, Athers…

View on Property Piper

3 bedroom detached house for sale in Taverners Lane, Atherstone, Warwickshire, CV9 2BA, CV9

Summary - Taverners Lane, Atherstone, Warwickshire CV9 2BA CV9 2BA

3 bed 1 bath Detached

Freehold 3-bed house with 8,700 sq ft industrial site — redevelopment potential subject to planning.
- Freehold mixed-use site of approx. 0.47 acres (0.19 ha)
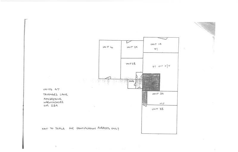
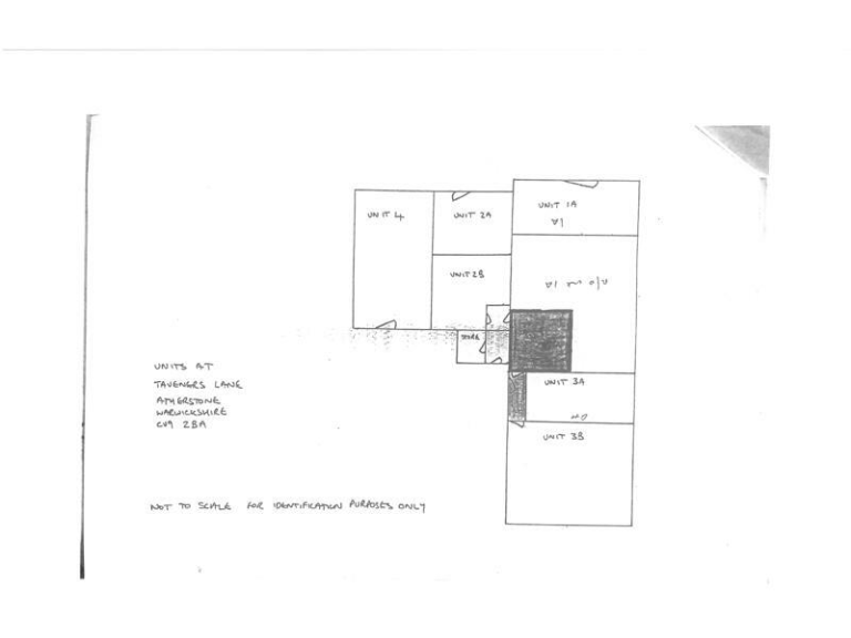
- Industrial GIA c.8,727 sq ft split into nine units
- Three-bedroom detached house with garden and driveway
- Redevelopment potential subject to planning permission
- Industrial roofs include asbestos-sheet north lights
- Slow broadband and average local crime levels
- Off-street parking accessed from shared yard
- Council tax band comparatively low
A rare mixed-use freehold on Taverners Lane combining a three-bedroom detached house (Ivy House) with an adjacent industrial facility across approx. 0.47 acres (0.19 ha). The industrial element extends to about 8,727 sq ft GIA and is currently split into nine units around a shared yard — offering immediate rental income or owner-occupation with workshop/storage space.

The site has clear redevelopment potential subject to planning permission and local authority consents; layouts and large footprint could suit residential conversion, mixed-use redevelopment or continued light industrial use. Note the industrial roofs include asbestos sheet north-lights and a variety of flat roofing systems, so roof and remediation costs should be factored into any scheme.

Practical advantages include off-street parking, a front garden for the house, and proximity to Atherstone town centre with good local schools. Drawbacks: slow broadband, average crime rates for the area, an ageing industrial fabric requiring maintenance, and any change of use will need formal planning approvals. Investors or developers should commission technical and planning surveys early to confirm costs and viability.

Property Details

Image Descriptions

Floorplan Description

Rooms

Textual Property Features

Target Audience

AI Tags

Detected Visual Features

Nearby Schools

Nearest Bars And Restaurants

,,,,}

Nearest General Shops

,,}

Nearest Grocery shops

,,}

Nearest Supermarkets

,,}

Nearest Religious buildings

,,}

Nearest Medical buildings

,,,}

Nearest Airports

,}

Nearest Leisure Facilities

,,,,}

Nearest Tourist attractions

,,}

Nearest Train stations

,,,,}

Nearest Bus stations and stops

,,,,}

Nearest Hotels

,,}

Tags

Local Market Stats

AirBnB Data

Similar Properties

Meta

High Res Images

Compatible Images

Low res Images

Thumbnails

Raw Images

High Res Floorplan Images

Compatible Floorplan Images

Low res Floorplan Images

FloorplanImages Thumbnail

Raw Floorplan Images