CV9 2BA - Light industrial facility for sale in Taverners Lane, Ather…

View on Property Piper

Light industrial facility for sale in Taverners Lane, Atherstone, Warwickshire, CV9 2BA, CV9

Summary - Taverners Lane, Atherstone, Warwickshire, CV9 2BA CV9 2BA

1 bed 1 bath Light Industrial

Substantial freehold site with industrial income and redevelopment potential, subject to planning..
- Freehold mixed-use site, approx. 0.47 acres (0.19 ha)
- Industrial GIA about 8,727 sq ft (810.8 sq m)
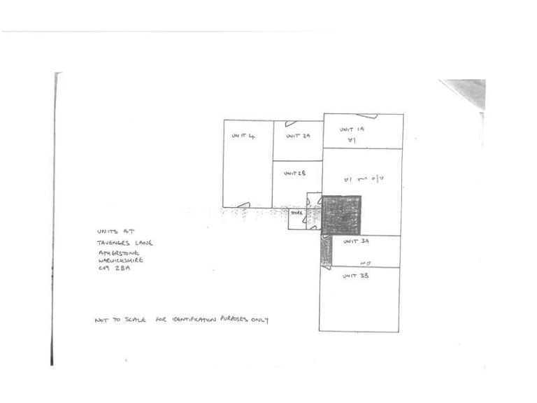
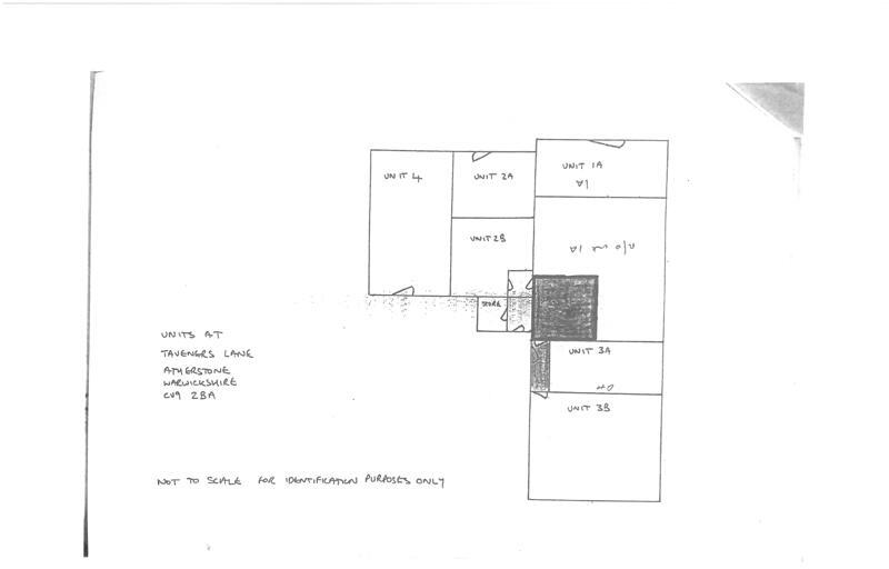
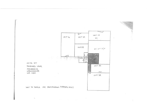
- Currently subdivided into nine rentable units
- Three‑bedroom detached house (Ivy House) on site
- Large shared yard with off-street parking and servicing
- Roof includes asbestos sheet north lights; requires repair
- Redevelopment potential subject to planning permission
- Slow broadband; area average for deprivation and crime
A rare mixed-use freehold site on the edge of Atherstone town centre, combining a three‑bedroom detached house (Ivy House) with a substantial single‑storey industrial facility. The industrial building extends to approximately 8,727 sq ft (810.8 sq m) over a site of about 0.47 acres (0.19 ha) and is currently sub-divided into nine units arranged around a shared yard and external WC facilities. Vehicle access and yard parking/service space are already in place.

The buildings offer clear redevelopment upside subject to planning and local authority consents: the site scale, town-edge location and mixed-use nature suit a range of uses for investors or developers. The location benefits from nearby canal frontage, green space and town amenities with good local schools, while the property sits in an industrious transitional area that can support commercial conversion or consolidation.

Buyers should note material constraints: the industrial roof includes asbestos sheet north lights and mixed flat roofing, and parts of the fabric will require repair or refurbishment. Broadband speeds are slow and the site sits in an area of average deprivation with average crime levels. Any change of use or redevelopment will be subject to planning permission and statutory consents.

For purchasers seeking an income-producing asset or a site with redevelopment potential, this is a substantial plot with established access and service yard. It presents an opportunity to add value through refurbishment, consolidation or redevelopment once planning clarity is obtained.

Property Details

Brochure Descriptions

Image Descriptions

Floorplan Description

Rooms

Textual Property Features

Target Audience

AI Tags

Detected Visual Features

Nearby Schools

Nearest Bars And Restaurants

,,,,}

Nearest General Shops

,,}

Nearest Grocery shops

,,}

Nearest Supermarkets

,,}

Nearest Religious buildings

,,}

Nearest Medical buildings

,,,}

Nearest Airports

,}

Nearest Leisure Facilities

,,,,}

Nearest Tourist attractions

,,}

Nearest Train stations

,,,,}

Nearest Bus stations and stops

,,,,}

Nearest Hotels

,,}

Tags

Local Market Stats

AirBnB Data

Similar Properties

Meta

High Res Images

Compatible Images

Low res Images

Thumbnails

Raw Images

High Res Floorplan Images

Compatible Floorplan Images

Low res Floorplan Images

FloorplanImages Thumbnail

Raw Floorplan Images