**Standout Features:**
- **Building Plot Size:** Large plot in a sought-after residential location
- **Planning Permission:** Approved for a new detached dwelling (1 bedroom, 1 bathroom, approx. 1,133 sq ft)
- **New Build:** Modern design with efficient layout suitable for comfortable living
- **Outdoor Space:** Includes a rear garden and off-street parking
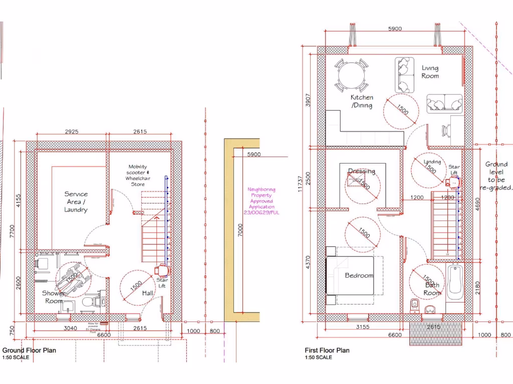
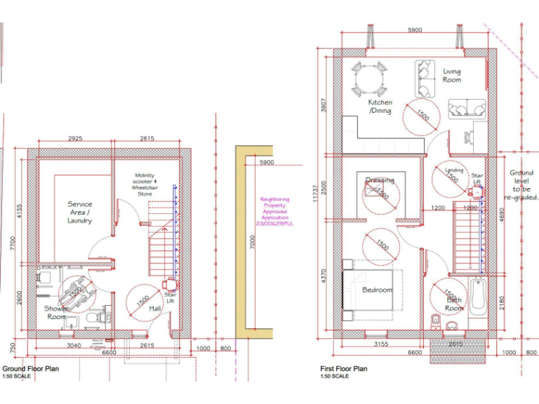
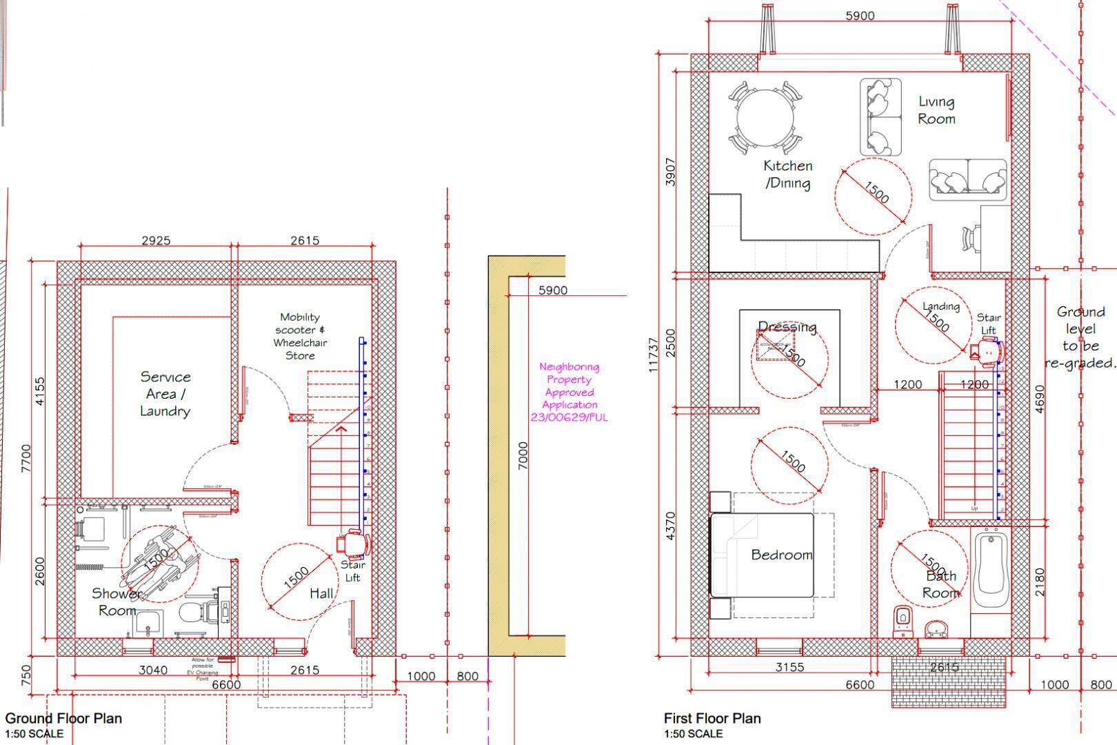
- **Accessibility:** Ground floor features laundry and shower for practical living
- **Affluent Area:** Located in a prosperous countryside setting with excellent mobile and broadband connectivity
**Potential Concerns:**
- **Development Costs:** Provisions for Community Infrastructure Levy may apply
- **Condition:** As a new build, some may see it as needing further landscaping or aesthetic touches
This is a rare opportunity to secure a large building plot with planning permission in the vibrant community of Easingwold. Envision your dream home here, with a contemporary design that enhances modern living over two well-thought-out floors. The ground floor introduces a spacious reception area, convenient shower room, and a dedicated laundry room, promoting accessibility and comfort. Ascend to the first floor, where a generous open-plan kitchen and dining space awaits, perfect for family gatherings, alongside a cosy living area that caters to relaxation and entertainment. The master bedroom includes the luxury of an en-suite dressing room and integrated bathroom, ensuring privacy and convenience.
Outside, enjoy a quaint garden space ideal for outdoor leisure, with a traditional brick garage adding charm to the potential setting. Experience peace of mind nestled in a tranquil environment surrounded by stunning greenery, all while benefiting from the connectivity of a thriving small-town atmosphere.
With quality schools nearby and local amenities providing everything you need, this opportunity encapsulates both comfort and potential. Act quickly to make this plot your own—a coveted gem in a promising area awaits its new owner!
Plot for sale in Back Lane, Easingwold, YO61 — £95,000 • 1 bed • 1 bath • 1133 ft²
Plot for sale in Half Moon Street, Linton on Ouse, York, YO30 — £150,000 • 1 bed • 1 bath • 2255 ft²
Residential development for sale in West Terrace, Husthwaite, York, YO61 — £90,000 • 1 bed • 1 bath • 1894 ft²
Plot for sale in West Terrace, Husthwaite, York, YO61 — £90,000 • 1 bed • 1 bath • 1894 ft²
4 bedroom detached house for sale in Partridge Road, Easingwold, YO61 — £550,000 • 4 bed • 2 bath • 1933 ft²
4 bedroom detached house for sale in Raskelf, York, YO61 — £725,000 • 4 bed • 4 bath • 635 ft²






























