Prime plot with approved plans for a modern two-bedroom home near Easingwold.
Planning permission granted for two-bedroom detached house (Ref ZB25/00394/FUL)
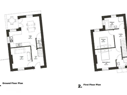
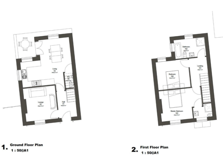
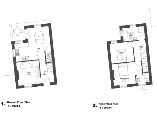
A ready-to-build residential plot on the rural edge of Husthwaite with planning permission already granted for a two-bedroom detached house. The approved scheme creates about 861 sq ft (80 sq m) of living space with a double-width driveway and gardens to the side and rear, set within an overall plot of approximately 1,894 sq ft (176 sq m). The site sits in a very low crime, village setting with fast broadband available and no flood risk.
This freehold plot is well suited to first-time buyers or small families seeking a new-build home in a peaceful village location roughly 15 miles from York and close to Easingwold and Thirsk. Permission was granted by North Yorkshire Council on 24 June 2025 (Planning Ref ZB25/00394/FUL); electronic copies of approved plans and decision conditions are available via the council portal.
Buyers should note material development costs: mains water and electricity have not yet been connected and will require separate quotes and lead times. The development will also be liable for the Community Infrastructure Levy, and prospective purchasers should factor CIL and utility-connection costs into budgets. The plot provides clear potential to deliver a contemporary two-storey home with garden space and off-street parking, but some project management and upfront expenditure will be needed to complete the build.
Residential development for sale in West Terrace, Husthwaite, York, YO61 — £90,000 • 1 bed • 1 bath • 1894 ft²
Plot for sale in Half Moon Street, Linton on Ouse, York, YO30 — £150,000 • 1 bed • 1 bath • 2255 ft²
Residential development for sale in Back Lane, Easingwold, YO61 — £130,000 • 1 bed • 1 bath • 1133 ft²
Plot for sale in Back Lane, Easingwold, YO61 — £130,000 • 1 bed • 1 bath • 1133 ft²
3 bedroom detached bungalow for sale in Husthwaite, York, YO61 — £300,000 • 3 bed • 2 bath • 999 ft²
4 bedroom house for sale in Carlton Lane, Helmsley, YO62 — £200,000 • 4 bed • 1 bath • 10172 ft²










































