Freehold plot with consent for a 1-bed new build in central Easingwold..
Full planning permission granted (Ref ZB23/01703/FUL) on 04/03/2024
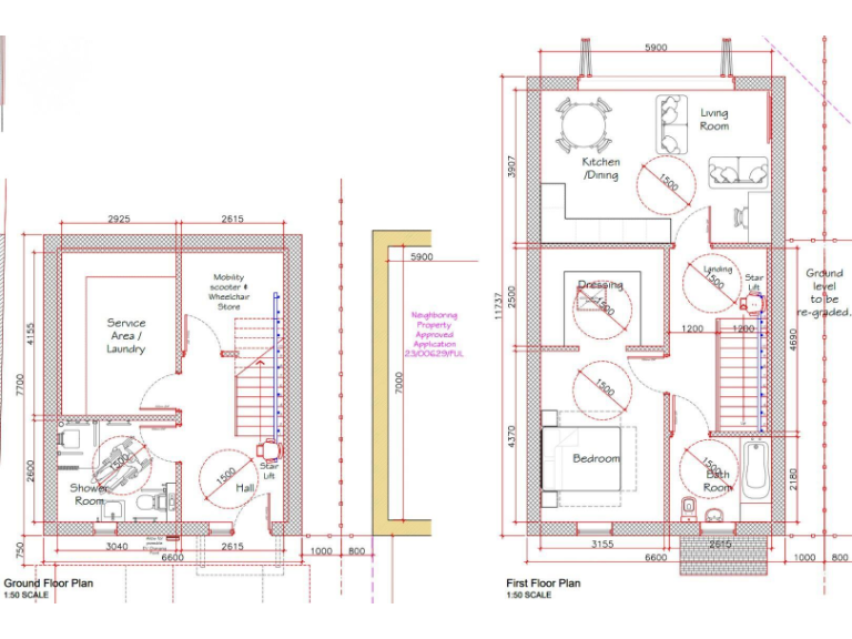
Approximately 1,133 sq ft (105.25 sq m) across two floors
One-bedroom detached new build with rear garden
Freehold single building plot in Easingwold town fringe
CIL liable; Community Infrastructure Levy applies
Planning condition: two 6m off-street parking spaces required
Construction management plan required and approved details referenced
Small plot and single-bedroom layout limit family expansion potential
A rare single-building plot in central Easingwold with full planning permission (North Yorkshire Council decision 4 March 2024, ref ZB23/01703/FUL) to construct a new detached one-bedroom home of approximately 1,133 sq ft over two floors. The scheme delivers an open-plan first-floor living/dining/kitchen, ground-floor utility, shower and store rooms, a rear garden and off-street parking provision.
This freehold plot suits a downsizer, retiree or small-house developer seeking low-maintenance new build accommodation in a very affluent, town-fringe location. The site benefits from excellent mobile signal and fast broadband, proximity to town amenities and highly rated local schools, and a clear decision notice and approved plans available on the council portal.
Buyers should note practical conditions attached to the consent: Community Infrastructure Levy (CIL) liability, a requirement to provide two 6m parking spaces, and submission/compliance with a construction management plan. The plot is relatively small and the approved design delivers a single bedroom, so scope for a larger family home is limited without amended consent.
This is a straightforward opportunity to implement the approved build or apply for alternative designs, subject to planning. The decision notice and approved plans allow immediate progress for buyers familiar with small-scale new build projects; however, expect CIL charges, planning conditions and coordination of on-site construction logistics.
Residential development for sale in Back Lane, Easingwold, YO61 — £130,000 • 1 bed • 1 bath • 1133 ft²
Plot for sale in Half Moon Street, Linton on Ouse, York, YO30 — £150,000 • 1 bed • 1 bath • 2255 ft²
Plot for sale in West Terrace, Husthwaite, York, YO61 — £90,000 • 1 bed • 1 bath • 1894 ft²
Residential development for sale in West Terrace, Husthwaite, York, YO61 — £90,000 • 1 bed • 1 bath • 1894 ft²
4 bedroom detached house for sale in Partridge Road, Easingwold, YO61 — £550,000 • 4 bed • 2 bath • 1933 ft²
Residential development for sale in Main Street, Stillington, York, YO61 — £190,000 • 1 bed • 1 bath • 1012 ft²






























