**Standout Features:**
- Prime residential building plot in the heart of Husthwaite village.
- Planning permission granted for a 2-bedroom detached house.
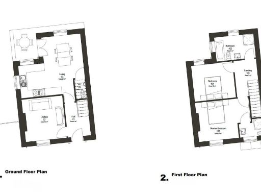
- Total plot size: 1,894 sq ft; potential living space: 861 sq ft.
- Double-width driveway and spacious side/rear garden.
- Surrounded by picturesque rural views and green space.
- Off-street parking available.
- Freehold tenure and chain-free sale.
- Very low crime rate and community-friendly setting.
**Potential Downsides:**
- Mains water and electricity connections need to be installed.
- Local schools vary in Ofsted ratings; one school rated 'Requires Improvement.'
**Property Summary:**
Discover a rare opportunity to build your dream home on this generous building plot in the idyllic village of Husthwaite, just a short distance from Easingwold and York. With planning permission recently granted for a charming 2-bedroom detached house, the property boasts a total plot of 1,894 square feet, allowing for a comfortable lifestyle and ample outdoor space. Envision a home that captures the essence of rural living, complete with a double-width driveway, quaint garden areas, and serene countryside views.
This development is ideal for families or investors looking to create a bespoke retreat in a community-focused environment—with low crime, nearby amenities, and schools to suit various preferences. As mains utilities are to be connected, proactive buyers will appreciate the chance to customize their future residence. Don't miss this exciting chance to invest in a peaceful piece of Yorkshire countryside. Explore this unique opportunity today!
Plot for sale in West Terrace, Husthwaite, York, YO61 — £90,000 • 1 bed • 1 bath • 1894 ft²
Plot for sale in Half Moon Street, Linton on Ouse, York, YO30 — £150,000 • 1 bed • 1 bath • 2255 ft²
Residential development for sale in Back Lane, Easingwold, YO61 — £130,000 • 1 bed • 1 bath • 1133 ft²
3 bedroom detached house for sale in High Street, Husthwaite, YO61 — £675,000 • 3 bed • 2 bath • 1900 ft²
Plot for sale in Back Lane, Easingwold, YO61 — £95,000 • 1 bed • 1 bath • 1133 ft²
Land for sale in Croft Lane, Carlton Husthwaite, Thirsk, YO7 — £550,000 • 1 bed • 1 bath • 5068 ft²






































