Two adjacent apartments with retail frontage, ideal for refurbishment investors.
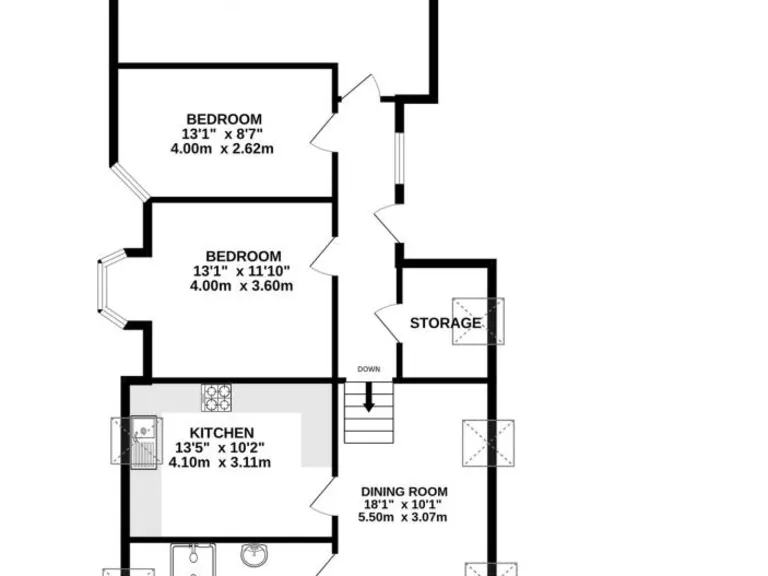
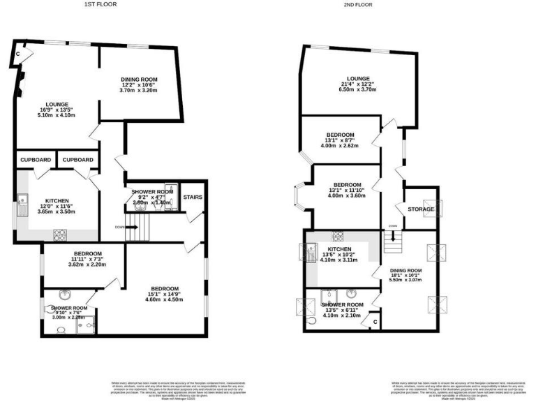
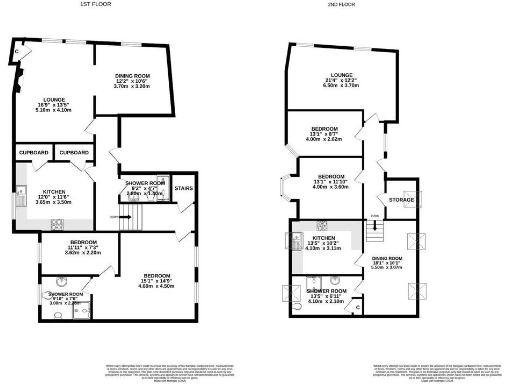
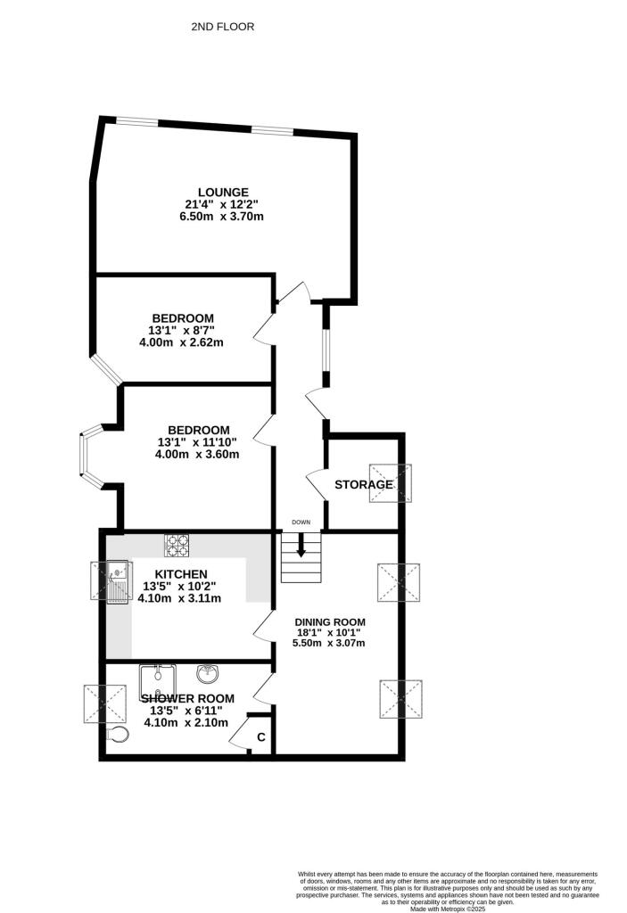
- Two period flats sold as one development project
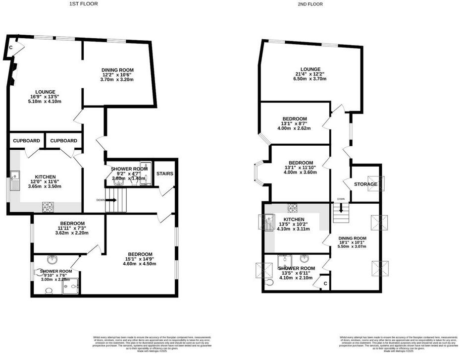
- Each apartment: 2 bedrooms, 1 shower room, attic accommodation
- Mixed-use sandstone building with ground-floor retail potential
- Freehold with double glazing and gas central heating
- No home reports; buyer to arrange surveys and checks
- Property needs upgrading and cosmetic refurbishment
- Very deprived local area; rental demand may be constrained
- Average broadband speeds; excellent mobile signal
Two generous period flats sold together offer a clear development and rental opportunity in central Brothock Bridge. The upper and attic apartments provide flexible layouts—each has two bedrooms, communal character features, double glazing and gas central heating. The building includes ground-floor commercial/retail space, giving potential for mixed-income returns.
The accommodation retains period detail but will require upgrading to realise full value; cosmetic and systems improvements are likely. There are no home reports available, so buyers should budget for inspection and potential remedial work. Broadband speeds are average and the surrounding neighbourhood is classed as very deprived, which affects rental prospects and long-term capital growth.
Practical positives include freehold tenure, low council tax (Band B), excellent mobile signal and town-centre visibility with immediate street parking and good transport links. This suits developers, buy-to-let investors or an owner-occupier willing to renovate while letting the other flat. Early inspection is advised to verify floor areas, condition and any investment needed.
2 bedroom flat for sale in Union Street East, Arbroath, DD11 — £100,000 • 2 bed • 1 bath • 646 ft²
2 bedroom flat for sale in Cairnie Street, Arbroath, DD11 — £70,000 • 2 bed • 1 bath • 545 ft²
3 bedroom flat for sale in Hill Road, Arbroath, Angus, DD11 — £135,000 • 3 bed • 1 bath
2 bedroom flat for sale in Abbotsford Road, Arbroath, Angus, DD11 — £85,000 • 2 bed • 1 bath • 797 ft²
2 bedroom apartment for sale in West Grimsby, Arbroath, DD11 — £75,000 • 2 bed • 1 bath
1 bedroom apartment for sale in Brothock Bridge, Arbroath, Angus, DD11 — £35,000 • 1 bed • 1 bath


























































































