Renovated Victorian garden flat with private entrance and long lease, ideal for first-time buyers.
Private entrance and south-facing secluded courtyard garden
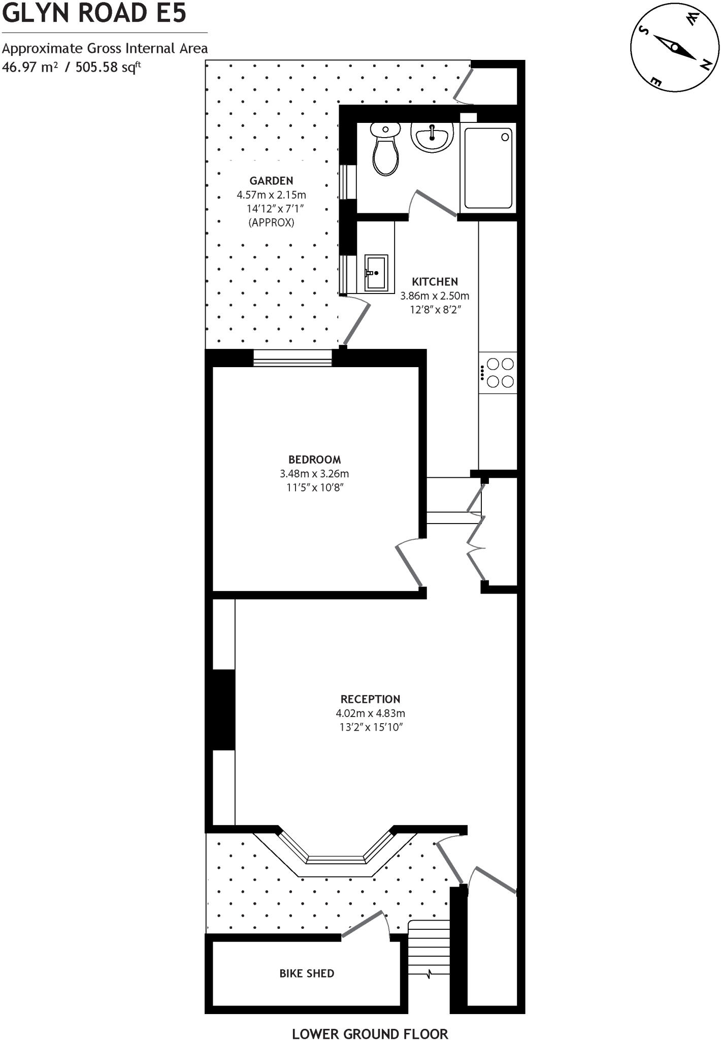
A beautifully presented one-bedroom garden flat occupying the lower level of a Victorian mid-terrace, freshly renovated and ready to move into. The apartment benefits from a private entrance, large sash windows that flood the living space with light and a south-facing secluded courtyard garden — rare extras for a flat this size. At about 505 sq ft the layout includes an inviting reception hall with storage, a generous double bedroom and a modern shower room.
Practical strengths include a very long lease (987 years) and share of freehold, mains gas central heating with boiler and radiators, double glazing and fast broadband/mobile signal — all helpful for a first-time buyer. The kitchen is a stylish mid-century inspired galley with integrated appliances and direct garden access, ideal for indoor–outdoor living in warmer months.
Be candid about the local context: the wider area registers as relatively deprived with average crime levels, so buyers prioritising absolute tranquillity or low-crime suburbs should consider that. The building dates from the 1930s and the exterior walls are solid brick (no assumed insulation) — energy performance may lag newer builds and further insulation works could be considered.
This flat suits a first-time buyer seeking characterful period features, a private outdoor space and a move-in-ready finish, while retaining scope for modest energy improvements. Its location close to Chatsworth Road, good transport links and nearby green spaces makes it a practical urban home with strong lifestyle appeal.
1 bedroom flat for sale in Glyn Road, Homerton, London, E5 — £475,000 • 1 bed • 1 bath • 495 ft²
2 bedroom flat for sale in Chatsworth Road, Lower Clapton, London, E5 — £675,000 • 2 bed • 1 bath • 980 ft²
2 bedroom flat for sale in Adley Street, London, E5 — £575,000 • 2 bed • 1 bath • 511 ft²
2 bedroom flat for sale in Glyn Road, London, E5 — £750,000 • 2 bed • 2 bath • 1205 ft²
1 bedroom apartment for sale in Mount Pleasant Lane, London, E5 — £460,000 • 1 bed • 1 bath • 678 ft²
1 bedroom flat for sale in Cephas Avenue, Stepney, London, E1 — £480,000 • 1 bed • 1 bath • 459 ft²














































































