**Standout Features:**
- Private entrance and charming West-facing garden
- Immaculate presentation in a Victorian mid-terrace property
- Share of freehold with extensive storage options
- Bright, open-plan living space with modern kitchen
- Close proximity to vibrant Chatsworth Road and Hackney Marshes
- Strong local school options with good and outstanding ratings
- Excellent mobile signal and fast broadband speeds
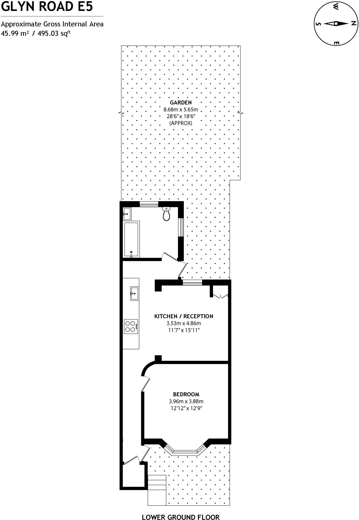
Discover this beautifully presented one-bedroom flat located on the lower ground floor of a stunning Victorian residence. The spacious bay-fronted bedroom and chic bathroom lead seamlessly into a contemporary open-plan kitchen and bright living area, making it a perfect haven for modern living. Enjoy outdoor relaxation in your own private west-facing garden, ideal for sunbathing or entertaining friends.
With a share of freehold, extensive storage, and the convenience of a private entrance, this flat is not only a fantastic home but also offers great potential for an investment or renovation to enhance its value further. Nestled on a peaceful street yet within walking distance to the dynamic atmosphere of Chatsworth Road, you’ll find cafes, shops, and lush green spaces just a stone's throw away.
While the overall size is average, the property is perfect for first-time buyers or investors seeking a slice of Hackney's vibrant inner-city lifestyle. Enhanced by nearby top-rated schools, strong transport links, and a growing local community, this gem won’t be on the market for long—act quickly to secure your exclusive piece of urban living!
1 bedroom flat for sale in Glyn Road, Homerton, London, E5 — £475,000 • 1 bed • 1 bath • 505 ft²
1 bedroom flat for sale in Glenarm Road, Hackney, London, E5 — £350,000 • 1 bed • 1 bath • 416 ft²
1 bedroom flat for sale in Dunlace Road, Lower Clapton, London, E5 — £425,000 • 1 bed • 1 bath • 481 ft²
2 bedroom flat for sale in Adley Street, London, E5 — £575,000 • 2 bed • 1 bath • 511 ft²
4 bedroom flat for sale in Glyn Road, London, E5 — £975,000 • 4 bed • 2 bath • 1211 ft²
3 bedroom flat for sale in Elderfield Road, Lower Clapton, London, E5 — £750,000 • 3 bed • 1 bath • 838 ft²






























































