Large freehold plot with approved plans for a modern cottage home.
Planning permission granted 10 Oct 2024 (ref 24/00329/FUL)
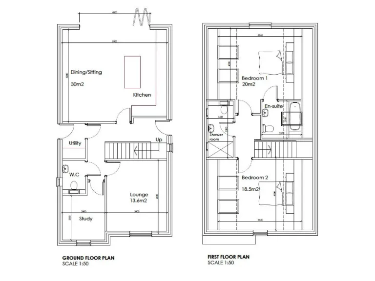
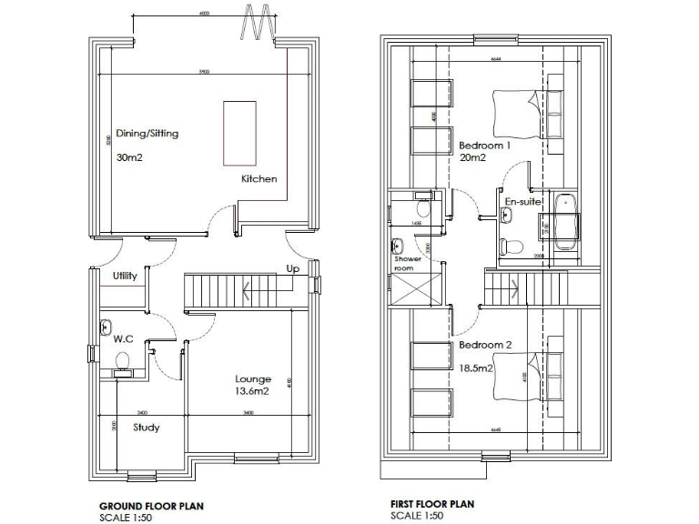
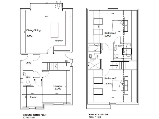
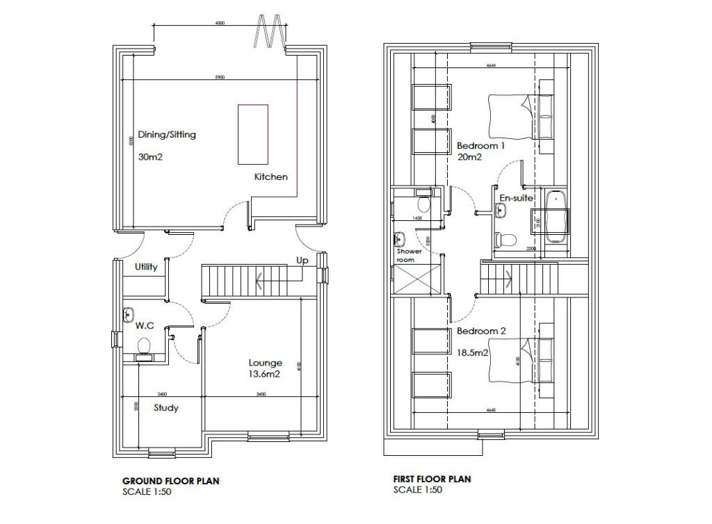
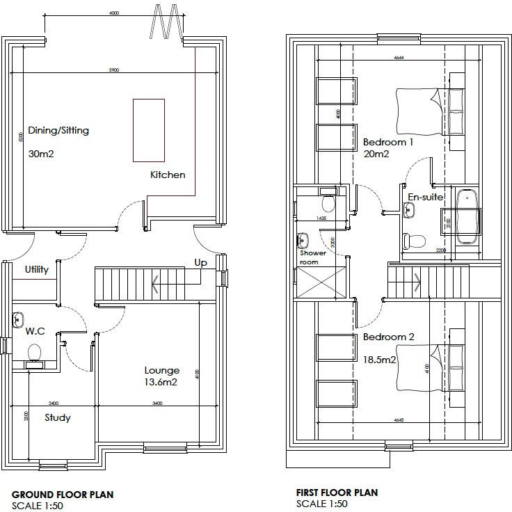
A rare building plot on sought-after School Lane, Walton, with full planning permission for a detached two-storey bungalow-style home. The approved scheme (Wakefield Council ref 24/00329/FUL, decision dated 10 October 2024) shows a modern cottage design with open-plan living, 2–3 bedrooms, two bathrooms and dedicated rear garden and front parking. The site sits in a peaceful, leafy village setting while remaining within easy driving distance of Wakefield city centre and major road and rail links.
The plot is large and freehold, ideal for self-builders or small developers who want a near-complete planning package to move quickly to build. Local amenities and highly regarded schools are close by, and the area scores highly for affluence, low crime and fast broadband — practical strengths for family buyers or for a rental proposition.
Buyers should note this is a raw development opportunity: the price reflects land and planning only. Construction costs, contractors’ fees, statutory connections and any landscaping or specification choices are not included. Purchasers must satisfy themselves over build budgets, timelines and any conditions on the planning consent; the decision notice and plans are available on the Wakefield Council Planning Portal.
This plot offers a straightforward route to a modern, low-risk new home in a stable, desirable area. For those prepared to manage a build project, the site delivers good schools, village character and strong local connectivity as tangible value drivers.
Land for sale in Haw Park Lane, Wakefield, Wakefield, WF2 — £95,000 • 1 bed • 1 bath
Land for sale in Carlton Lane, Lofthouse, Wakefield, West Yorkshire, WF3 3LJ, WF3 — £110,000 • 1 bed • 1 bath
Plot for sale in Nine Acre House, Chevet Lane, Chevet, WF2 — £725,000 • 4 bed • 4 bath • 4300 ft²
Land for sale in Batley Road, Wrenthorpe, Wakefield, West Yorkshire, WF2 — £250,000 • 1 bed • 1 bath • 1800 ft²
Plot for sale in Ruskin Avenue, Wakefield, WF1 — £275,000 • 1 bed • 1 bath
Land for sale in Hill Top, Newmillerdam, Wakefield, West Yorkshire, WF2 — £450,000 • 1 bed • 1 bath






































