Two freehold plots with outline planning in a desirable cul‑de‑sac, ideal for builders..
Outline planning granted for two detached homes (Ref: 25/00658/OUT)
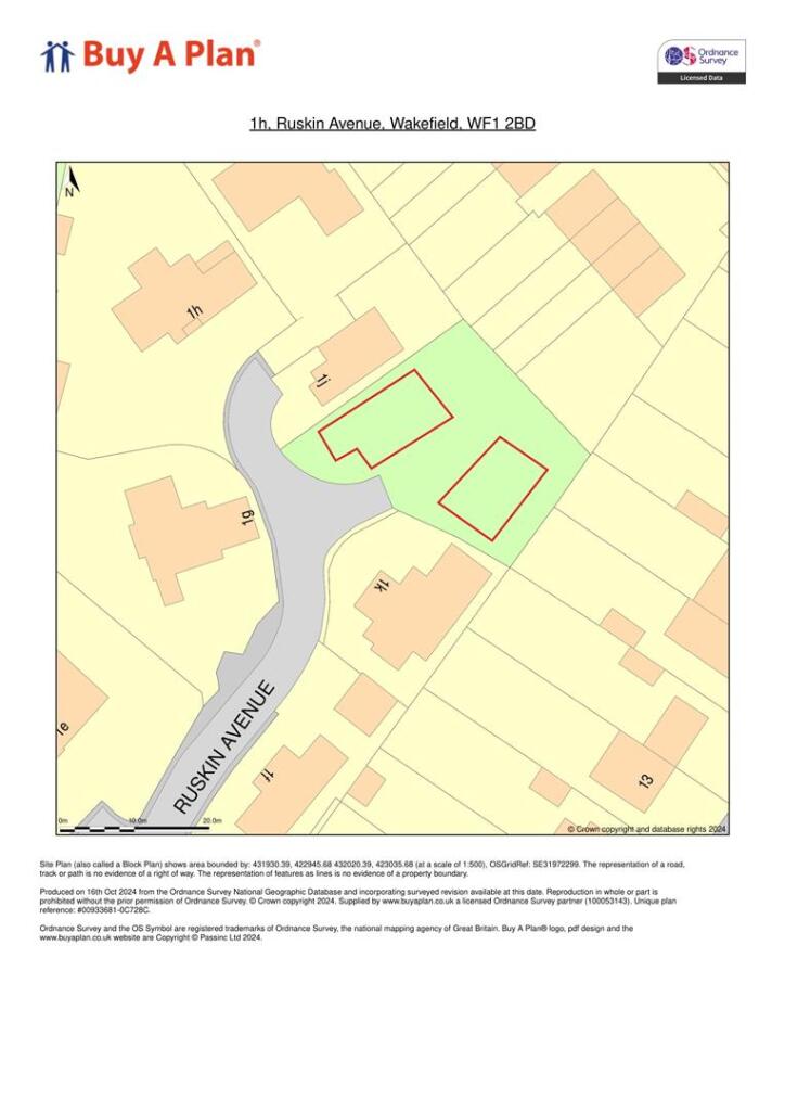
Two individual building plots in a quiet Ruskin Avenue cul‑de‑sac offer a clear development opportunity for builders and small developers. Outline planning permission (Ref: 25/00658/OUT) was granted on 28 March 2025 for two detached dwellings, so the immediate planning risk is reduced while reserved matters and detailed design remain to be submitted.
The site is flat, square and of a decent size, set among established detached and semi‑detached homes, making it straightforward to integrate new houses into the street scene. Its Freehold tenure, excellent mobile signal and fast broadband add practical appeal for future buyers or tenants. The area is very affluent with good local amenities and multiple well‑rated primary and secondary schools close by.
Access is convenient for commuters, with quick links to the M1/M62 corridors nearby. There is no recorded flood risk for the plots. The vendor is offering the plots as a whole, though separate sale of plots may be considered — this flexibility could suit different development scales.
Important considerations: the permission is outline, so detailed (reserved matters) approval will be required before construction. Buyers should confirm services, site surveys and any planning conditions on the decision notice available via Wakefield Council Planning Portal.
Land for sale in Hill Top, Newmillerdam, Wakefield, West Yorkshire, WF2 — £450,000 • 1 bed • 1 bath
Land for sale in Land On The South Side Of, Red Hall Lane, Wakefield, WF1 — £450,000 • 1 bed • 1 bath
Land for sale in Batley Road, Wrenthorpe, Wakefield, West Yorkshire, WF2 — £250,000 • 1 bed • 1 bath • 1800 ft²
Land for sale in Batley Road, Wrenthorpe, Wakefield, West Yorkshire, WF2 — £325,000 • 1 bed • 1 bath • 2300 ft²
Plot for sale in College Grove Road, Wakefield, WF1 — £40,000 • 1 bed • 1 bath
Storage facility for sale in Plots 6 & 7, City Fields, Wakefield Eastern Relief Road (A6194), Wakefield, WF1 5PJ, WF1 — POA • 1 bed • 1 bath














