Bright extended home with garage and flexible loft room near shops and station.
West-facing enclosed rear garden with raised outlook
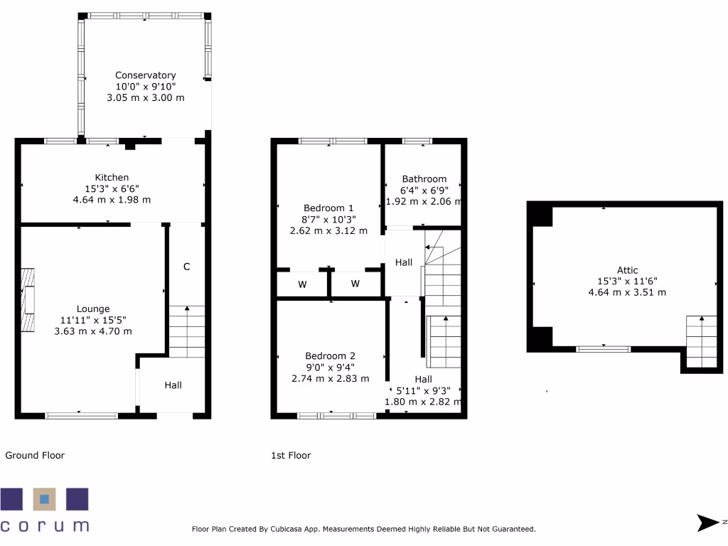
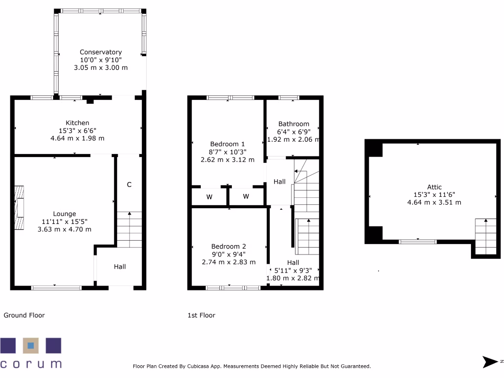
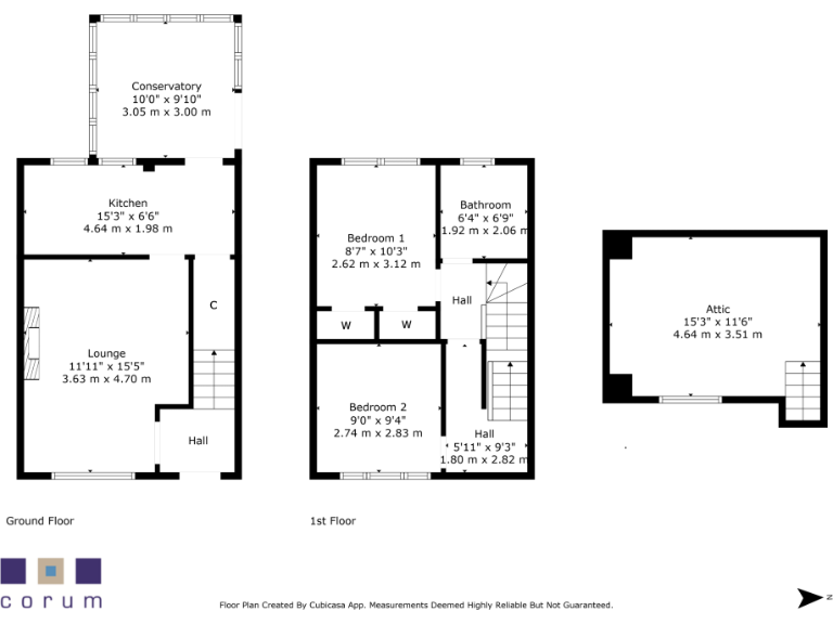
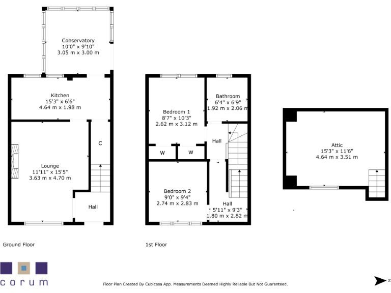
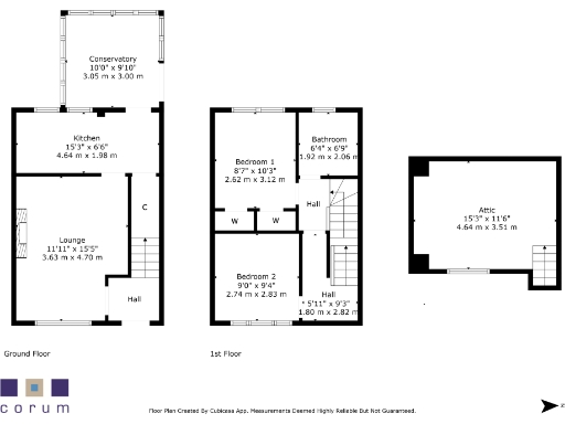
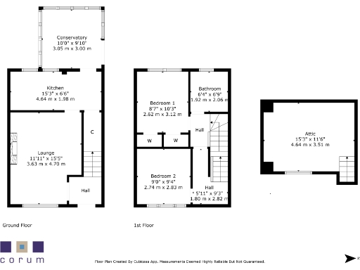
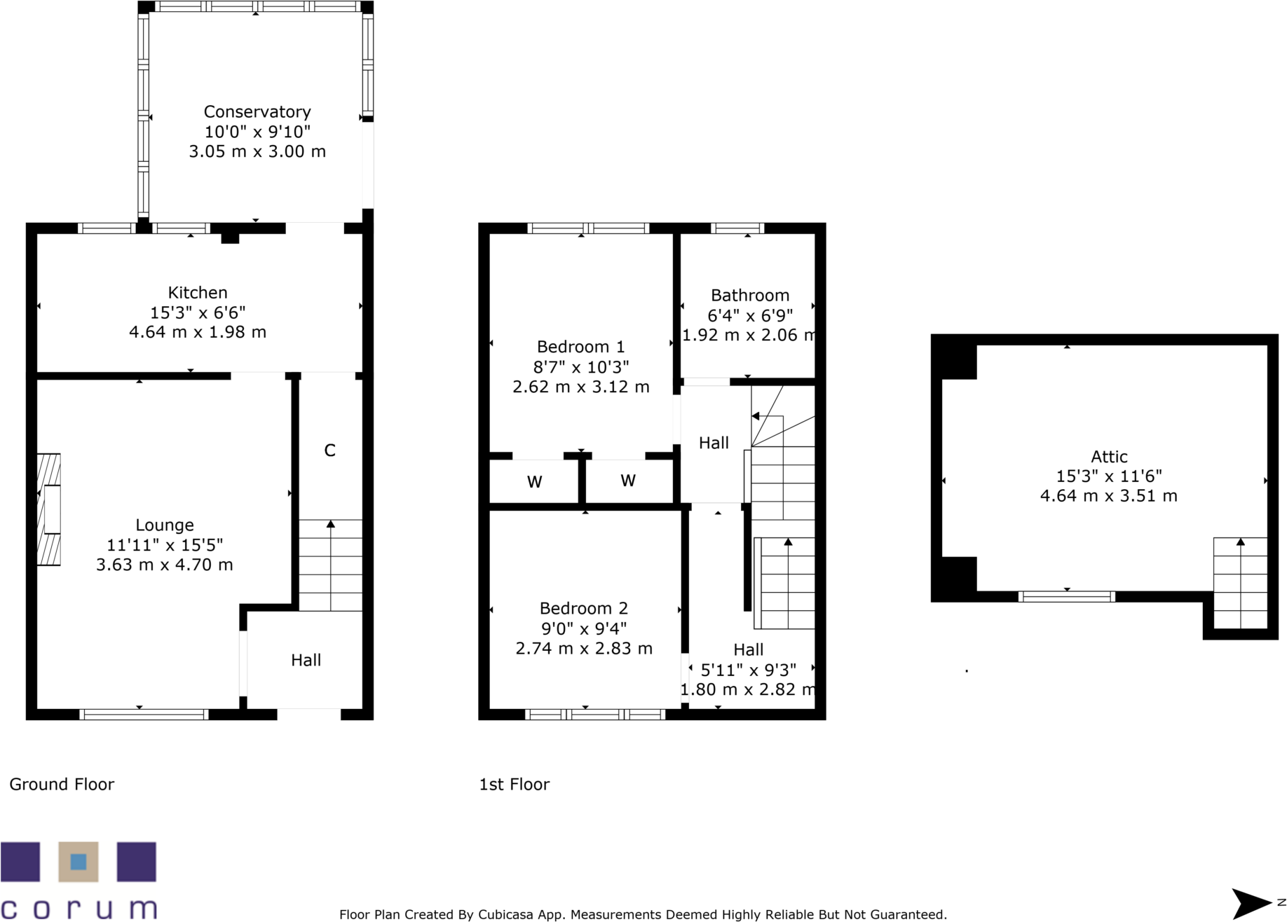
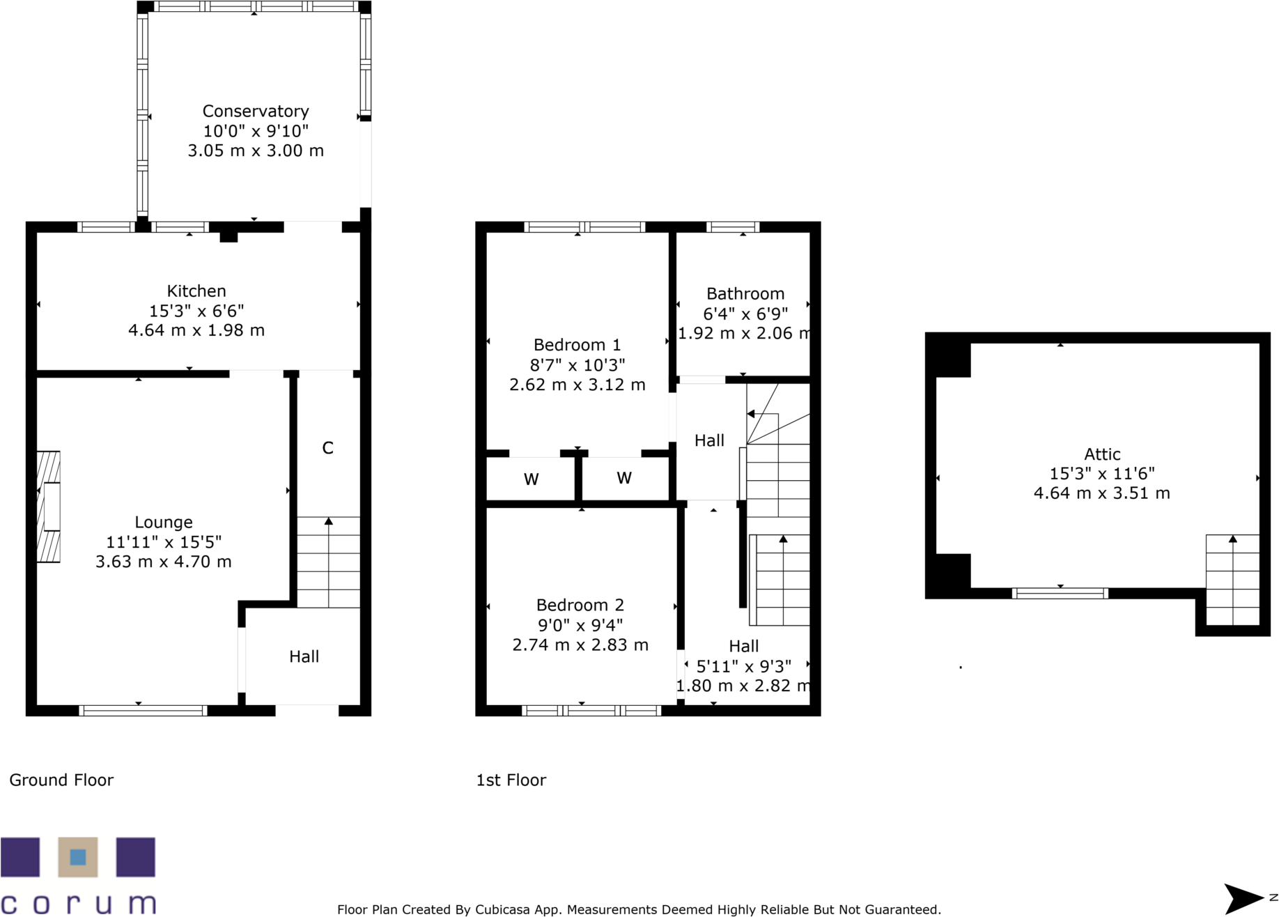
This smart extended semi offers a compact, well-arranged home in central Milngavie, ideal for a small family or first-time buyers wanting village convenience. The house feels bright throughout, with a refitted breakfasting kitchen, a rear conservatory that opens onto a west-facing garden, and a single garage with additional on-street parking nearby.
A notable asset is the fully floored and lined loft room accessed by a fixed staircase — a flexible space for a home office, hobbies or occasional guests. The two double bedrooms upstairs and a stylish refitted bathroom make the layout straightforward and practical. The property benefits from gas central heating, double glazing and an Energy Efficiency Rating of C.
Location is a strong selling point: Waitrose, other retailers and Milngavie’s pedestrianised town centre are almost on the doorstep, and the train station provides frequent links to Glasgow and Edinburgh. Local schools, parks and Mugdock Country Park are within easy reach for outdoor pursuits and family life.
Buyers should note some material constraints. The plot is modest with a narrow side access/drive leading to the rear, so outdoor space is limited compared with larger suburban gardens. There is one bathroom and overall internal space is average (approximately 829 sq ft). The local area data flags relative deprivation despite the nearby affluent amenities, which may influence long-term neighbourhood dynamics. Overall, this is a well-presented, versatile home with sensible fittings and strong transport and amenity links, best suited to those seeking a manageable family house or a buy-to-live investment in Milngavie.
2 bedroom semi-detached house for sale in 34 Hunter Road, Milngavie, G62 7QX, G62 — £210,000 • 2 bed • 1 bath • 839 ft²
3 bedroom semi-detached house for sale in 23a Braefoot Avenue, Milngavie, G62 6JS, G62 — £270,000 • 3 bed • 2 bath • 958 ft²
3 bedroom semi-detached house for sale in 47 Braeside Avenue, Milngavie, G62 6NN, G62 — £360,000 • 3 bed • 2 bath • 1302 ft²
3 bedroom semi-detached house for sale in 34 Buchanan Street, Milngavie, G62 8AN, G62 — £320,000 • 3 bed • 1 bath • 969 ft²
4 bedroom semi-detached house for sale in 12 Ferguson Avenue, Milngavie, G62 7TE, G62 — £295,000 • 4 bed • 2 bath • 1292 ft²
2 bedroom semi-detached bungalow for sale in 9 Dougalston Crescent, Milngavie, G62 6HW, G62 — £340,000 • 2 bed • 2 bath • 969 ft²






















































































































































































































































