Spacious corner plot with garage and large garden, ideal for families.
Immaculately presented three-bedroom semi-detached villa
Large private rear garden with direct play-park access
Attached single garage plus mono-block driveway parking
Gas central heating and double glazing; EPC Band D
Within Craigdhu Primary and Douglas Academy catchments
Single family bathroom only (over-bath shower)
Council tax rated above average for the area
Wider area shows higher deprivation indicators
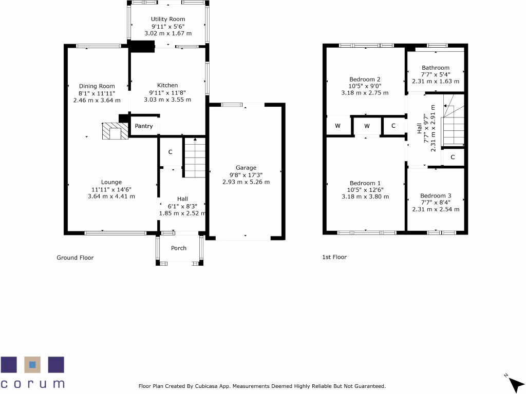
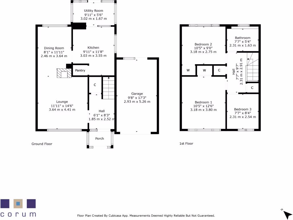
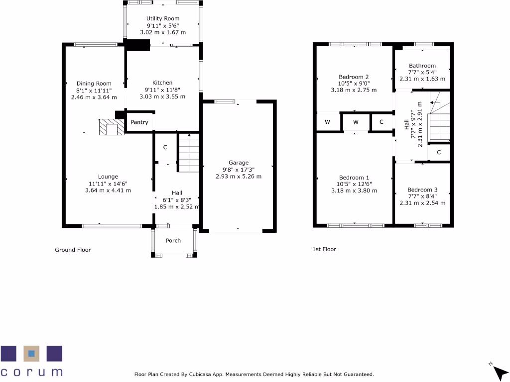
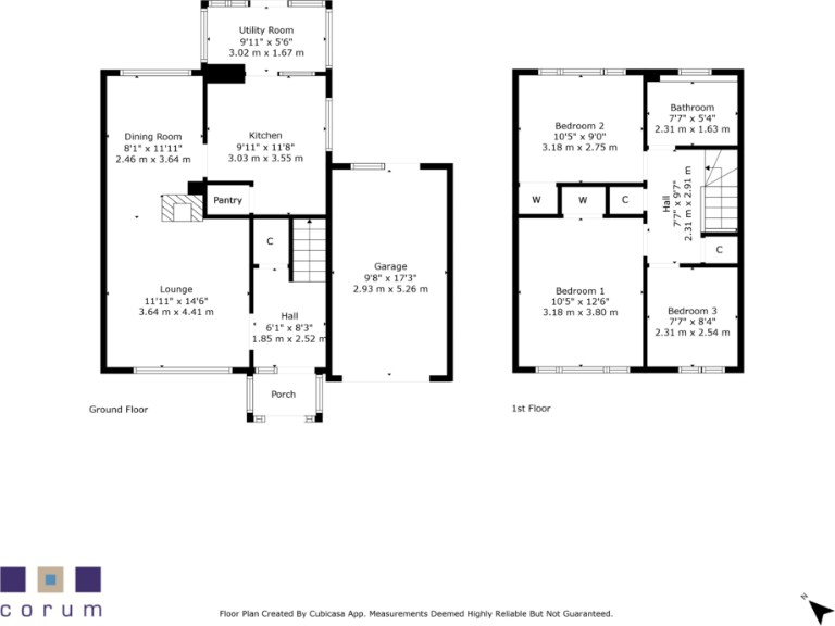
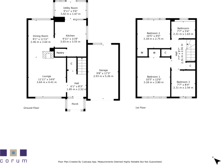
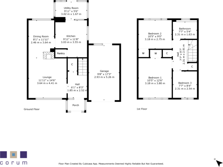
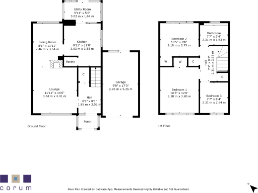
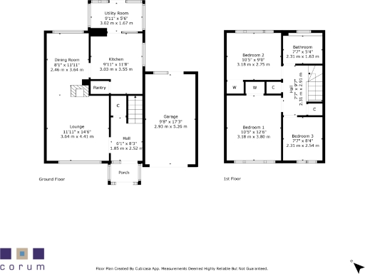
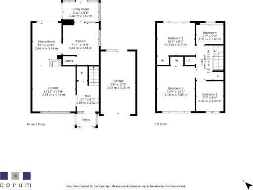
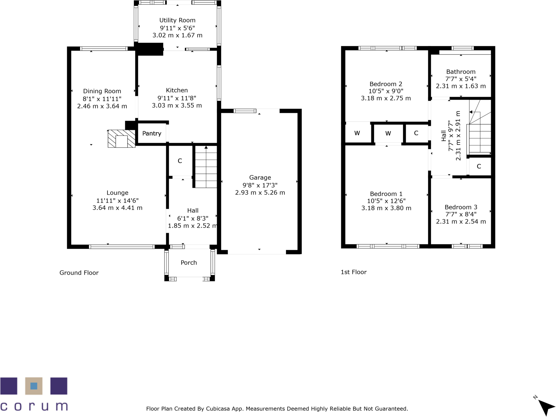
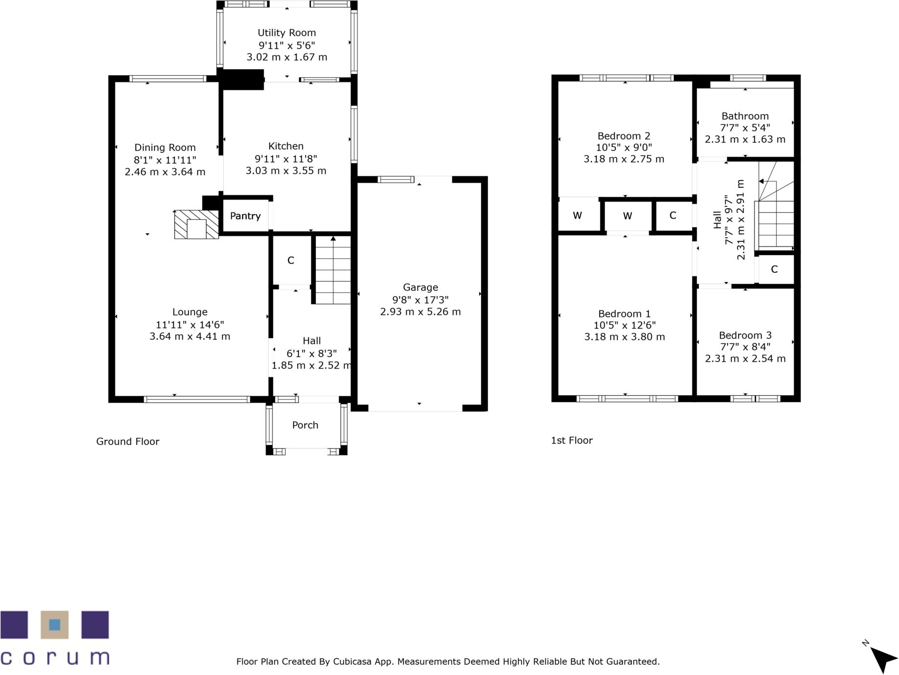
Set in a quiet Milngavie suburb, this well-presented three-bedroom semi-detached villa suits families seeking space and easy access to local amenities. The layout offers a welcoming lounge with wood-burning stove, a semi-open dining area, and a modern kitchen with utility provision leading to a generous rear garden and direct access to a residents' play park.
Upstairs provides three good-sized bedrooms, two with built-in storage, and a single well-appointed family bathroom with over-bath shower. The property benefits from gas central heating, double glazing and a useful loft hatch for additional storage; energy efficiency is band D.
Externally there is a mono-block driveway and attached single garage, a modest landscaped front garden and a large level rear lawn with raised beds and secure fencing. The location is family-friendly with Craigdhu Primary and Douglas Academy catchments, local shops, cafés and frequent train services to Glasgow and Edinburgh close by.
Buyers should note practical negatives: only one bathroom serves three bedrooms, council tax sits above average, and the wider area records higher deprivation indicators. While presented to a high standard, the EPC and council tax levels may affect running costs for some buyers.
3 bedroom semi-detached house for sale in 23a Braefoot Avenue, Milngavie, G62 6JS, G62 — £270,000 • 3 bed • 2 bath • 958 ft²
3 bedroom semi-detached house for sale in 47 Braeside Avenue, Milngavie, G62 6NN, G62 — £360,000 • 3 bed • 2 bath • 1302 ft²
2 bedroom semi-detached house for sale in 100 Main Street, Milngavie, G62 6JN, G62 — £235,000 • 2 bed • 1 bath • 829 ft²
5 bedroom detached house for sale in 68 Douglas Muir Drive, Milngavie, G62 7RJ, G62 — £540,000 • 5 bed • 3 bath • 1615 ft²
4 bedroom detached house for sale in 50 Douglas Muir Drive, Milngavie, G62 7RJ, G62 — £495,000 • 4 bed • 2 bath • 1356 ft²
2 bedroom semi-detached bungalow for sale in 112 Drumlin Drive, Milngavie, G62 6NG, G62 — £365,000 • 2 bed • 2 bath • 1184 ft²


































































































































































































































































































