Large garden plot and flexible layout ideal for growing families.
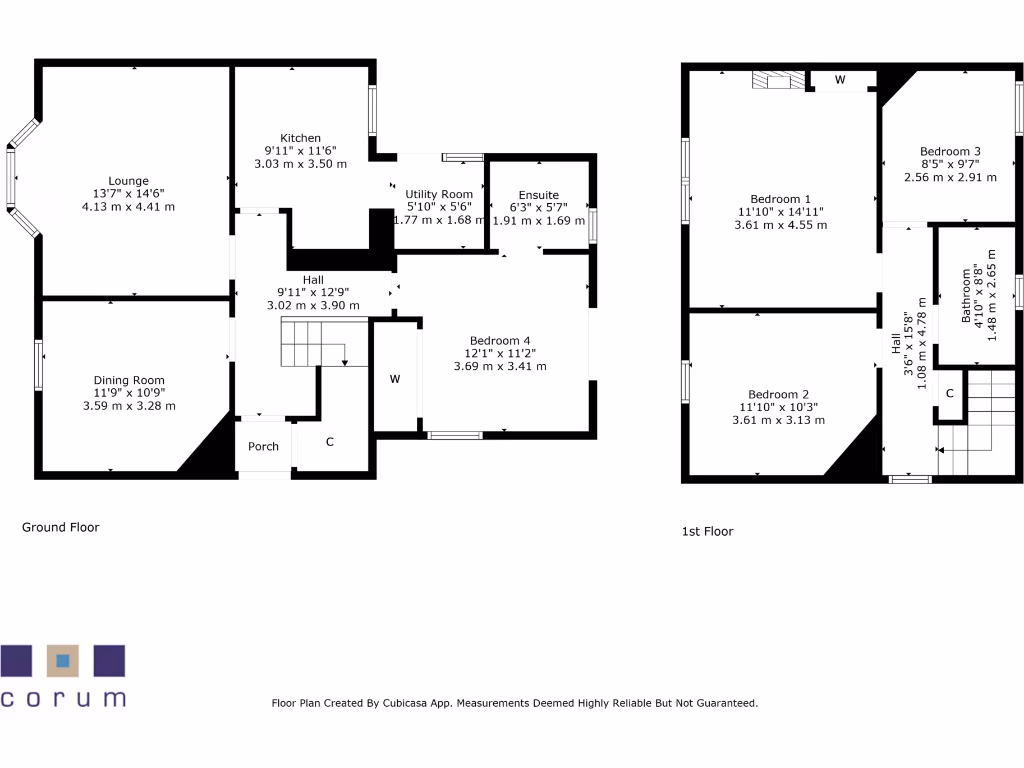
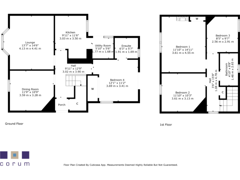
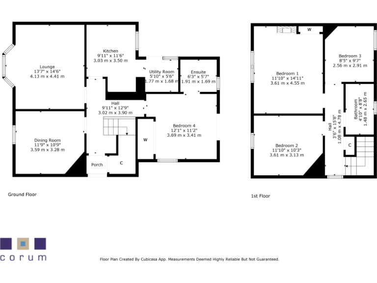
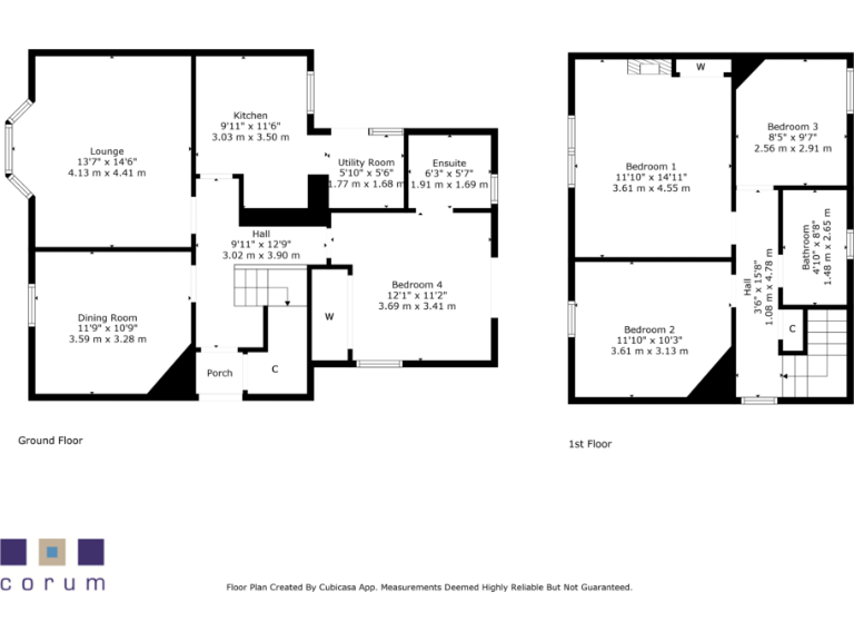
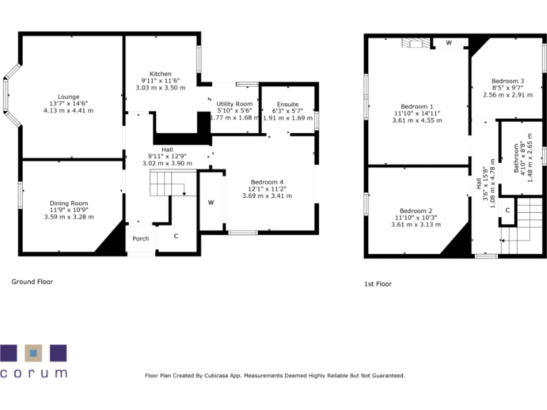
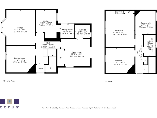
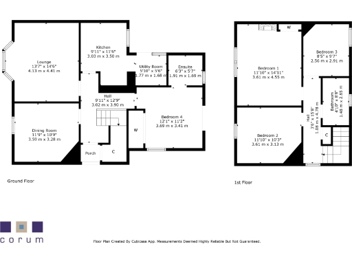
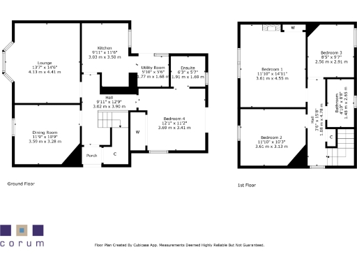
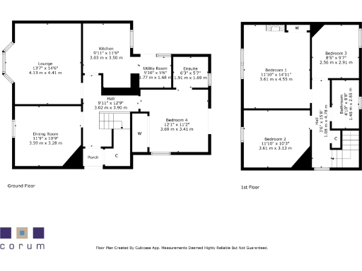
4 double bedrooms with ground-floor bedroom and en-suite shower room
Driveway parking for several cars; off-street convenience
Private, enclosed rear garden with shed and established borders
Approx. 1,292 sq ft over two storeys; freehold tenure
Gas central heating and double glazing already fitted
Fast broadband and excellent mobile signal throughout
EER band D; scope to modernise and personalise interior
Located in an area with high deprivation indicators; council tax above average
Set on a level, mature plot in a quiet Milngavie address, this spacious four-bedroom semi-detached villa suits families seeking roomy living close to local amenities. The house offers a formal lounge, separate dining/family room, and a ground-floor fourth bedroom with en-suite and patio access — useful for multi-generational living or flexible home-office use. Gas central heating and double glazing are already in place, and broadband and mobile signals are described as fast and excellent.
Externally there is driveway parking for several cars and a private, fully enclosed rear garden with established borders and a garden shed, ideal for family play and al fresco entertaining. The property extends to around 1,292 sq ft over two storeys and has an EER band D. Milngavie village, shops, schools and the railway station are within easy walking distance, and outdoor recreation (Mugdock Country Park, local reservoirs and the West Highland Way) is close by.
The house has been well maintained but offers scope to personalise and update to current stylistic preferences. Important practical points to note: the home sits within a wider area classed as very deprived/outer-city hardship and local classifications indicate hard-pressed flat dwellers nearby; council tax is above average. There is no flooding risk recorded.
Overall this freehold property presents a versatile family home with substantial outdoor space, convenient parking and strong transport and local amenity links, balanced against higher local deprivation indicators and an above-average council tax band.
3 bedroom semi-detached house for sale in 34 Buchanan Street, Milngavie, G62 8AN, G62 — £320,000 • 3 bed • 1 bath • 969 ft²
2 bedroom semi-detached house for sale in 100 Main Street, Milngavie, G62 6JN, G62 — £235,000 • 2 bed • 1 bath • 829 ft²
3 bedroom semi-detached house for sale in 23a Braefoot Avenue, Milngavie, G62 6JS, G62 — £270,000 • 3 bed • 2 bath • 958 ft²
3 bedroom semi-detached house for sale in 47 Braeside Avenue, Milngavie, G62 6NN, G62 — £360,000 • 3 bed • 2 bath • 1302 ft²
2 bedroom semi-detached house for sale in 34 Hunter Road, Milngavie, G62 7QX, G62 — £210,000 • 2 bed • 1 bath • 839 ft²
4 bedroom semi-detached house for sale in Carnock Gardens, Milngavie, Glasgow, G62 7RU, G62 — £360,000 • 4 bed • 2 bath • 1147 ft²






























































































































































































































































































































































































