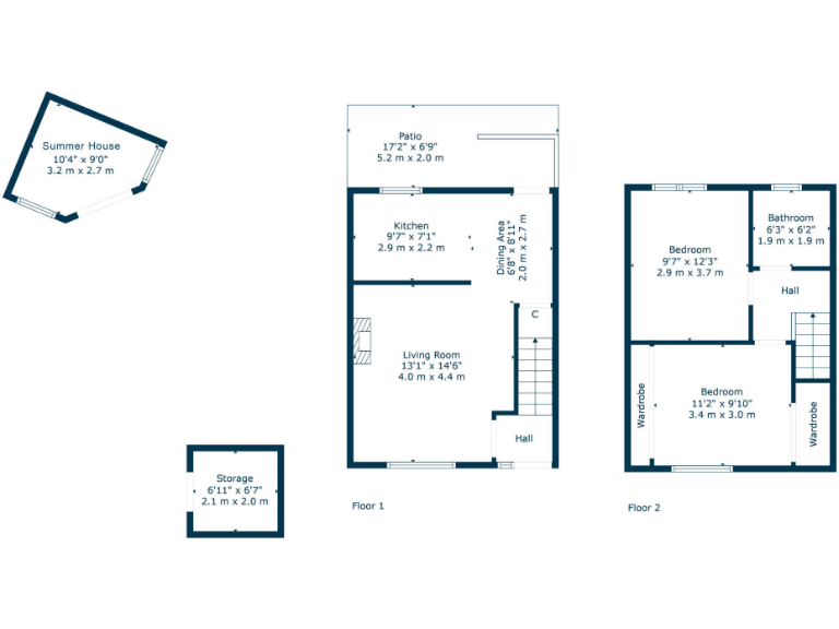
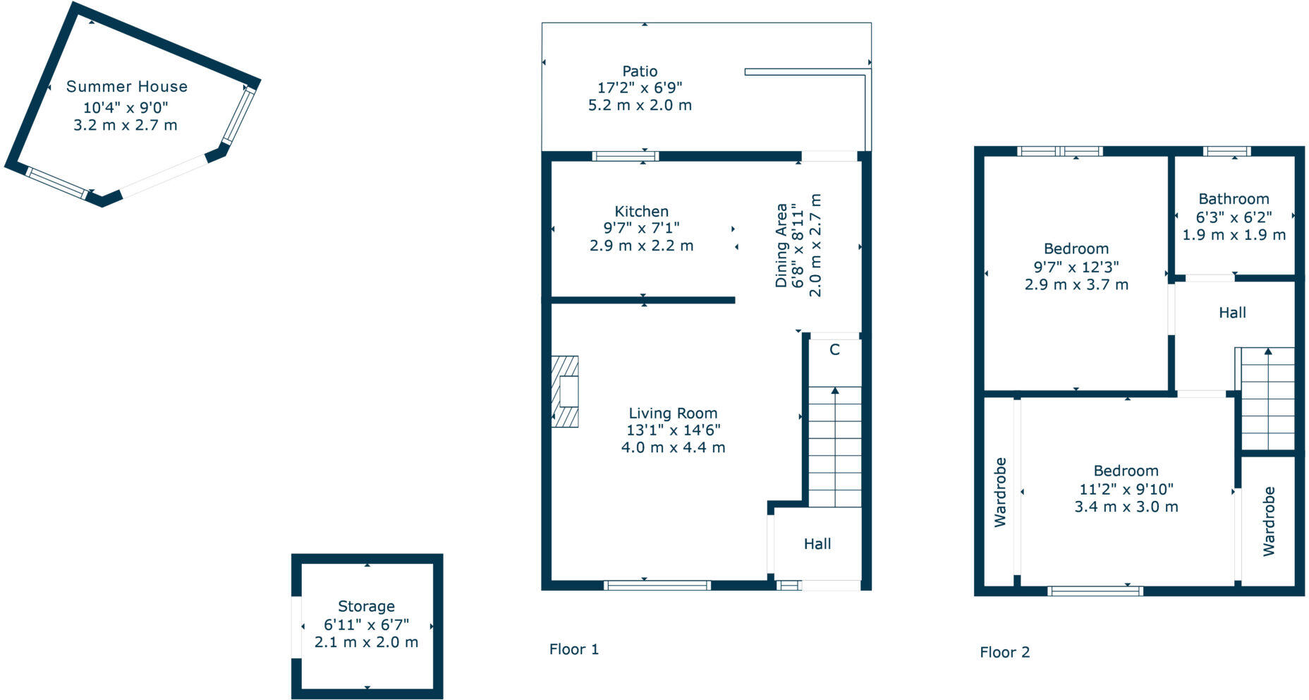
Smartly presented home with private garden and easy village access.
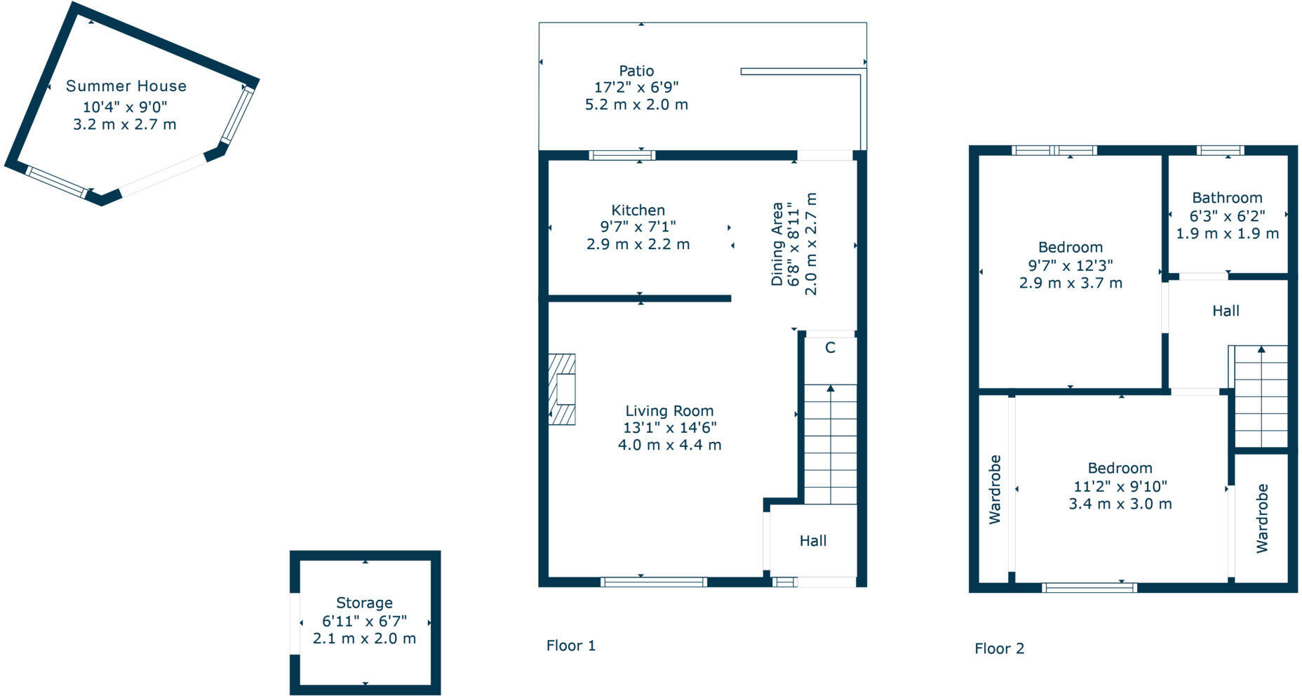
Two double bedrooms with fitted storage in principal bedroom
Bright open-plan dining room opening to private rear garden
Large double driveway providing off-street parking for at least two cars
Recently installed ceramic electric heating with remote control
Double glazing throughout for improved insulation and noise reduction
Single bathroom only — one three-piece bathroom with walk-in shower
Overall size circa 721 sq ft — average-sized accommodation
Local area classified as high deprivation; surrounding community mixed renting
A well-presented two-bedroom semi-detached villa in Milngavie’s Mains Estate, this freehold home offers practical living across two storeys and an attractive, private rear garden. Interiors are bright and neatly maintained with an open-plan dining room and modern kitchen; principal bedroom includes fitted storage. Recent ceramic heating with remote control and double glazing provide efficient, easy-to-manage comfort.
Outside, the property benefits from a large double driveway and fully enclosed, low-maintenance rear gardens with a small summer house — a useful private retreat and hobby space. The location is convenient for Milngavie village amenities, frequent public transport links and access to nearby parkland and walking routes, making daily travel and leisure straightforward.
Notable limitations are factual: the home is average in overall size (about 721 sq ft) with a single bathroom and two bedrooms, likely suited to first-time buyers or small households rather than larger families. The wider area classification indicates high local deprivation and a prevalence of renting, which may influence long-term resale considerations. Council tax is moderate. Buyers should view with these factors in mind.
3 bedroom detached bungalow for sale in 18 Cauldstream Place, Milngavie, G62 7NL, G62 — £345,000 • 3 bed • 1 bath • 947 ft²
2 bedroom semi-detached house for sale in 100 Main Street, Milngavie, G62 6JN, G62 — £235,000 • 2 bed • 1 bath • 829 ft²
3 bedroom end of terrace house for sale in 7 Drumbeg Terrace, Milngavie, G62 7RH, G62 — £315,000 • 3 bed • 3 bath • 1023 ft²
3 bedroom semi-detached house for sale in 47 Braeside Avenue, Milngavie, G62 6NN, G62 — £360,000 • 3 bed • 2 bath • 1302 ft²
3 bedroom link detached house for sale in 2 Craighirst Road, Milngavie, G62 7RG, G62 — £320,000 • 3 bed • 2 bath • 1023 ft²
4 bedroom semi-detached house for sale in 12 Ferguson Avenue, Milngavie, G62 7TE, G62 — £295,000 • 4 bed • 2 bath • 1292 ft²














































































































































































































































