AB53 5XS - Land for sale in Upper Auchnagorth, New Byth, Turriff, Aber…

View on Property Piper

Land for sale in Upper Auchnagorth, New Byth, Turriff, Aberdeenshire, AB53

Summary - UPPER AUCHNAGORTH, TURRIFF, NEW BYTH AB53 5XS

4 bed 2 bath Land

**Standout Features:**
- Traditional 4-bedroom farmhouse recently renovated
- Extensive 56.82 hectares (140.4 acres) of productive farmland
- Large multifunctional steel portal frame shed (30m x 30m)
- Excellent mobile signal; improvements needed on broadband speed
- Located in a rural, tranquil setting

**Concise Summary:**
Discover Upper Auchnagorth Farm, a traditional 4-bedroom farmhouse beautifully renovated to combine comfort and rural charm. Nestled within 56.82 hectares (140.4 acres) of fertile farmland, this diverse property offers ample opportunities for agricultural pursuits, including livestock production and arable cropping. The home boasts spacious interiors including a newly refurbished kitchen-dining area and inviting sitting room, alongside a generous layout on both floors.

Enhancing its appeal, the property features a substantial steel portal frame shed ideal for storage or livestock housing, along with a traditional stone steading that adds character. While the surrounding landscape provides a serene atmosphere, it also offers expansive views of rolling hills and potential for mineral extraction from a nearby disused quarry. As a family retreat or a robust investment opportunity, this property encourages a peaceful rural lifestyle combined with agricultural potential. Don't miss your chance—this delightful estate will not stay on the market long, with a closing date set for July 4, 2025, at noon.

Property Details

Brochure Descriptions

Image Descriptions

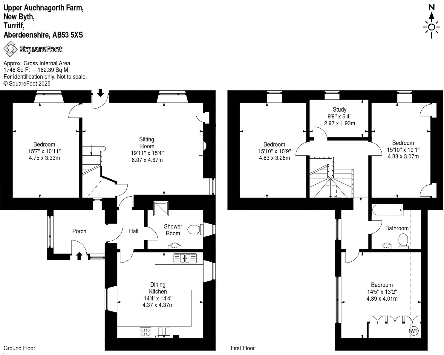
Floorplan Description

Rooms

Textual Property Features

Detected Visual Features

Nearest Bars And Restaurants

,,,,}

Nearest General Shops

,,}

Nearest Grocery shops

,,}

Nearest Supermarkets

,,}

Nearest Religious buildings

,,}

Nearest Medical buildings

,,,}

Nearest Leisure Facilities

,,,,}

Nearest Tourist attractions

,,}

Nearest Train stations

,,,}

Nearest Bus stations and stops

,,,,}

Nearest Hotels

,,}

Tags

Local Market Stats

Similar Properties

Meta

High Res Images

Compatible Images

Low res Images

Thumbnails

Raw Images

High Res Floorplan Images

Compatible Floorplan Images

Low res Floorplan Images

FloorplanImages Thumbnail

Raw Floorplan Images