Productive farmholding with extensive buildings and strong arable potential.
Productive 152.28 acres (66.63 ha) in 13 enclosures
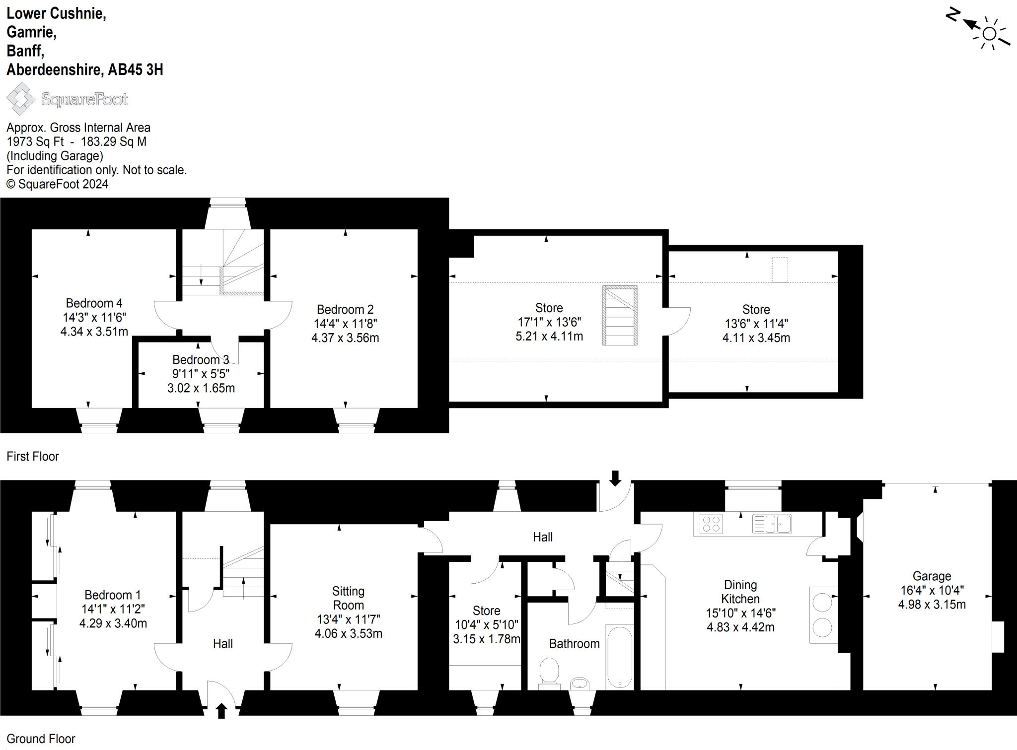
Stone 3-bedroom farmhouse, approx. 130.7 m2 (EPC G)
Extensive traditional and portal-framed farm buildings, large steading
Metalled yard suitable for machinery and silage storage
Land graded mainly 3(1), capable of arable crops including potatoes
Good road access; coastal village Gamrie two miles away
Sold as whole only at auction; offered freehold
Slow broadband; excellent mobile signal
A substantial working farm offered as a whole, Lower Cushnie comprises a stone-built 3-bedroom farmhouse set beside a comprehensive range of traditional and portal-framed farm buildings. The farmhouse (approx. 130.7 m2 / 1,973 sqft) is solid in construction under a slate roof but has an EPC rating of G and will benefit from energy and internal upgrading. The accommodation is arranged over two storeys with a ground-floor sitting room, dining kitchen, bathroom, store and bedroom, plus two double bedrooms, a single bedroom and storage rooms above.
The land extends to about 66.63 hectares (152.28 acres) in 13 enclosures, mostly Grade 3(1) with some Grade 4(1) at The Dens. The soils are described as productive and well managed in arable and grass rotation, suitable for a wide range of crops including potatoes. Improvements include fencing, watering, a metalled yard and good access from the public road network.
Outbuildings are extensive: a large traditional steading (526.6 m2), multiple cattle courts, storage and implement sheds, a pole barn and a garage — providing immediate capacity for livestock, machinery storage or agricultural diversification. The yard is suitable for machinery and silage storage. Broadband speeds are slow, though mobile signal is excellent. The property is offered freehold and will be sold at auction as a single lot.
Lower Cushnie is rural and private, about 2 miles from the coastal village of Gamrie (Gardenstown), 8 miles east of Banff and 12 miles from Turriff with wider services. This holding will suit an established farmer, an investor seeking an income-producing estate, or a buyer looking to reposition buildings or improve the farmhouse subject to consents. Buyers should allow for energy, EPC and likely internal refurbishment costs to the farmhouse.
3 bedroom smallholding for sale in Upper Killyquharn, Upper Killyquharn, New Aberdour, Fraserburgh, AB43 — £425,000 • 3 bed • 1 bath • 3488 ft²
Land for sale in Greenspeck, New Pitsligo, Fraserburgh, Aberdeenshire, AB43 — £650,000 • 5 bed • 2 bath • 1829 ft²
6 bedroom smallholding for sale in Bankhead Farm, Boyndie, Banff, AB45 2LQ, AB45 — £499,000 • 6 bed • 1 bath • 3300 ft²
3 bedroom detached house for sale in Waterside, Ellon, Aberdeenshire, AB41 — £480,000 • 3 bed • 1 bath • 2255 ft²
Farm for sale in South Essie Farm, St Fergus, AB42 3HQ, AB42 — £700,000 • 4 bed • 1 bath • 1433 ft²
Farm land for sale in Newseat of Ardo, Methlick, AB41 — £250,000 • 1 bed • 1 bath














































