Large three-bed close to Stratford transport and Westfield, ideal for families.
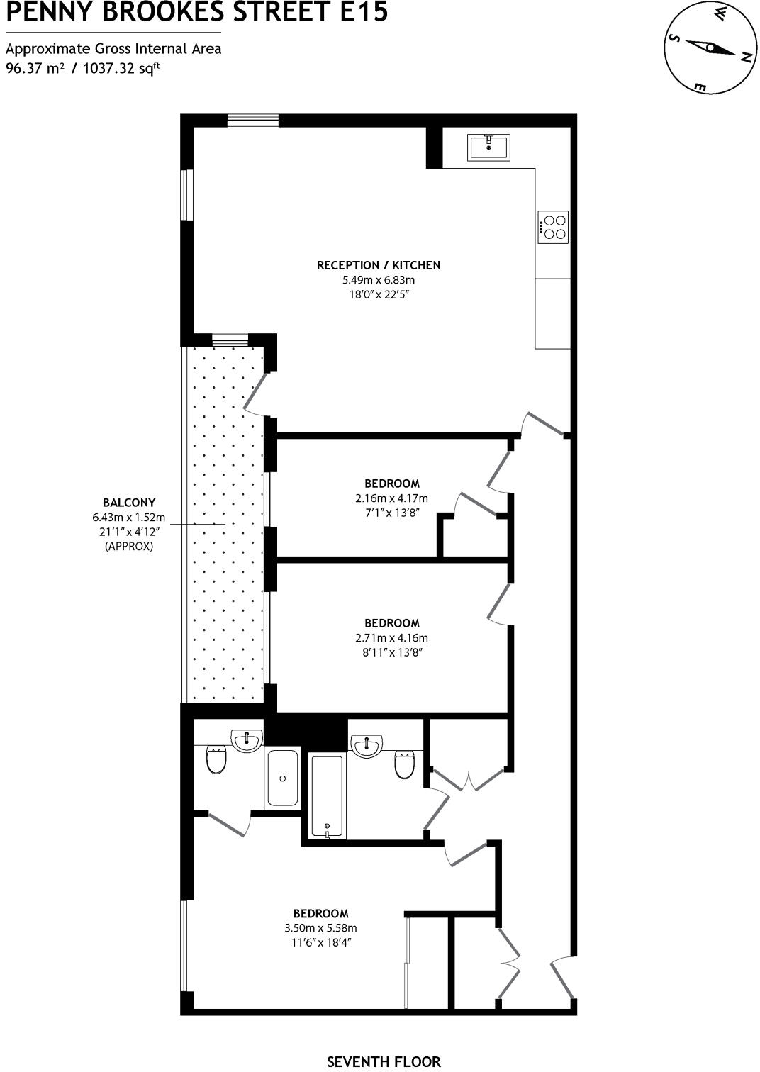
Seventh-floor flat with lift access and private terrace
Spacious open-plan living; about 1,037 sq ft, three beds, two baths
Long lease — 994 years remaining
Excellent transport links to Stratford Station, City and Canary Wharf
Close to Westfield Stratford City and several outstanding schools
Service charge ~£2,590 pa; ground rent £375 pa; council tax above average
Area recorded as very high crime and classed as deprived
Set on the seventh floor of the Wenborn Building, this three-bedroom, two-bath flat spans about 1,037 sq ft and offers a private terrace, lift access and open-plan living. The long lease (994 years) and sizeable living space suit families wanting room to grow near Stratford’s major transport hub and Westfield shopping centre.
The property benefits from quick links to Stratford Station, Canary Wharf and the City, plus several well-rated schools within walking distance, making school runs and commutes straightforward. The modern kitchen, bright living area and balcony provide comfortable day-to-day living for young families or sharers.
Buyers should note material running costs and local context: an average annual service charge of £2,590, ground rent of £375, and council tax above average. While the building uses a community heating scheme, the immediate neighbourhood records very high crime and is classed as deprived—factors worth considering for resale or rental plans.
Overall this is a spacious, long-lease flat in a highly connected part of Stratford, offering convenience and practical family accommodation but with notable service costs and local-area safety and deprivation considerations to weigh up.
3 bedroom apartment for sale in Wenborn Building, Penny Brookes Street, London, E15 — £685,000 • 3 bed • 2 bath • 971 ft²
3 bedroom apartment for sale in Hawthorn House, Forrester Way, London, E15 — £900,000 • 3 bed • 2 bath • 1238 ft²
3 bedroom apartment for sale in Merchants House, London, E15 — £675,000 • 3 bed • 2 bath • 1054 ft²
2 bedroom flat for sale in High Street, Stratford, London, E15 — £450,000 • 2 bed • 1 bath • 761 ft²
3 bedroom apartment for sale in New Garden Quarter, Forrester Way, Stratford, E15 — £675,000 • 3 bed • 2 bath • 1100 ft²
3 bedroom flat for sale in Leyton Road, London, E15 — £670,000 • 3 bed • 2 bath • 957 ft²






























































