Bright upper-floor home with terrace, secure parking and easy park and transport access.
3 double bedrooms with ensuite to principal bedroom
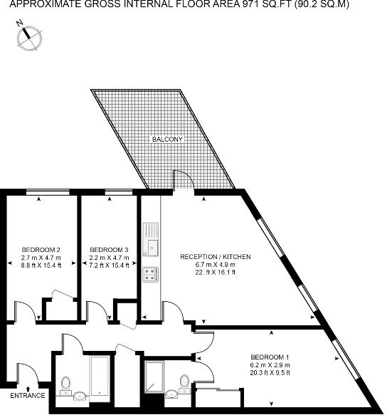
Open-plan living with floor-to-ceiling windows and private terrace
Private underground parking space and lift access
Located at Olympic Park edge; short walk to Stratford Station
EPC B, fast broadband and excellent mobile signal
Leasehold: 991 years remaining; service charge £2,178pa
Ground rent £375pa; council tax band D
Local crime rated very high; area shows higher deprivation
This bright fourth-floor apartment offers almost 971 sq ft of flexible living space arranged as three double bedrooms and two bathrooms, including an ensuite to the principal room. The open-plan living area has floor-to-ceiling windows and a private terrace that capture natural light and city views. A modern fitted kitchen and hardwood floors continue the high-spec finish throughout.
Residents benefit from a private underground parking space, lift access, and landscaped communal gardens within a secure development on the edge of Queen Elizabeth Olympic Park. Stratford Station and Westfield Stratford City are within easy walking distance, providing fast transport links to the City, Canary Wharf and the West End. EPC rating B and fast broadband/mobile signal support home working.
Practical points to consider: the property is leasehold (991 years remaining) with an annual service charge of £2,178 and ground rent £375. Crime levels in the immediate area are recorded as very high and the wider neighbourhood records higher deprivation; prospective buyers should factor this into security and insurance considerations. Council tax band D applies.
This apartment suits buyers seeking roomy, modern accommodation close to transport and parkland — families needing nearby schools or professionals wanting easy commuter links. It also offers sensible long-lease stability for investors, though the local crime data and service charges are material points to weigh before viewing.
3 bedroom apartment for sale in Merchants House, London, E15 — £675,000 • 3 bed • 2 bath • 1054 ft²
3 bedroom apartment for sale in Hawthorn House, Forrester Way, London, E15 — £900,000 • 3 bed • 2 bath • 1238 ft²
3 bedroom flat for sale in Leyton Road, London, E15 — £670,000 • 3 bed • 2 bath • 957 ft²
3 bedroom flat for sale in Wenborn Building, 23 Penny Brookes Street, Stratford, London, E15 — £750,000 • 3 bed • 2 bath • 1037 ft²
2 bedroom flat for sale in 44 Prospect Row, London, E15 — £615,000 • 2 bed • 2 bath • 851 ft²
2 bedroom apartment for sale in Azura Court, Warton Road, Stratford, E15 — £475,000 • 2 bed • 2 bath • 889 ft²


































