N14 4HX - Residential development for sale in Oakwood Country Mews, B…

View on Property Piper

Residential development for sale in Oakwood Country Mews, Bramley Road, N14 4HX, N14

Summary - TUBLINES DEPOT, BRAMLEY ROAD N14 4HX

1 bed 1 bath Residential Development

**Standout Features:**
- Approximately 0.077 acres of land with 21 garages, offering substantial redevelopment potential.
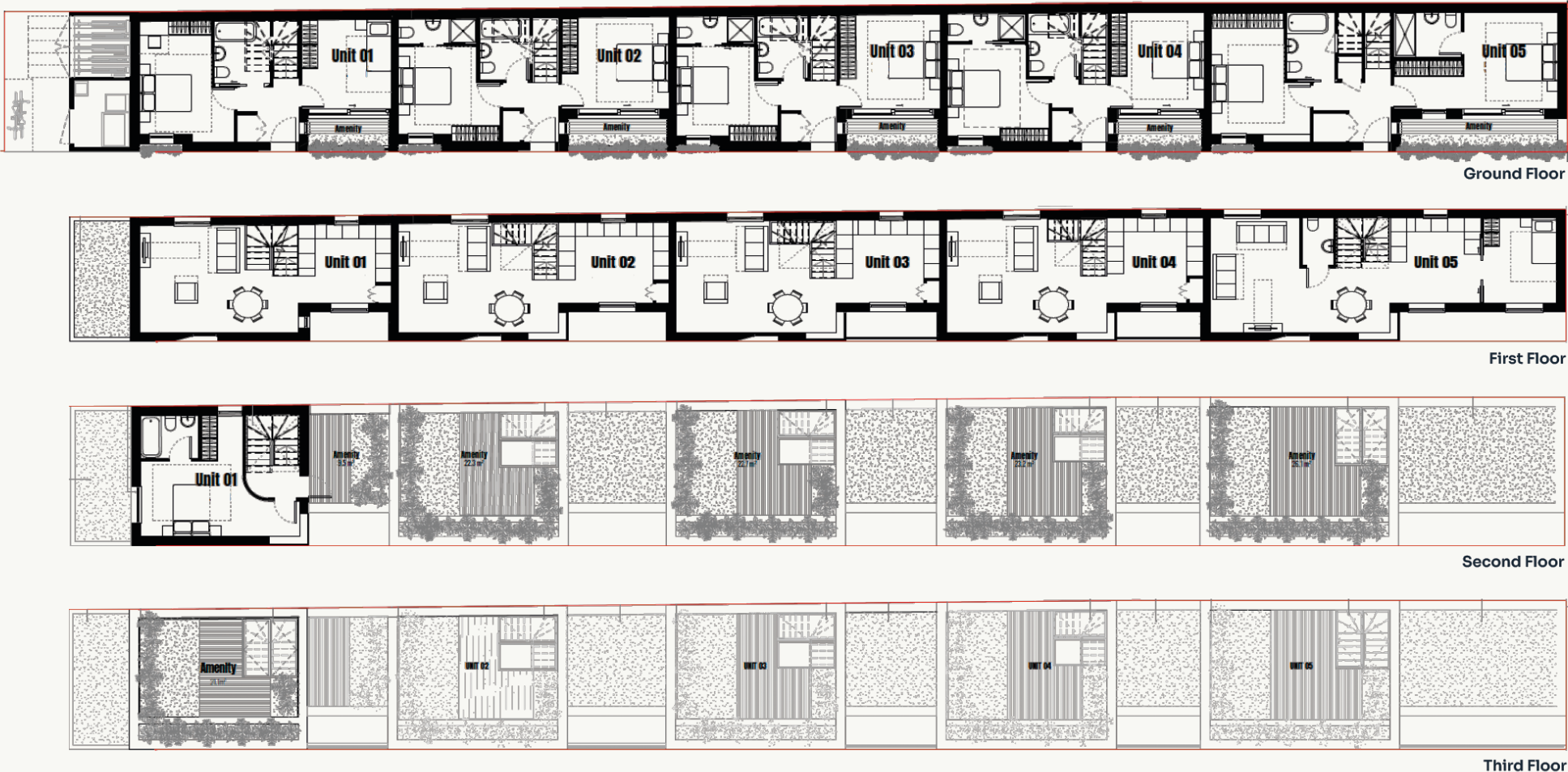
- Planning permission granted for 5 dwellings (3 x 2-bedroom and 2 x 3-bedroom) totaling around 4,785 sqft (444.5 sqm).
- Prime location, just a 4-minute walk from Oakwood Underground Station.
- Surrounded by a variety of local amenities, including shops along Bramley Road.
- Excellent access rights over nearby roads for convenient entry and exit.

**Summary:**
Opportunities abound with this substantial residential development site located at the junction of Westpole Avenue and Bramley Road, just a short stroll from Oakwood Underground Station. Boasting planning permission for five modern homes, including three 2-bedroom and two 3-bedroom units, the total proposed area spans an impressive 4,785 sqft. This property offers the unique chance for investors and developers to create contemporary living spaces in a predominantly residential area.

While the site currently features 21 garages, the existing condition presents possibilities for renovation or complete redevelopment. The neighborhood is well-equipped with local amenities, ensuring a convenient lifestyle for future residents. Although the estimated CIL liability is around £38,684.24, with no additional S106 fees, interested parties should conduct their own due diligence regarding access and local planning regulations.

Don't miss out on this exclusive chance to seize a prime property in an urban area poised for growth—ideal for savvy investors looking for a valuable addition to their portfolio or developers aiming to create desirable family homes!

Property Details

Brochure Descriptions

Image Descriptions

Floorplan Description

Textual Property Features

Detected Visual Features

Nearby Schools

Nearest Bars And Restaurants

,,,,}

Nearest General Shops

,,}

Nearest Grocery shops

,,}

Nearest Supermarkets

,,}

Nearest Religious buildings

,,}

Nearest Medical buildings

,,,}

Nearest Airports

,}

Nearest Leisure Facilities

,,,,}

Nearest Tourist attractions

,,}

Nearest Train stations

,,,,}

Nearest Bus stations and stops

,,,,}

Nearest Hotels

,,}

Tags

Local Market Stats

AirBnB Data

Similar Properties

Meta

High Res Images

Compatible Images

Low res Images

Thumbnails

Raw Images

High Res Floorplan Images

Compatible Floorplan Images

Low res Floorplan Images

FloorplanImages Thumbnail

Raw Floorplan Images