Light-filled three-bedroom apartment with strong rental prospects near local amenities.
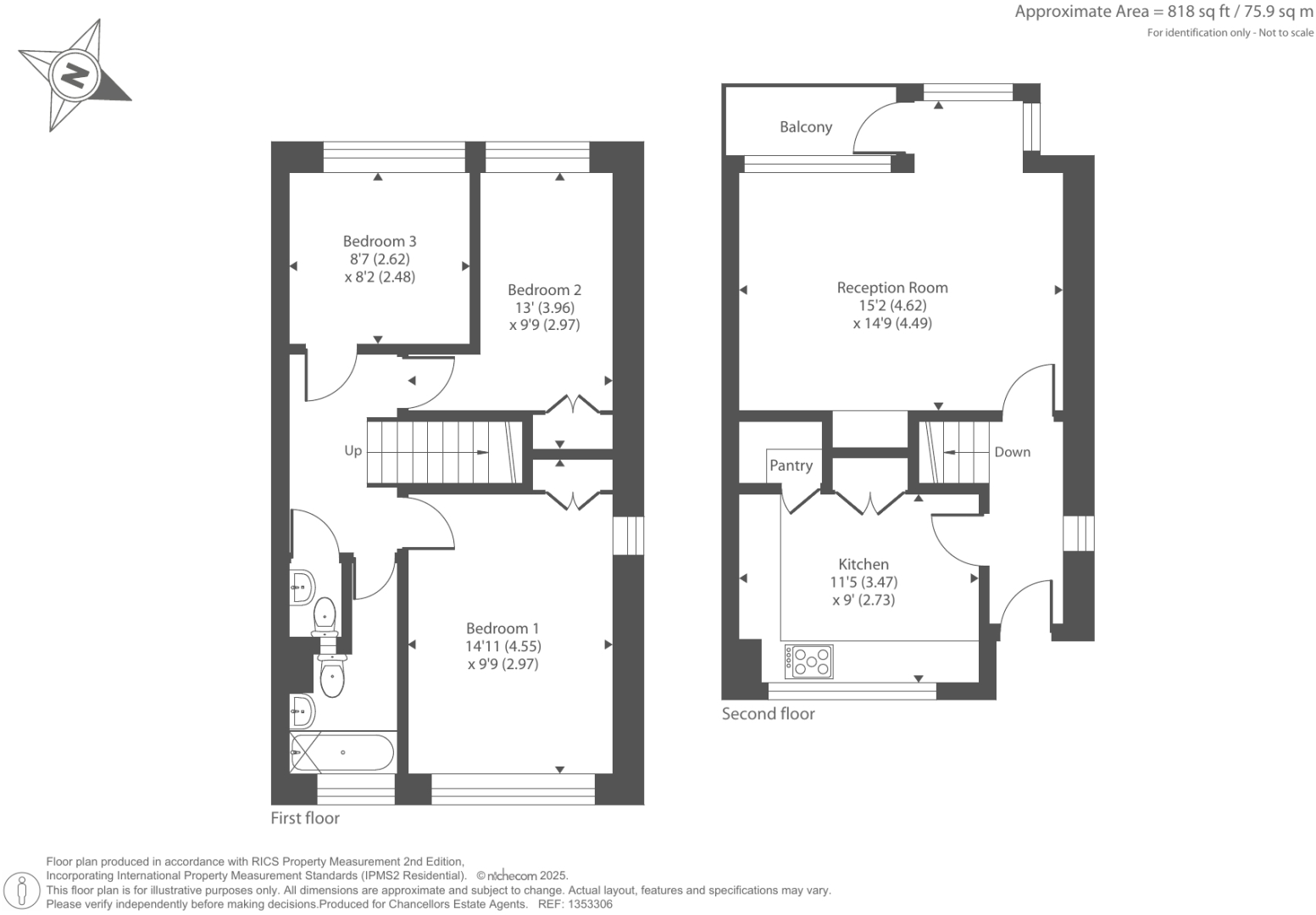
Three-bedroom duplex with two bathrooms and multiple storage locations
Abundant natural light from large windows and patio door
Average-sized 818 sq ft unit in 1960s purpose-built block
Leasehold with approximately 88 years remaining — potential extension cost
Solid brick walls likely lack cavity insulation — possible upgrade needed
Mains gas boiler and radiators; double glazing present (installation date unknown)
Excellent mobile signal and fast broadband — attractive to city professionals
Located close to Portobello Road amenities and transport links
Set over two levels, this three-bedroom duplex offers straightforward investment potential in a sought-after Portobello Road location. The apartment receives abundant natural light through large windows and benefits from multiple built-in storage areas and a fully fitted kitchen — practical features that suit rental or short-term re-let markets.
The building is a 1960s purpose-built block with solid brick construction and double glazing (install date unknown). Heating is mains gas via a boiler and radiators. The flat is an average-sized 818 sq ft unit with two bathrooms and good broadband and mobile connectivity — useful for attracting city professionals and short-term tenants.
Important facts for buyers: the property is leasehold with approximately 88 years remaining. That lease length may affect mortgage availability and could necessitate a future lease-extension cost. The local area is classified as very deprived, though it sits in a lively inner-city, cosmopolitan neighbourhood near Portobello Road amenities, transport links and a mix of schools.
This is a pragmatic purchase for an investor or buyer seeking a renovation/refurbishment project rather than a turnkey family home. Basic upgrades (insulation, potential modernising of heating or windows where required) could improve rental value and long-term capital growth. The property has no recorded flood risk and average crime levels; council tax is inexpensive, which supports affordability for tenants.
3 bedroom flat for sale in Portobello Road, Portobello, London, W10 — £1,750,000 • 3 bed • 3 bath • 1124 ft²
3 bedroom detached house for sale in St. Anns Road, London, W11 — £500,000 • 3 bed • 1 bath • 825 ft²
3 bedroom terraced house for sale in St Ervans Road, Westbourne Park, London, W10 — £700,000 • 3 bed • 1 bath • 829 ft²
2 bedroom apartment for sale in Portobello Road, London, W11 — £1,000,000 • 2 bed • 2 bath • 923 ft²
1 bedroom apartment for sale in Ladbroke Grove, London, W10 — £325,000 • 1 bed • 1 bath • 404 ft²
3 bedroom apartment for sale in Westbourne Grove, London, W11 — £800,000 • 3 bed • 1 bath • 906 ft²






















































































