Contemporary first-floor flat with balcony and exceptional transport convenience.
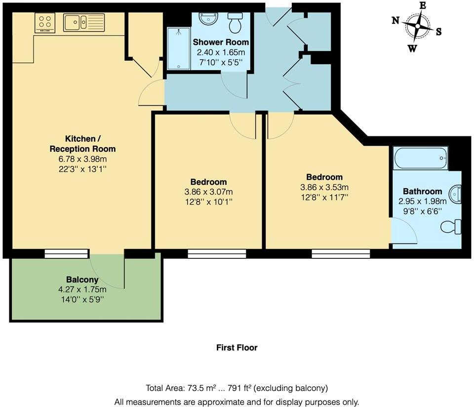
Generous 791 sqft two-bedroom, two-bathroom apartment
Open-plan kitchen/reception with full-height glazing onto balcony
Private balcony extends living space, pleasant elevated outlook
117 years remaining on lease — long but leasehold tenure
Served by a community heating scheme; check service charges
Average broadband speeds; excellent mobile signal
Urban location with excellent transport links (St James Street nearby)
Higher local crime and area deprivation — impacts insurance and feel
Bright, well-proportioned and ready to move into, this first-floor two-bedroom apartment suits first-time buyers seeking space and strong transport links. The open-plan kitchen and living area benefits from full-height glazing and a private balcony, extending living space and bringing in good natural light. The main bedroom has an ensuite and there is also a separate shower room, giving practical flexibility for couples or sharers.
The building presents contemporary brickwork and balconies, and the flat's footprint (around 791 sq ft) is generous for a two-bedroom city home. St James Street Overground is adjacent, and Walthamstow Central and surrounding amenities are within easy walking distance, making commuting and local life straightforward. Nearby parks, markets and cultural spots add to everyday appeal.
Be clear about the practical points: the property is leasehold with 117 years remaining and served by a community heating scheme — check service charges and heating arrangements before committing. Broadband speeds are average; mobile signal is excellent. The local area scores as deprived with higher-than-average crime statistics, which may affect insurance and personal priorities.
Overall this is a roomy, contemporary apartment offering good transport convenience and a private outdoor area. It will suit buyers wanting ample internal space and a strong commuter location, but budget for ongoing service costs and consider area factors when making a decision.
2 bedroom apartment for sale in South Grove, Walthamstow, E17 — £510,000 • 2 bed • 2 bath • 883 ft²
1 bedroom apartment for sale in Brunner Road, Walthamstow, E17 — £385,000 • 1 bed • 1 bath • 578 ft²
1 bedroom flat for sale in Track Street, Walthamstow, E17 — £395,000 • 1 bed • 1 bath • 558 ft²
1 bedroom flat for sale in Old Brewery Way, London, Walthamstow, E17 — £390,000 • 1 bed • 1 bath • 589 ft²
2 bedroom flat for sale in Station Approach, Walthamstow, London, E17 — £550,000 • 2 bed • 2 bath • 826 ft²
1 bedroom house for sale in St. James's Street, Walthamstow, E17 — £375,000 • 1 bed • 1 bath • 603 ft²






































































































